Fully permitted 4-bedroom home close to schools and transport.
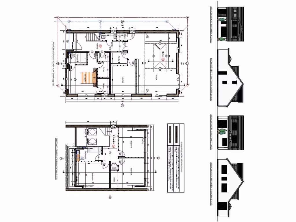
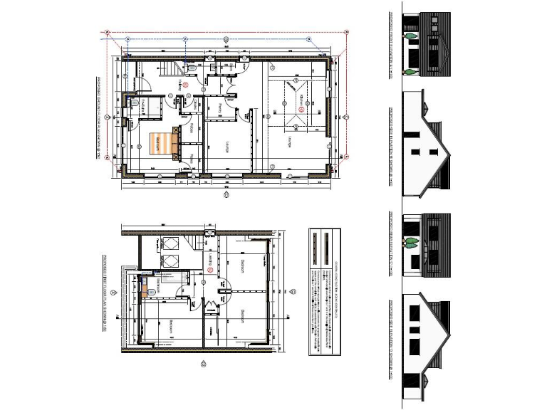
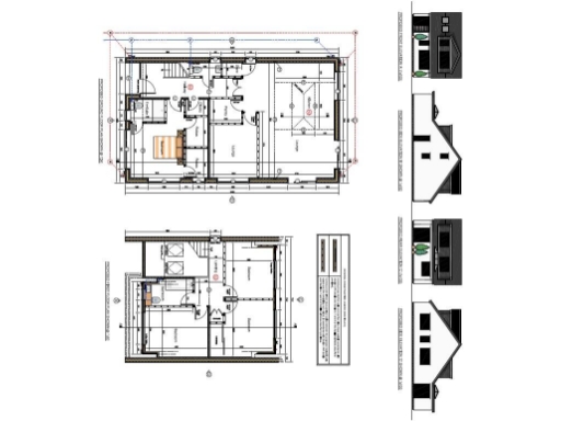
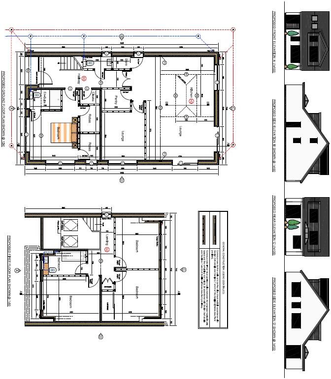
Full planning permission for a 4-bed dormer bungalow (APP/24/01806)
A rare freehold opportunity in a quiet, family-friendly Moreton street: a large building plot with full planning permission for a detached 4-bedroom dormer bungalow (APP/24/01806). The site benefits from road frontage, an existing vehicular access and will be split with a new title registered on completion of sale, making it straightforward for self-builders or small developers to proceed.
Planning approval was granted on 26 March 2025; development must commence within three years. The plot is well-proportioned for a substantial family home with private gardens and off-street parking included in the scheme. Services and local infrastructure are good: excellent mobile signal and fast broadband, regular bus links and nearby shops, leisure facilities and playgrounds.
The surrounding area offers a mix of schooling levels — nearby primary schools rated Good and one Outstanding secondary (Upton Hall FCJ) — which will suit families. Be transparent about the local context: the ward is relatively deprived overall, and the site includes an overgrown garden area and an old shed that will require clearance or refurbishment as part of development works.
This sale is for land only; the permission removes planning uncertainty but the purchaser should allow for full construction costs and statutory connections. The plot price reflects the permitted scheme and ready access; it will suit a self-builder wanting a fast route to a bespoke home or a developer seeking a permitted suburban plot.
Land for sale in Noctorum Road, Prenton, Wirral, CH43 — £500,000 • 1 bed • 1 bath • 6000 ft²
Land for sale in Private Drive, Barnston, Wirral, CH61 — £225,000 • 1 bed • 1 bath
Commercial development for sale in Land To The Corner Of Leasowe Road & Pasture Road, Moreton, Wirral, Merseyside, CH46 — POA • 1 bed • 1 bath
Land for sale in Mill Road/ Spital Road, Bromborough, CH62 — £300,000 • 1 bed • 1 bath • 1162 ft²
Land for sale in Spital Road, Bebington, Wirral, CH63 — £300,000 • 1 bed • 1 bath • 8608 ft²
Land for sale in Croft Lane, Bromborough, Wirral, CH62 — £300,000 • 1 bed • 1 bath • 2757 ft²


















































