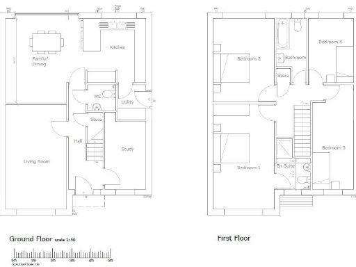
Approved plans for a four-bedroom detached family home in a peaceful village setting.
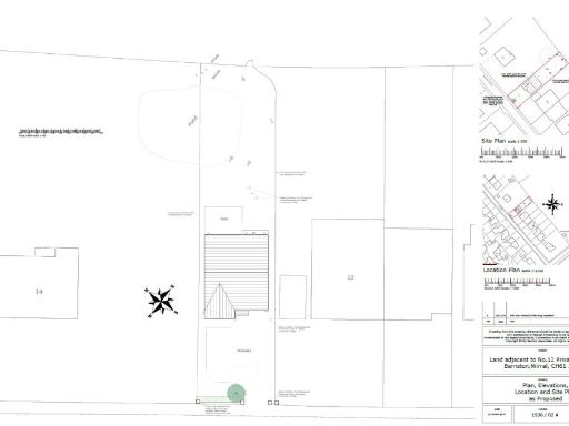
495 sqm freehold plot with countryside views to the rear
A rare 495 sqm freehold plot in Barnston with full planning permission for a four-bedroom detached house (Wirral ref APP/24/01640). The site sits at the edge of open farmland and benefits from uninterrupted countryside views to the rear, a large driveway, and generous rear garden space — ideal for family living or a high-demand resale once built.
The approved design offers an open-plan kitchen/dining area across the rear to maximise the outlook, a separate utility, two reception rooms and four well-proportioned bedrooms including an en-suite master. The plot’s village setting combines quiet, semi-rural character with fast broadband, low crime, good local schools and straightforward access to the M53 for regional travel.
Buyers should note this is a development plot: the purchase price excludes build costs and a committed construction programme will be required. Utilities connections, detailed groundworks and any planning pre-conditions must be confirmed before starting work. Council tax and specific site surveys (drainage, services, soils) are not provided and will be buyer responsibilities.
For families seeking a bespoke new home or investors aiming to capitalise on a desirable Wirral location, this plot presents strong potential. Proceed with pre-purchase surveys and budgeted quotations to accurately assess total project costs and timescales.
Land for sale in Downham Road North, Heswall, Wirral, CH61 — £225,000 • 1 bed • 1 bath
Land for sale in Noctorum Road, Prenton, Wirral, CH43 — £500,000 • 1 bed • 1 bath • 6000 ft²
Land for sale in Sandy Lane North, Irby, Wirral, CH61 — £225,000 • 1 bed • 1 bath • 21780 ft²
Land for sale in Spital Road, Bebington, Wirral, CH63 — £300,000 • 1 bed • 1 bath • 8608 ft²
Land for sale in Stavordale Road, Moreton, Wirral, CH46 — £120,000 • 1 bed • 1 bath • 1627 ft²
Semi-detached house for sale in Clifton Road, Birkenhead, Wirral, Merseyside, CH41 — £80,000 • 1 bed • 1 bath














































































