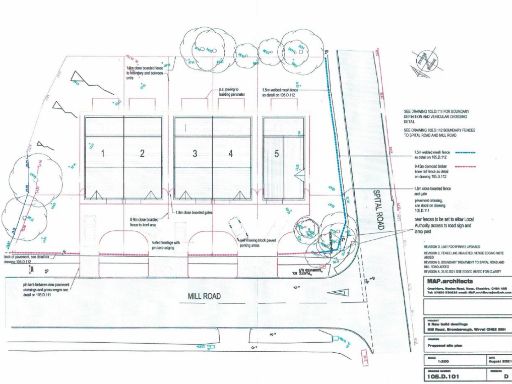
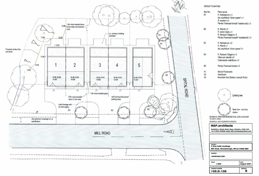
Freehold corner plot with planning for five homes; drainage works started, walking distance to Spital station.
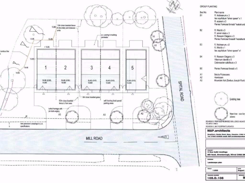
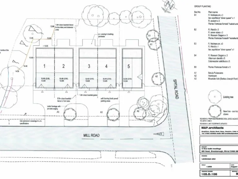
Planning permission for five dwellings (RVC/22/02084)
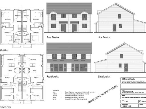
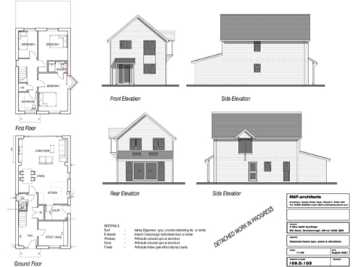
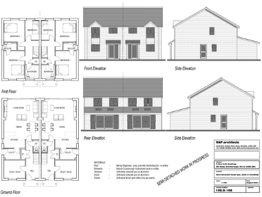
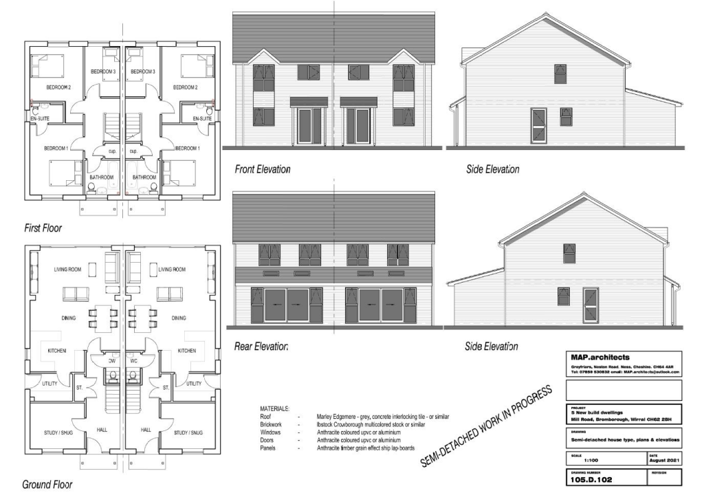
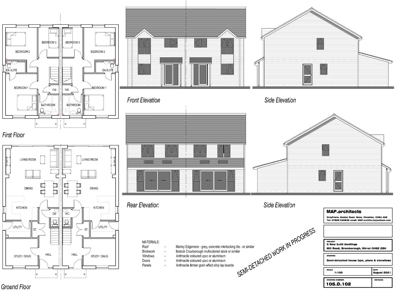
A rare brownfield opportunity in Bromborough with full planning permission (RVC/22/02084) for five units: two pairs of semi-detached and one detached. The consented homes are designed at about 108 m2 each with open-plan living, utility, downstairs WC, separate snug, and three first-floor bedrooms with en-suite — making this site attractive to builders or residential investors seeking quick delivery.
Phase 1 of drainage works is already underway and building regulation sign-off has been obtained for that stage, reducing early-stage infrastructure risk. The site sits on a generous plot with rear gardens and off-street parking for each unit. It’s on the corner of Mill Road and Spital Road within walking distance of Spital train station and local amenities, supporting future occupier appeal and rental demand.
Notable constraints are material: the area records higher-than-average crime levels, and the immediate neighbourhood is a major conurbation rather than a rural setting. Council tax details are currently unknown. Buyers should allow for remaining construction costs, site clearance and final connection works though the planning and initial drainage progress materially de-risks the start-up phase.
This freehold plot, offered at £300,000, suits developers, small builders or buy-to-let investors comfortable completing a new-build scheme. It delivers permitted layout and a fast broadband, reasonably connected location; however, purchasers must factor security measures and local context into valuation and marketing plans.
Land for sale in Croft Lane, Bromborough, Wirral, CH62 — £300,000 • 1 bed • 1 bath • 2757 ft²
Commercial development for sale in Former MOD Site, Old Hall Road, Bromborough, Wirral, North West, CH62 — POA • 1 bed • 1 bath
Land for sale in MAGAZINE 2, Riverbank Road, Bromborough, Wirral, CH62 3JQ, CH62 — £875,000 • 1 bed • 1 bath • 28000 ft²
Land for sale in Spital Road, Bebington, Wirral, CH63 — £300,000 • 1 bed • 1 bath • 8608 ft²
2 bedroom bungalow for sale in Croft Lane, Bromborough, Wirral, CH62 — £300,000 • 2 bed • 1 bath • 775 ft²
Plot for sale in Whaley Lane, Irby, Wirral, CH61 — £750,000 • 4 bed • 2 bath • 1281 ft²










































