Comfortable three-bed home with garden and easy commuter links.
Corner plot overlooking green open space
Open-plan kitchen with French doors to garden
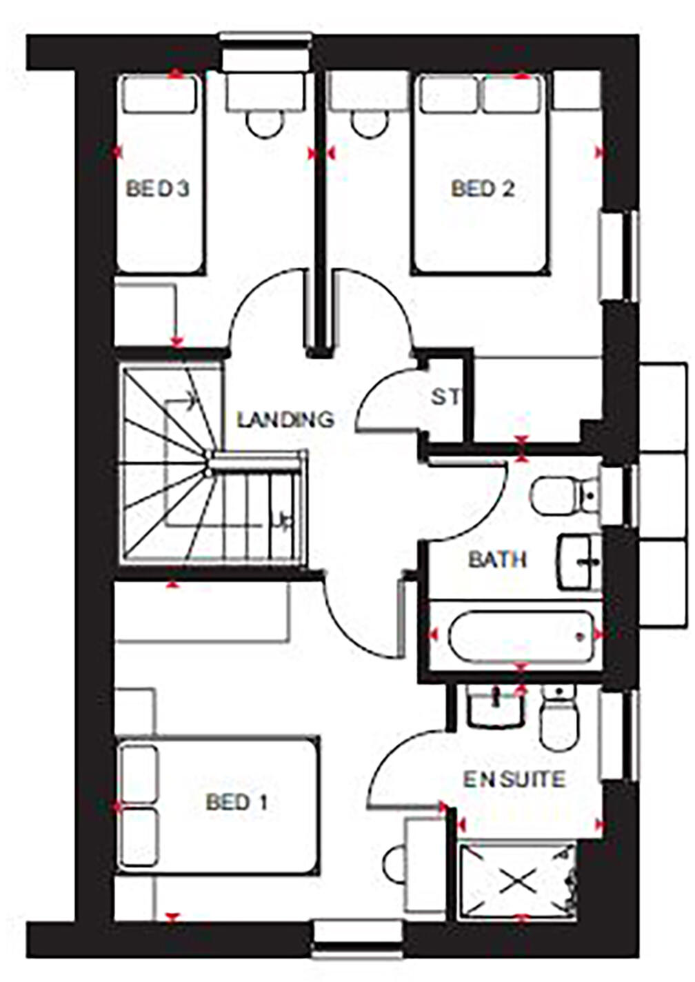
Main bedroom with en suite; second double and single room
New-build, low immediate maintenance; solar panels fitted
Two off-street parking spaces on private drive
Internal size compact (about 654 sq ft) despite large plot
Area shows high deprivation and above-average crime rates
Slow broadband; tenure not specified—confirm before offer
This three-bedroom semi-detached home on a corner plot offers modern, low-maintenance living ideal for growing households. The open-plan kitchen with French doors and a bright dual-aspect lounge give flexible family space and direct access to a generous garden. The main bedroom benefits from an en suite; a second double and a single room suit children or a home office.
The house sits on a private drive with two off-street parking spaces and overlooks green open space and public routes including the Trans Pennine Trail. New-build construction and contemporary finishes reduce immediate maintenance, and solar panels are visible from the exterior, which may lower running costs.
Buyers should note the property is modest in internal size (about 654 sq ft) despite occupying a very large plot. The wider area scores high on deprivation indicators and records above-average crime; broadband speeds are slow. Tenure is not stated and should be confirmed before offer.
Location advantages include quick access to the M1, nearby Chesterfield and Sheffield, and several well-rated primary schools. For families wanting modern layout, outdoor space and commuter routes, this home is a practical, affordable option; investors should weigh local social-economic indicators and service limitations.
3 bedroom semi-detached house for sale in Inkersall Road,
Chesterfield,
Derbyshire,
S43 3YJ, S43 — £254,995 • 3 bed • 1 bath • 736 ft²
3 bedroom semi-detached house for sale in Inkersall Road,
Chesterfield,
Derbyshire,
S43 3YJ, S43 — £249,995 • 3 bed • 1 bath • 736 ft²
3 bedroom semi-detached house for sale in Inkersall Road,
Chesterfield,
Derbyshire,
S43 3YJ, S43 — £254,995 • 3 bed • 1 bath • 736 ft²
2 bedroom semi-detached house for sale in Inkersall Road,
Chesterfield,
Derbyshire,
S43 3YJ, S43 — £204,995 • 2 bed • 1 bath • 570 ft²
2 bedroom semi-detached house for sale in Inkersall Road,
Chesterfield,
Derbyshire,
S43 3YJ, S43 — £207,995 • 2 bed • 1 bath • 570 ft²
2 bedroom semi-detached house for sale in Inkersall Road,
Chesterfield,
Derbyshire,
S43 3YJ, S43 — £199,995 • 2 bed • 1 bath • 570 ft²










































































