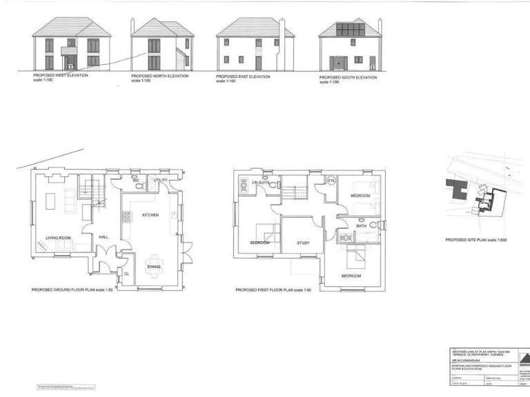
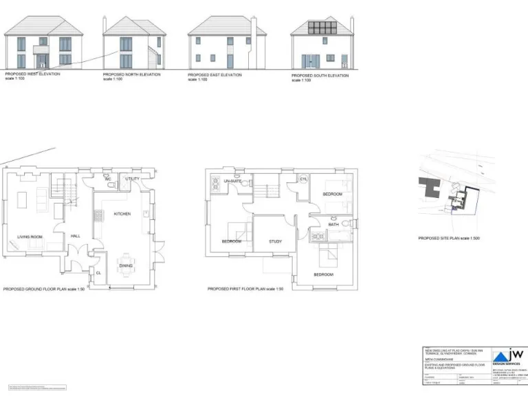
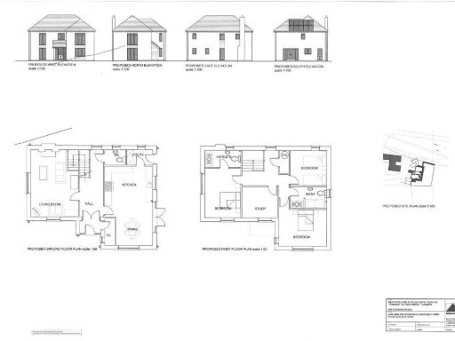
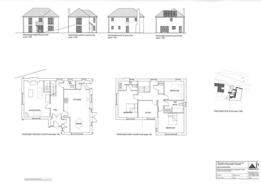
### Standout Features:
- **Approved Planning Permission**: For a three-bedroom detached house with a study and en-suite master bedroom.
- **Location**: Situated in the picturesque village of Glyndyfrdwy, nestled between Llangollen and Corwen.
- **Outdoor Activities**: Access to stunning walks, white water rafting, climbing, and cycling.
- **Affordability**: Guide price between £20,000 - £40,000.
### Potential Concerns:
- **Infrastructure Needs**: Mains services are available but untested.
- **Rural Broadband**: Slow speeds.
- **Area Deprivation**: Classified as very deprived, which may influence buyer expectations.
Embrace the opportunity to create your dream home on this single building plot, complete with planning consent for a modern three-bedroom detached house in the tranquil village of Glyndyfrdwy, stunningly positioned between Llangollen and Corwen. With a thoughtful design featuring a spacious living room, an open kitchen/dining area, and generous bedrooms—including an en-suite master—you can tailor this property to your lifestyle.
Located in a serene rural setting, this plot not only offers beautiful countryside views but also provides a gateway to adventurous activities like hiking and cycling. While the plot is currently overgrown, it presents a canvas for your vision.
This affordable land opportunity is going to auction, and with a competitive guide price, it’s a must-see for investors or families ready to take on a project. Don't miss out on this rare chance to secure a future-ready plot; registration for the auction opens soon!
Land for sale in Land Fronting, Wrexham Road, Pentrebychan, Wrexham, LL14 4DT, LL14 — £80,000 • 1 bed • 1 bath
Land for sale in 3.41 acres Land On, Ruthin Road, Minera, Wrexham, LL11 3UT, LL11 — £100,000 • 1 bed • 1 bath
Land for sale in Field three, Tyn Y Cestyll Road, Glyn Ceiriog, Llangollen, Wrexham, LL20 7NL, LL20 — £60,000 • 1 bed • 1 bath
2 bedroom detached house for sale in Rose Cottage, Y Gors Gwynfryn, Wrexham, LL11 5UW, LL11 — £150,000 • 2 bed • 1 bath • 468 ft²
Land for sale in 23.24 Acres Formerly Part Of Bryn Goleu, Llanfair Dc, Ruthin , LL15 — £349,000 • 1 bed • 1 bath
Plot for sale in Llantysilio, Llangollen, LL20 — £150,000 • 1 bed • 1 bath • 1415 ft²














































