Spacious Victorian home for buyers wanting renovation potential in central Howden.
- Circa 1900 period townhouse with original fireplaces and sash windows
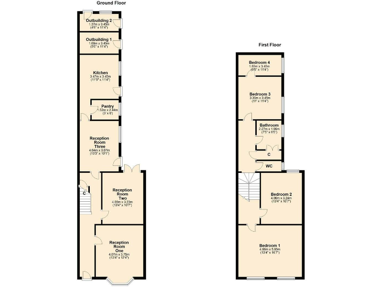
- Substantial living: three receptions, kitchen plus sizeable pantry
- Four bedrooms across a split-level first floor
- Requires full renovation; no central heating currently installed
- Two outbuildings and enclosed rear courtyard with walled lawn garden
- Decent plot size; potential to extend or reconfigure (subject to consents)
- Fast broadband and excellent mobile signal; local amenities on foot
- Above-average local crime; refurbishment and security works likely needed
A rare circa-1900 townhouse offering generous rooms, original period detail and a private walled garden. The house has three reception rooms, a sizeable pantry and four bedrooms across a traditional split landing — space that will suit a family refurbishment or a rental conversion.
The property requires full renovation and currently has no central heating; retained features include sash windows, original doors, fireplaces and an old water pump that give a strong base for sympathetic restoration. There are two outbuildings and a courtyard leading to a decent rear garden, useful for storage, a workshop or extension (subject to consents).
Set in central Howden, the location benefits from nearby shops, cafés, schools and fast broadband, while the town’s character and accessible amenities support both owner-occupiers and investors. Note: the area records above-average crime levels — factor security and refurbishment costs into any plans.
4 bedroom terraced house for sale in Churchside, Howden, DN14 — £350,000 • 4 bed • 2 bath • 1798 ft²
2 bedroom detached house for sale in Flatgate, Howden, Goole, DN14 — £200,000 • 2 bed • 1 bath • 726 ft²
4 bedroom detached house for sale in Buttfield Road, Howden, Goole, DN14 — £395,000 • 4 bed • 2 bath • 1794 ft²
3 bedroom terraced house for sale in Bishopgate, Howden, Goole, DN14 — £179,995 • 3 bed • 1 bath • 797 ft²
3 bedroom cottage for sale in Hailgate, Howden, DN14 7SL, DN14 — £182,500 • 3 bed • 1 bath • 770 ft²
3 bedroom semi-detached house for sale in Bridgegate, Howden, Goole, East Yorkshire, DN14 — £290,000 • 3 bed • 2 bath • 1026 ft²


















































































