**Standout Features:**
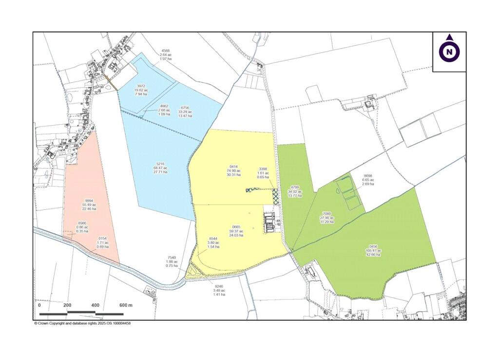
- Vast agricultural land totaling approximately 55.16 acres
- Grade 2 classification, well-suited for various crops, including cereals and vining peas
- Excellent drainage system and easy access from public highways
- Freehold tenure, chain-free with vacant possession upon completion
- Located near the villages of Beeford and Foston-on-the-Wolds, with Driffield and Bridlington close by
**Potential Concerns:**
- Above-average crime rate in the area
- Slow broadband speeds and average mobile signal
- Subject to environmental designations, with drainage rates applicable
Nestled in a serene rural setting between Beeford and Foston-on-the-Wolds, this expansive Grade 2 agricultural land presents a remarkable investment opportunity. With over 55 acres ready for cultivation or potential renewable energy projects, this property combines productivity with peaceful countryside living. The land is currently under a contract farming agreement, ensuring its productive use, while also offering new owners the flexibility to expand or develop further.
Enjoy the benefits of rural life with good local schooling options, all while being a short drive from the coastal beauty of Bridlington and the market town of Driffield. Don't miss out on this rare chance; expressions of interest are invited by noon on July 18th. Ideal for investors or those seeking a peaceful agricultural lifestyle, this property promises both immediate yield and future potential.
Land for sale in Lot 2 - Land At Beeford and Foston, Driffield, YO25 — £1,350,000 • 1 bed • 1 bath
Land for sale in Lot 4 - Land At Beeford and Foston, Driffield, YO25 — £1,800,000 • 1 bed • 1 bath
Land for sale in Lot 3 - Land At Beeford and Foston, Driffield, YO25 — £1,750,000 • 1 bed • 1 bath • 807 ft²
Land for sale in Land At Beeford and Foston, Driffield, YO25 — £5,500,000 • 1 bed • 1 bath • 7525 ft²
Farm land for sale in North Newbald, Beverley, YO43 4TN, YO43 — £1,500,000 • 1 bed • 1 bath
Farm land for sale in Agricultural Land, Leven, Beverley, East Riding of Yorkshire, HU17 5NF, HU17 — £1,870,000 • 1 bed • 1 bath














