**Standout Features:**
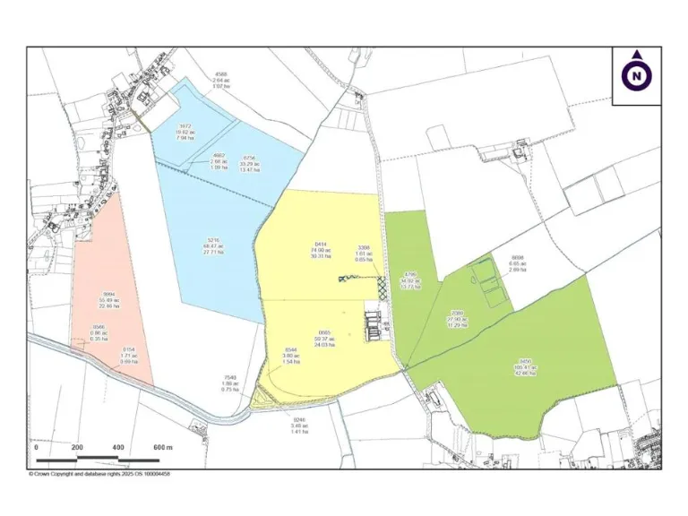
- Expansive agricultural land totaling approximately 144.45 acres.
- Freehold tenure with chain-free sale.
- Well-maintained drainage scheme and access to Foston Lane.
- Includes substantial agricultural buildings: a pig isolation unit and a Dutch barn.
- Serviced by a 6,000m³ slurry store and pasture for livestock.
- Currently farmed and historically cultivated for various crops including root vegetables and cereals.
- Located near the villages of Beeford and Foston-on-the-Wolds, with the coastal town of Bridlington nearby.
**Potential Concerns:**
- Above-average crime rate in the area.
- Slow broadband speeds could affect connectivity.
- Rental agreements on buildings extend until September 2040.
Positioned within a picturesque rural landscape, this vast acreage presents an exceptional opportunity for agricultural development or an investment in renewable energy, given its existing wind turbines. The property features well-drained Grade 2 arable land, ideal for a variety of crops, along with substantial storage and operational spaces that could facilitate a thriving farming business. While the property's remote setting encourages a peaceful lifestyle amidst nature, it also allows for potential residential development or investment backed by solid agrarian foundations.
Families and first-time buyers will appreciate the proximity to local schools rated “Good” by Ofsted, enhancing the appeal for those seeking a peaceful yet connected community lifestyle. With the land’s extensive size and versatile usage possibilities, including the potential for future extensions or renovations, this unique opportunity is likely to attract interest quickly. Don’t miss the chance to explore this expansive offering that seamlessly melds extensive agricultural potential with serene countryside living.



































