**Standout Features:**
- Expansive Grade 2 agricultural land spanning approximately 127.06 acres
- Productive soil well-suited for various crops, including vining peas and root vegetables
- Access via a private right of way and well-maintained drainage system
- Spectacular rural views and a peaceful setting within a developing area
- Chain-free; freehold tenure
- Limited environmental schemes in place
**Potential Downsides:**
- Crime rate is above average
- Slower broadband speeds may limit connectivity
- Holdover clause until September 2025 for crop harvesting could affect immediate occupancy
**Summary:**
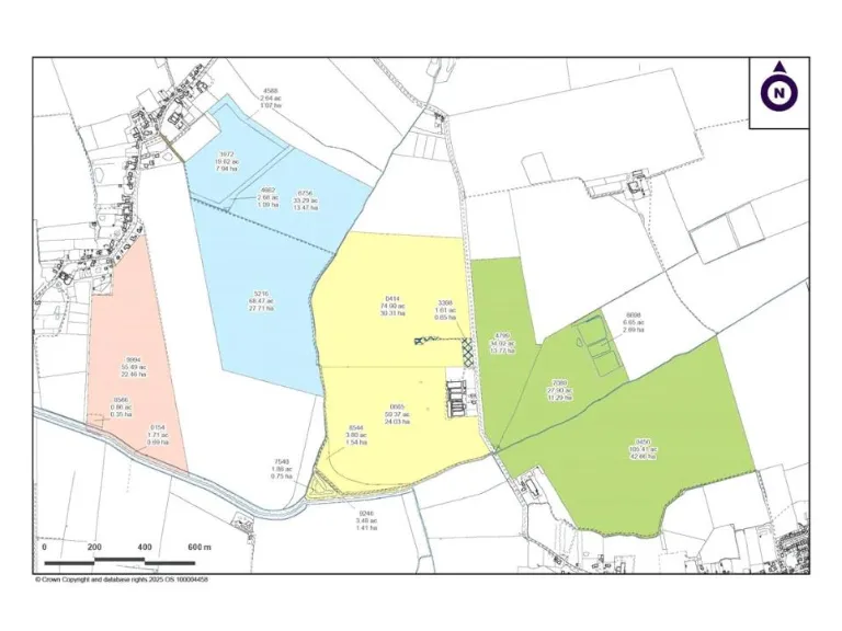
Discover a remarkable opportunity to own a substantial 127.06-acre plot of Grade 2 agricultural land near the picturesque villages of Beeford and Foston-on-the-Wolds. Currently supporting a diverse cropping rotation, the property features well-drained, fertile soil perfect for commercial farming or personal agricultural projects. Unobstructed views of beautiful rural landscapes make this an ideal location for those seeking tranquility and a connection to nature.
Although the area features a higher crime rate and slower broadband, the serene environment and development potential offer a unique investment. Take advantage of this opportunity to shape your agricultural future—expressions of interest are encouraged before the deadline on July 18th. With its huge acreage, favorable soil conditions, and a setting that inspires peace, this property is sure to attract serious inquiries.
Land for sale in Lot 4 - Land At Beeford and Foston, Driffield, YO25 — £1,800,000 • 1 bed • 1 bath
Land for sale in Lot 1 - Land At Beeford and Foston, Driffield, YO25 — £600,000 • 1 bed • 1 bath • 807 ft²
Land for sale in Lot 3 - Land At Beeford and Foston, Driffield, YO25 — £1,750,000 • 1 bed • 1 bath • 807 ft²
Land for sale in Land At Beeford and Foston, Driffield, YO25 — £5,500,000 • 1 bed • 1 bath • 7525 ft²
Farm land for sale in North Newbald, Beverley, YO43 4TN, YO43 — £1,500,000 • 1 bed • 1 bath
Farm land for sale in Broomfleet, Brough, HU15 1RU, HU15 — £350,000 • 1 bed • 1 bath






























