Bright open-plan kitchen and large garden near Chesil Beach.
Bay-front living room with feature fireplace
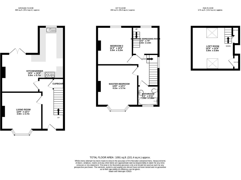
This immaculate three-bedroom semi-detached home in Wyke Regis blends practical family living with easy access to the coast. The ground floor offers a bay-front living room and a large open-plan kitchen/diner that works well for everyday life and entertaining. A block-paved driveway provides off-street parking and gated side access leads to a generous, low-maintenance rear garden with a powered outbuilding.
Upstairs are two double bedrooms, a single third bedroom currently set up as a dressing room, and a modern family bathroom. A fixed staircase leads to a loft room that is presently used as a bedroom, adding flexible space for a home office, playroom or occasional guest use (buyers should note loft-room compliance with building regulations if intending permanent use as a bedroom).
Practical details include gas central heating, freehold tenure, Council Tax Band C and no identified flood risk. The property sits close to well-regarded primary schools, bus links into Weymouth and coastal amenities including Chesil Beach and Portland Marina, making it a strong choice for families wanting coastal life with everyday convenience.
Considerations: there is a single family bathroom and parking for one vehicle only; the loft room is a useful extra but may not meet formal bedroom standards. Overall the house is ready to move into with good presentation, while the garden and outbuilding offer further potential to personalise and extend subject to the usual consents.
3 bedroom detached house for sale in St. Davids Road, Wyke Regis, DT4 — £425,000 • 3 bed • 1 bath • 1110 ft²
2 bedroom terraced house for sale in High Street, Wyke Regis, DT4 — £260,000 • 2 bed • 1 bath • 915 ft²
3 bedroom semi-detached house for sale in Rodwell, Weymouth, Dorset, DT4 — £475,000 • 3 bed • 2 bath • 1539 ft²
3 bedroom semi-detached house for sale in Cleves Close, Weymouth, DT4 — £200,000 • 3 bed • 1 bath • 591 ft²
4 bedroom terraced house for sale in Smallmouth Close, Wyke Regis, Weymouth, Dorset, DT4 — £525,000 • 4 bed • 2 bath • 1255 ft²
3 bedroom semi-detached house for sale in Gallwey Road, Wyke, DT4 — £280,000 • 3 bed • 2 bath • 958 ft²


























































































