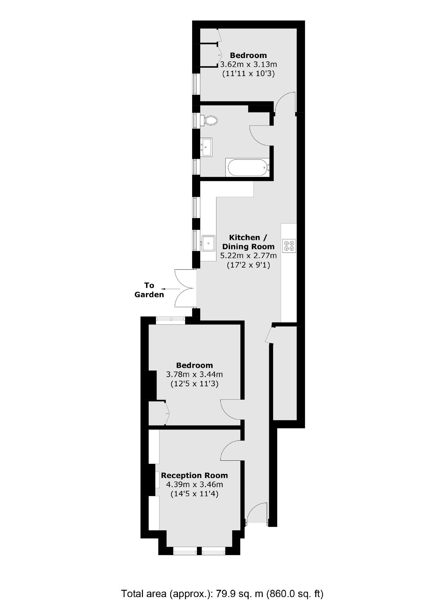
- Two double bedrooms with period proportions
- Private rear garden accessed from kitchen/dining
- Recently modernised; move-in ready
- Long lease (983 years) and share of freehold
- No service charge or ground rent
- Energy rating D; solid brick walls, limited insulation
- Council Tax Band E (above-average running cost)
- Approx 860 sq ft; long‑narrow Victorian layout
A bright two-double-bedroom Victorian ground-floor maisonette with its own private garden, recently refurbished to a high standard. The apartment blends original period touches — high ceilings, sash-style windows and a working fireplace — with contemporary finishes such as shaker-style fitted units, herringbone-effect floors and double glazing.
Set on a quiet residential street between Abbeville Road and Clapham Common, the home sits in a sought-after SW4 pocket with excellent local shops, cafés and transport links (Clapham South Northern Line and frequent buses). The layout feels well-proportioned for the overall footprint: a front reception, central bedroom, open-plan kitchen/dining and a rear bedroom with direct garden access.
Practical advantages include a very long lease (983 years), share of freehold, no service charge or ground rent, and modern heating and glazing. Suitability is strong for first-time buyers or couples seeking ready-to-move-in accommodation with period character and outside space.
Buyers should note typical terraced proportions mean rooms are long and narrow and the total footprint is medium (approximately 860 sq ft). Walls are likely solid brick with no cavity insulation (common in Victorian houses) and the property is rated Energy D. Council Tax is Band E, above average for the area. These are straightforward matters but relevant for running costs and future improvement plans.
2 bedroom maisonette for sale in Hambalt Road, Clapham, SW4 — £870,000 • 2 bed • 2 bath • 952 ft²
2 bedroom maisonette for sale in Hambalt Road, Clapham, SW4 — £875,000 • 2 bed • 2 bath • 1022 ft²
3 bedroom maisonette for sale in Park Hill, Clapham, SW4 — £999,950 • 3 bed • 1 bath • 1095 ft²
2 bedroom maisonette for sale in Dumbarton Road, Brixton, SW2 — £600,000 • 2 bed • 1 bath • 883 ft²
2 bedroom maisonette for sale in Oakmead Road, London, SW12 — £750,000 • 2 bed • 1 bath • 916 ft²
2 bedroom maisonette for sale in Narbonne Avenue, London, SW4 — £850,000 • 2 bed • 1 bath • 816 ft²


































