Move-in ready three-bedroom home with garage and parking near good schools.
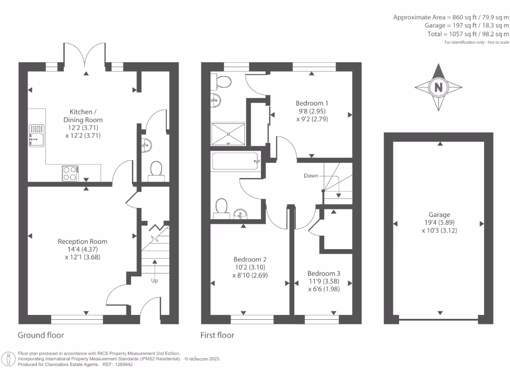
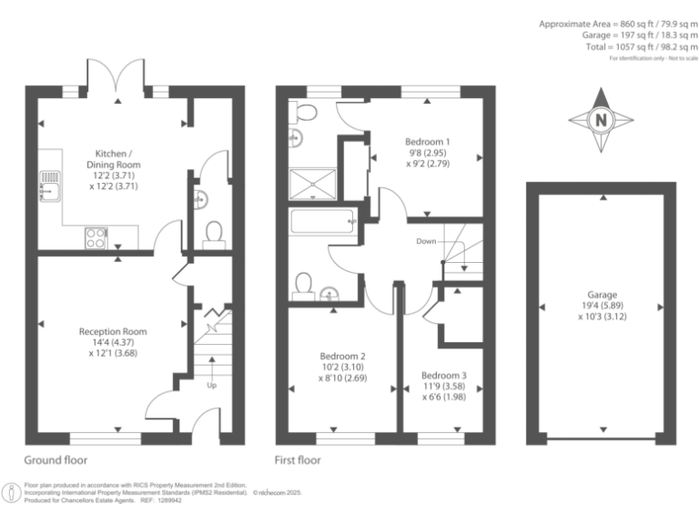
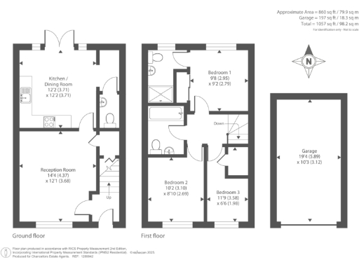
Three bedrooms and two bathrooms, approximately 1,057 sq ft
Modern kitchen/diner and contemporary living room, move-in condition
Off-road driveway parking plus single garage
Small, low-maintenance rear garden and compact plot
Freehold tenure; council tax described as affordable
Fast broadband and excellent mobile signal for homeworking
Located in a hamlet/isolated setting; limited local shops likely
Very low flood risk and very low local crime
This three-bedroom semi-detached home in Banbury offers modern, practical living across approximately 1,057 sq ft. The property features a contemporary kitchen/diner, a comfortable living room and two bathrooms, making it well-suited to families seeking move-in-ready accommodation in a popular location.
Outside there is off-road parking with a driveway and a single garage, plus a small, low-maintenance garden — ideal for busy households or those wanting minimal upkeep. The area benefits from fast broadband, excellent mobile signal and very low crime, supporting homeworking and family life.
Local schools include multiple highly rated primaries and good secondary options, and nearby leisure amenities and a playground add family appeal. Note the plot is small and the setting is described as a hamlet/isolated settlement, so local shops and services may be limited compared with town-centre locations. The property is freehold and council tax is affordable.
Overall, this is a straightforward, modern family home with practical parking, good digital connectivity and school choices nearby. Buyers wanting larger garden space or a more urban setting should be aware of the compact plot and semi-rural context.
3 bedroom semi-detached house for sale in Banbury, Oxfordshire, OX16 — £350,000 • 3 bed • 2 bath • 861 ft²
3 bedroom semi-detached house for sale in Banbury, Oxfordshire, OX16 — £325,000 • 3 bed • 1 bath • 991 ft²
3 bedroom semi-detached house for sale in Banbury, Oxfordshire, OX16 — £280,000 • 3 bed • 1 bath • 893 ft²
3 bedroom end of terrace house for sale in Kingerlee Road, Banbury, OX16 — £325,000 • 3 bed • 2 bath • 783 ft²
3 bedroom semi-detached house for sale in Millwright Close, Banbury, OX16 — £325,000 • 3 bed • 1 bath • 656 ft²
3 bedroom semi-detached house for sale in Greville Road, Banbury, Oxfordshire, OX16 — £325,000 • 3 bed • 3 bath • 864 ft²


















































































