Conservatory, driveway and garage in popular Banbury location.
Three double bedrooms with good room proportions
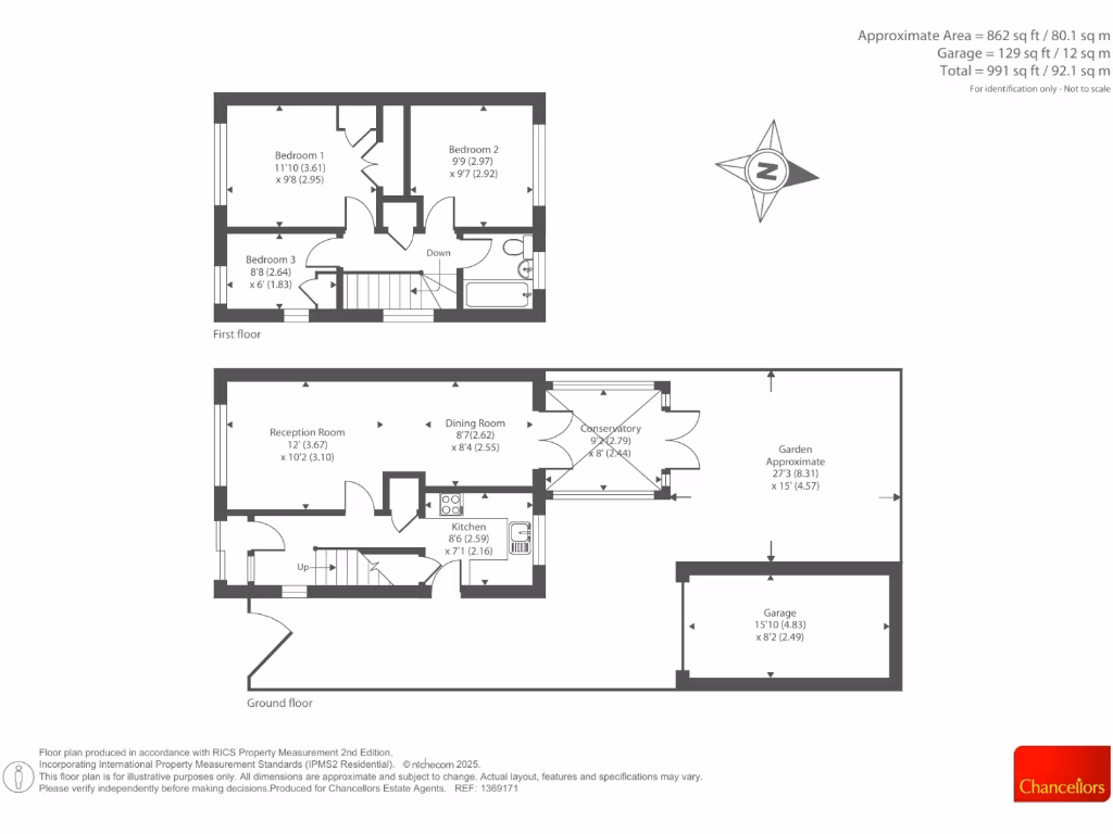
This well-presented three-bedroom semi-detached house in Banbury offers bright, dual-aspect living with large windows and a conservatory that brings the garden views into the home. Recently redecorated with a new patio, the property feels fresh throughout and benefits from an easy-to-manage plot with driveway parking and an attached garage.
Accommodation is sensible and family-focused: three good-sized double bedrooms, one bathroom and multiple reception spaces across an average-sized 991 sq ft layout. The building dates from the late 1970s/early 1980s, is freehold and heated by a mains-gas boiler with radiators. Broadband and mobile signal are strong in this area, and local schools receive generally good Ofsted ratings.
Practical points to note: double glazing was installed prior to 2002 and the cavity walls are only partially insulated (assumed), so further thermal improvements could be beneficial. There is a single family bathroom, and although the house has been newly renovated cosmetically, buyers seeking more extensive modernisation or energy upgrades should budget accordingly.
Overall this property suits families seeking a light, move-in-ready home in a popular Banbury neighbourhood with good local amenities, straightforward parking and an affordable council tax band. Viewing is recommended to appreciate the layout, natural light and ready-to-live-in condition.
3 bedroom semi-detached house for sale in Banbury, Oxfordshire, OX16 — £280,000 • 3 bed • 1 bath • 893 ft²
3 bedroom semi-detached house for sale in Banbury, Oxfordshire, OX16 — £325,000 • 3 bed • 2 bath • 922 ft²
3 bedroom semi-detached house for sale in Hillview Crescent, Banbury, OX16 — £310,000 • 3 bed • 1 bath • 1166 ft²
3 bedroom semi-detached house for sale in Wykham Place, Banbury, OX16 — £295,000 • 3 bed • 2 bath • 995 ft²
3 bedroom semi-detached house for sale in Millwright Close, Banbury, OX16 — £325,000 • 3 bed • 1 bath • 656 ft²
3 bedroom semi-detached house for sale in Sinclair Avenue, Banbury, OX16 — £325,000 • 3 bed • 1 bath • 915 ft²


























































































