Large double-fronted premises with conversion potential for investors or operators.
Double-fronted high-street retail unit with large glazed frontage
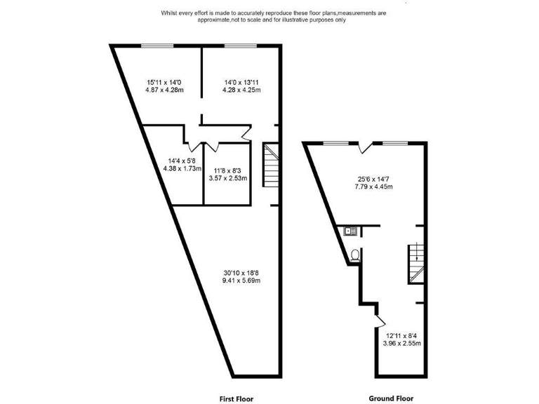
Approximately 1,590 sq ft NIA over ground and first floors
Vacant possession following long-term tenant relocation
Basement, rear store and side passage to rear yard
Scope to convert upper floors to residential, subject to consents
Tenure unknown — buyer to verify legal position
Located on A59 with strong footfall and local amenities
Area crime rates above average; refurbishment likely required
A prominent double-fronted retail unit on Liverpool Road North, offered with vacant possession after a long‑standing tenant relocated. The ground floor provides an open-plan sales area with generous glazing and substantial fascia signage; rear workshop space, basement and external store add operational flexibility.
The first floor comprises multiple former storage rooms plus a large outrigger to the rear. With approximately 1,590 sq ft NIA across ground and first floors, the property suits continued retail, trade counter use or redevelopment. There is scope to convert the upper floors to residential, subject to necessary planning and building‑regulation consents (no application recorded).
Key practical points to note: tenure is not stated, crime rates in the area are above average, and the plot is small with limited external space. The property will likely require refurbishment to suit a new occupier or conversion plan, but its size, prominent High Street location and excellent local amenities make it a strong candidate for an investor or operator seeking high visibility on the A59.
High street retail property for sale in 4 Smithy Walk, Burscough, Ormskirk, Lancashire, L40 — £285,000 • 1 bed • 1 bath • 2600 ft²
Commercial property for sale in Liverpool Road North, Burscough, L40 — £250,000 • 3 bed • 1 bath • 2327 ft²
High street retail property for sale in 16 Church Street, Ormskirk, Lancashire, L39 — £220,000 • 1 bed • 1 bath • 1450 ft²
High street retail property for sale in 24 London Street, Southport , PR9 — £189,950 • 1 bed • 1 bath • 1300 ft²
High street retail property for sale in 81 Eastbank Street, Southport, Southport, Merseyside, PR8 — £185,000 • 1 bed • 1 bath • 1500 ft²
High street retail property for sale in 5 Wesley Street, Southport, Merseyside, PR8 — £119,500 • 1 bed • 1 bath • 800 ft²


































































