Income-generating farmhouse with three hot-tub holiday lets and 4+ acres of grounds.
3-bed farmhouse plus three holiday cottages with individual hot tubs
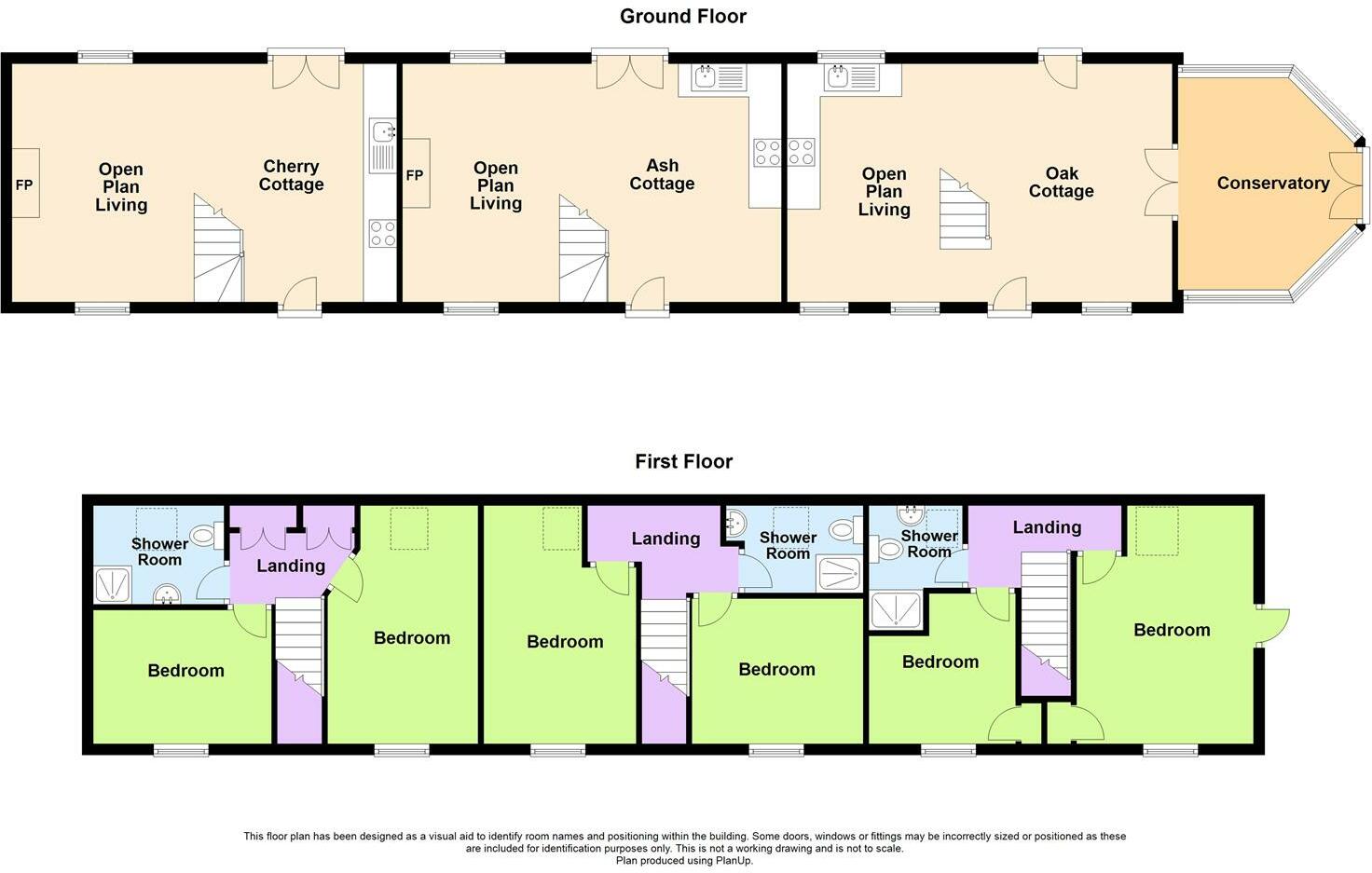
A rare smallholding income opportunity: a 3-bedroom detached farmhouse plus a converted stone barn providing three holiday-let units, each with its own hot tub. Set in about 4.09 acres of mixed woodland, paddock and landscaped gardens, the site includes two stables, workshops, laundry and useful outbuildings. Far-reaching country views and easy access to Newcastle Emlyn (7 minutes) and Cardigan Bay beaches make this an attractive lifestyle-and-income proposition.
The main house is a traditional farmhouse with modern touches: generous kitchen/breakfast room, large lounge with sandstone fireplace and conservatory, three first-floor bedrooms and useful utility/office space. The terrace of former barn cottages (Cherry, Ash, Oak) each offer open-plan living, two bedrooms and shower rooms; Oak benefits from a conservatory and a balcony with the best views. The cottages are currently run as holiday lets (holiday-only use stated).
Practical features for a smallholding business are already in place: off-road parking, a hard-access track to stables and paddock, water and power to outbuildings, a laundry and linen/service room for guests. The property has solar electricity, an oil-fired boiler servicing hot water and heating, and private drainage.
Notable cautions are plainly stated: broadband speeds are very slow and mobile signal only average, which can affect guests and remote working; external stone walls are assumed uninsulated and double glazing dates from before 2002; the cottages' energy ratings are TBC while the farmhouse is rated D. Heating is oil-fired and the site uses private drainage. The cottages are holiday-let use only and Council Tax is band E (above average). Buyers should allow budget for ongoing maintenance, possible insulation upgrades and marketing to sustain rental income.
9 bedroom smallholding for sale in Rhos, Llandysul, SA44 — £900,000 • 9 bed • 4 bath • 1723 ft²
23 bedroom smallholding for sale in Tanygroes, Nr Aberporth, Cardigan, SA43 — £950,000 • 23 bed • 13 bath • 2627 ft²
6 bedroom smallholding for sale in Cellan, Lampeter, SA48 — £779,000 • 6 bed • 4 bath • 3262 ft²
6 bedroom smallholding for sale in Trelech, Carmarthen, SA33 — £865,000 • 6 bed • 3 bath • 1933 ft²
Farm land for sale in Llandysul, Carmarthenshire, Mid Wales, Ceredigion, Mid Wales, SA44 — £1,550,000 • 6 bed • 1 bath • 2519 ft²
7 bedroom smallholding for sale in Llanfair Clydogau, Lampeter, SA48 — £850,000 • 7 bed • 5 bath • 4677 ft²














































































































































































































































































































































































































































































































































































































































































































