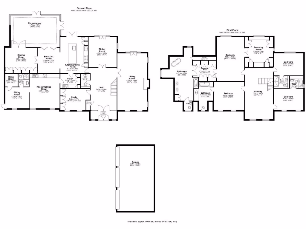
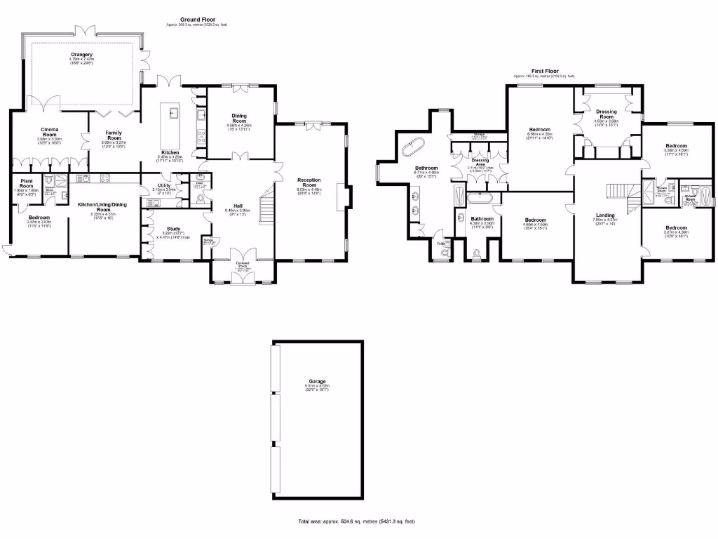
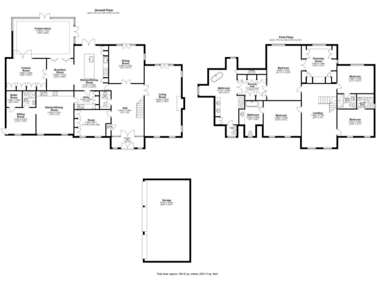
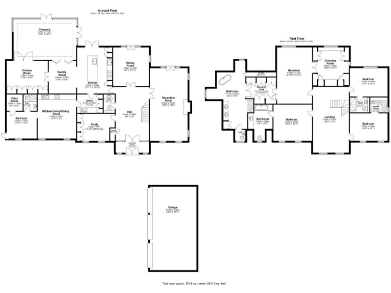
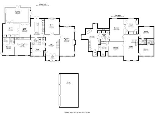
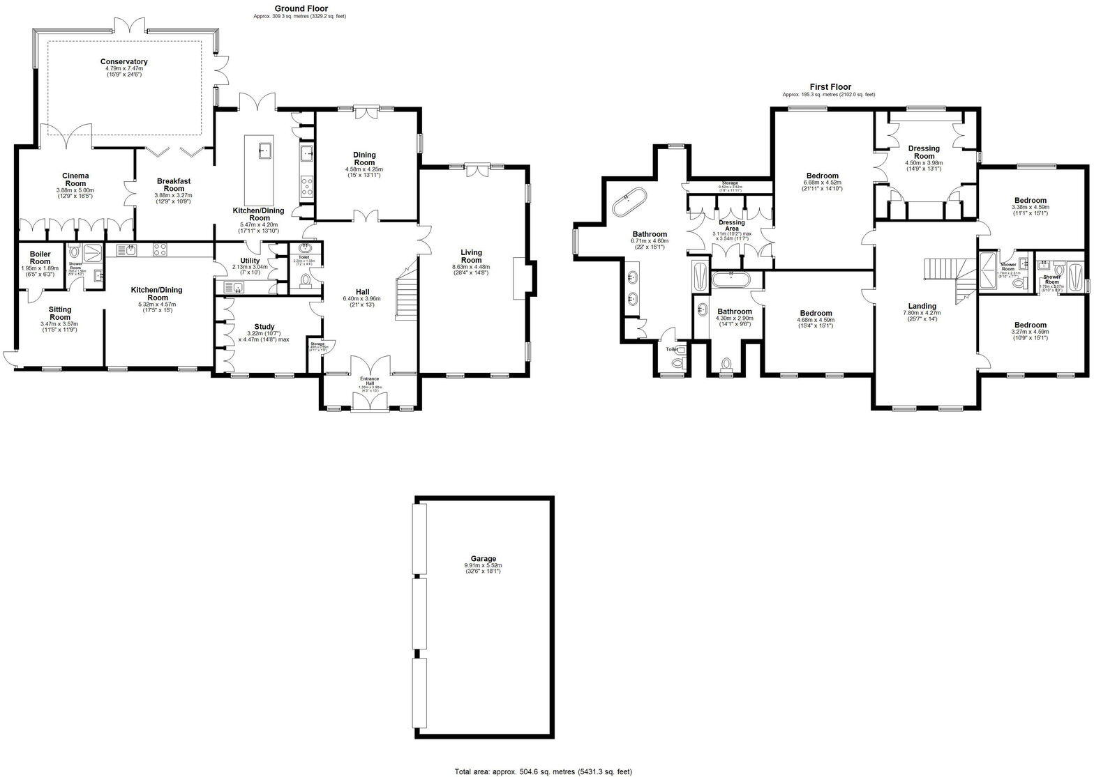
**Standout Features:**
- Spacious 5-bedroom detached house in the prestigious Little Aston Park.
- Set on a generous 0.5-acre plot with mature gardens and patio space.
- Modern luxury finishes, including Sonos sound system, smart home technology, and underfloor heating.
- A total of 5 well-appointed bathrooms, each with high-end fixtures.
- Separate staff annex with independent entrance.
- Detached three-car garage with electric doors.
**Concise Summary:**
Discover the ultimate in luxury living with this impressive 5-bedroom detached residence located in the heart of the exclusive Little Aston Park. Enveloped by mature gardens on a spacious half-acre plot, this home is designed for comfort and elegance. Boasting stunning features such as a grand entrance hall with a curved staircase, a state-of-the-art kitchen with integrated Miele appliances, and a splendid family-oriented layout, this home accommodates both relaxation and entertainment seamlessly.
With five lavish en suite bathrooms and a dedicated staff annex, the property is perfect for families or those seeking multi-generational living. The ample outdoor space invites both relaxation and play, making it ideal for families enjoying alfresco gatherings. Notably, with a low crime rate and high-quality schools in the vicinity—including the highly-rated Bishop Vesey's Grammar School—this home offers peace of mind and excellent educational options.
While the property shines with modern amenities and luxury finishes, it has undergone substantial refurbishment, so potential buyers can enjoy modern comforts without the hassle of significant renovations right away. This is not just a house; it’s a lifestyle choice. Act quickly—luxury homes in Little Aston Park are rare to the market and won’t last long!
5 bedroom detached house for sale in Keepers Road, Sutton Coldfield, West Midlands, B74 — £2,000,000 • 5 bed • 4 bath • 6285 ft²
5 bedroom detached house for sale in Rosemary Hill Road, Sutton Coldfield, West Midlands, B74 — £1,500,000 • 5 bed • 4 bath • 5423 ft²
5 bedroom detached house for sale in Claverdon Drive, Sutton Coldfield, West Midlands B74 3AH, B74 — £1,650,000 • 5 bed • 4 bath • 3595 ft²
3 bedroom detached house for sale in Roman Lane, Little Aston Park, B74 — £1,500,000 • 3 bed • 2 bath • 4283 ft²
6 bedroom detached house for sale in Little Aston, Sutton Coldfield, B74 — £2,500,000 • 6 bed • 6 bath • 4016 ft²
5 bedroom detached house for sale in Selwyn Walk, Little Aston, Sutton Coldfield, B74 — £2,500,000 • 5 bed • 6 bath • 7097 ft²


















































































































































