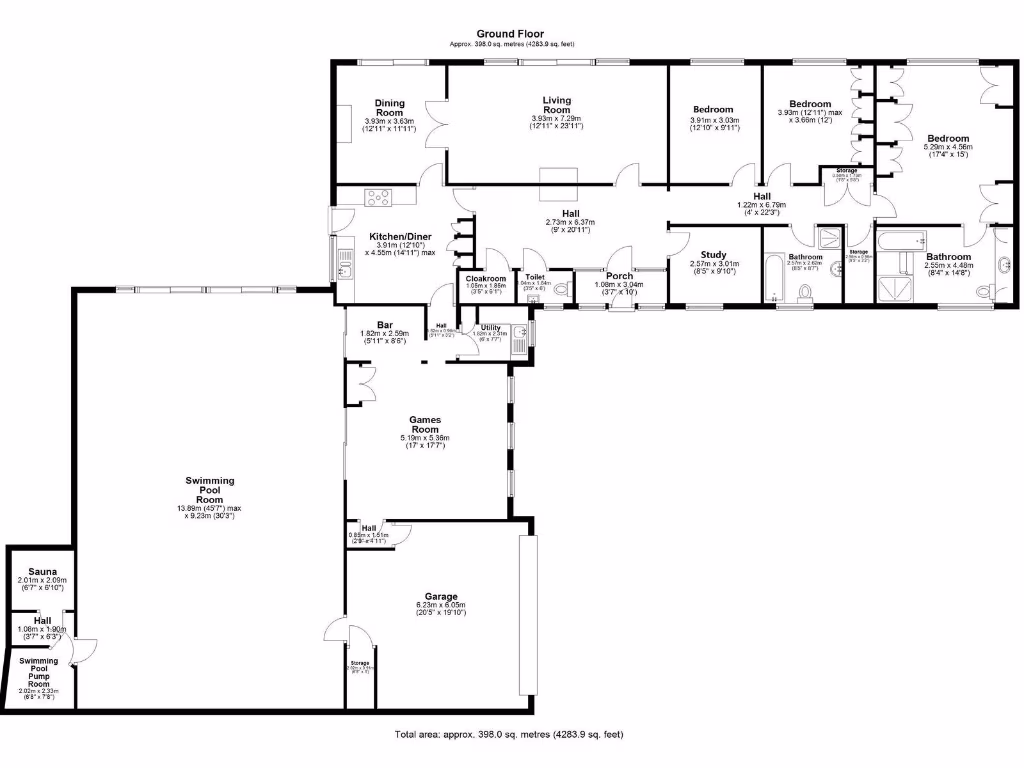
**Standout Features:**
- Extremely spacious detached bungalow with 3 double bedrooms
- Private indoor swimming pool and sauna
- Expansive reception areas including lounge, dining room, and games room with bar
- Mature, secluded gardens with large sun terrace
- Double garage with electric door
- Prime location within the exclusive Little Aston Park Estate
**Notable Concerns:**
- Requires some maintenance
- Double glazing installed before 2002, which may need updating
Welcome to an exceptional opportunity in the prestigious Little Aston Park Estate! This expansive 3-bedroom detached bungalow boasts an impressive layout of 4,283 square feet, ideal for families or those seeking a comfortable retreat. Enjoy versatile living spaces, including a stunning indoor swimming pool, sauna, and large games room with a bar, perfect for entertaining guests or winding down in style. The property features a generous lounge and dining room with patio access to the beautifully landscaped rear garden, providing a serene outdoor escape.
While the bungalow exudes charm with its curated architectural features, including deep-corniced ceilings, it may require some maintenance and updates, particularly to the double glazing. Nestled within a low-crime, affluent area close to reputable schools and local amenities, this home combines luxury and practicality. Don’t miss your chance to experience exclusivity and spacious living—properties like this are rare to find and won’t last long on the market!
3 bedroom detached bungalow for sale in Roman Park, Little Aston, Sutton Coldfield, B74 — £1,600,000 • 3 bed • 2 bath • 2573 ft²
3 bedroom detached house for sale in Ladywood Road, Four Oaks Park, B74 — £1,250,000 • 3 bed • 2 bath • 2492 ft²
5 bedroom detached house for sale in Roman Grange, Little Aston Park, B74 — £2,500,000 • 5 bed • 5 bath • 5431 ft²
7 bedroom detached house for sale in Cherrywood Way, Little Aston, Sutton Coldfield, B74 4HZ, B74 — £1,950,000 • 7 bed • 5 bath • 4448 ft²
3 bedroom detached bungalow for sale in Birchfield Road, Headless Cross, B97 — £500,000 • 3 bed • 3 bath • 2061 ft²
4 bedroom detached bungalow for sale in Aldridge Road, Little Aston, B74 — £795,000 • 4 bed • 3 bath • 2143 ft²














































































































