**Standout Features:**
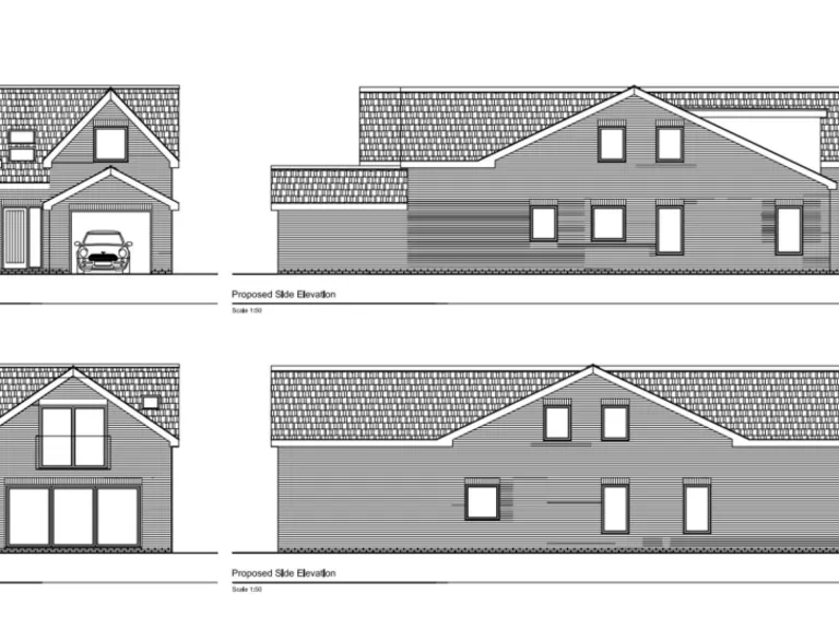
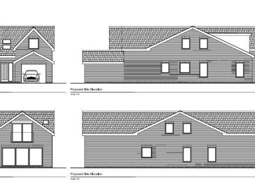
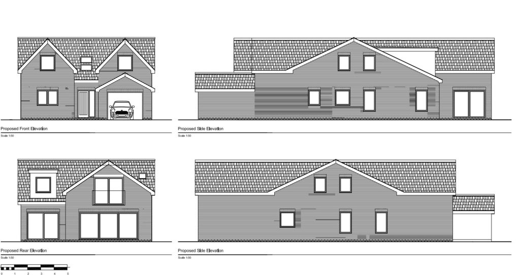
- **Size:** Over 1 acre plot with approved plans for a **5-bedroom** detached house, totaling **3,700 SQ FT**.
- **Layout:** Includes **5 reception rooms**, a south-facing garden, and an integral garage.
- **Modern Design:** Open-plan living area with potential for a downstairs bedroom.
- **Location:** Situated in a comfortable, rural neighbourhood with average crime rate and excellent mobile signal.
- **Accessibility:** Chain-free, freehold, with private driveway and off-street parking.
**Concise Summary:**
Discover the perfect opportunity to create your dream home on this expansive building plot exceeding 1 acre in Whitestake. With planning permission already granted for a striking 5-bedroom detached residence spanning approximately 3,700 square feet, this property is ideal for large families seeking space and comfort. Featuring 5 reception rooms, including a lounge and cinema room, the design emphasizes modern living with a spacious open-plan kitchen at its heart—a true entertainer's delight.
The impressive master suite with a dressing room and en-suite, along with additional en-suite bedrooms, meets the needs of contemporary family life, all while overlooking a serene, south-facing garden and picturesque field views. Benefit from an affluent neighborhood with good local schools, making it a desirable area for families.
The unique potential for customization combined with the favorable location ensures this property won't last long—don’t miss out on this rare opportunity to build your future!
Land for sale in Falcon Court, Chain House Lane, PR4 — £230,000 • 1 bed • 1 bath • 3550 ft²
4 bedroom detached house for sale in Plot 1 Whittingham Lane, Preston, PR3 2JJ, PR3 — £300,000 • 4 bed • 1 bath
Plot for sale in Town Lane, Whittle-le-Woods, Chorley, Lancashire, PR6 — £750,000 • 1 bed • 1 bath • 7800 ft²
Land for sale in Layton Road, Ashton-On-Ribble, Preston, PR2 — £120,000 • 1 bed • 1 bath
Plot for sale in Higher Walton Road, Walton-le-Dale, Preston, Lancashire, PR5 — £200,000 • 1 bed • 1 bath
Land for sale in Langdale Grove, PR6 — £109,995 • 1 bed • 1 bath


























































