**Standout Features:**
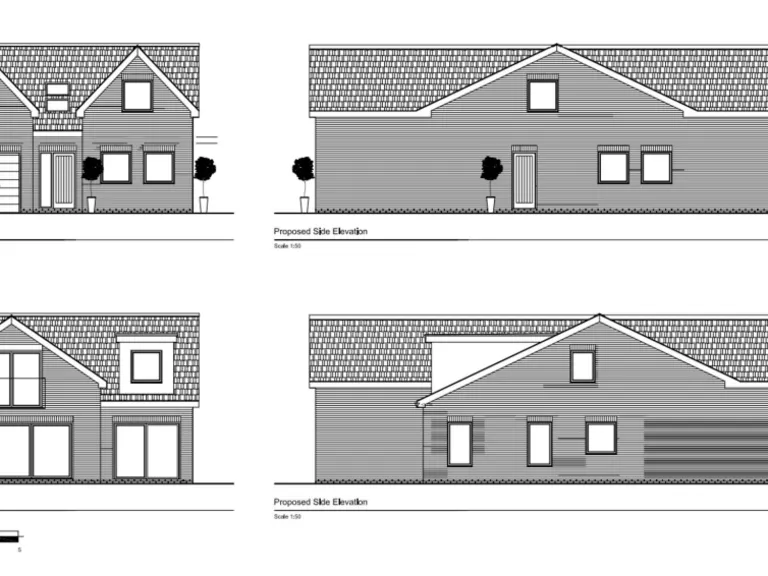
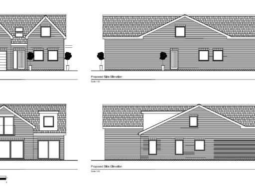
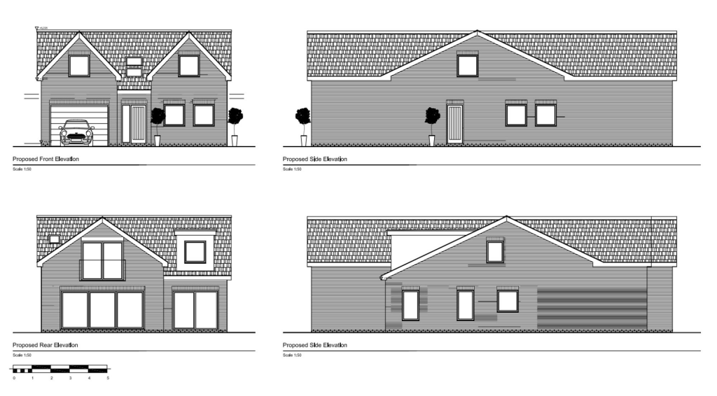
- **Planning Permission:** Approved for a 5-bed detached home with 4/5 reception rooms (Ref: 07/2020/00018/VAR).
- **Sizeable Plot:** Circa 3,550 sq ft offering extensive living space.
- **South Facing Garden:** Ideal for sunny afternoons and outdoor activities.
- **Private Driveway:** Convenient off-street parking available.
- **Affluent Location:** Nestled in a comfortable neighborhood with great local amenities and excellent mobile signal.
This generous building plot in Whitestake presents a unique opportunity for those aspiring to create their ideal family home. With planning permission in place for an expansive 5-bedroom detached house, you can design a residence tailored to modern family living. The proposed layout features an impressive ground floor with a spacious living kitchen at its heart, alongside a lounge, cinema room, and potential for a downstairs bedroom. The first floor boasts an expansive master suite and additional bedrooms with en-suite facilities, ensuring comfort and privacy.
Situated in a desirable area known for its quality schools, including outstanding-rated secondary institutions, this property is perfect for families seeking a serene rural lifestyle without sacrificing access to essential amenities. However, please note that broadband speeds are currently slow. As it stands, this plot offers substantial renovation potential while allowing buyers to craft a home that resonates with their personal style. Don’t miss this exclusive chance to secure your own slice of rural charm!
Land for sale in Falcon Court, Chain House Lane, PR4 — £300,000 • 1 bed • 1 bath • 3700 ft²
4 bedroom detached house for sale in Plot 1 Whittingham Lane, Preston, PR3 2JJ, PR3 — £300,000 • 4 bed • 1 bath
Land for sale in Layton Road, Ashton-On-Ribble, Preston, PR2 — £120,000 • 1 bed • 1 bath
Plot for sale in Higher Walton Road, Walton-le-Dale, Preston, Lancashire, PR5 — £200,000 • 1 bed • 1 bath
4 bedroom detached house for sale in Plot 2 Whittingham Lane, Preston, PR3 2JJ, PR3 — £230,000 • 4 bed • 1 bath
Plot for sale in Town Lane, Whittle-le-Woods, Chorley, Lancashire, PR6 — £750,000 • 1 bed • 1 bath • 7800 ft²


















