**Standout Features:**
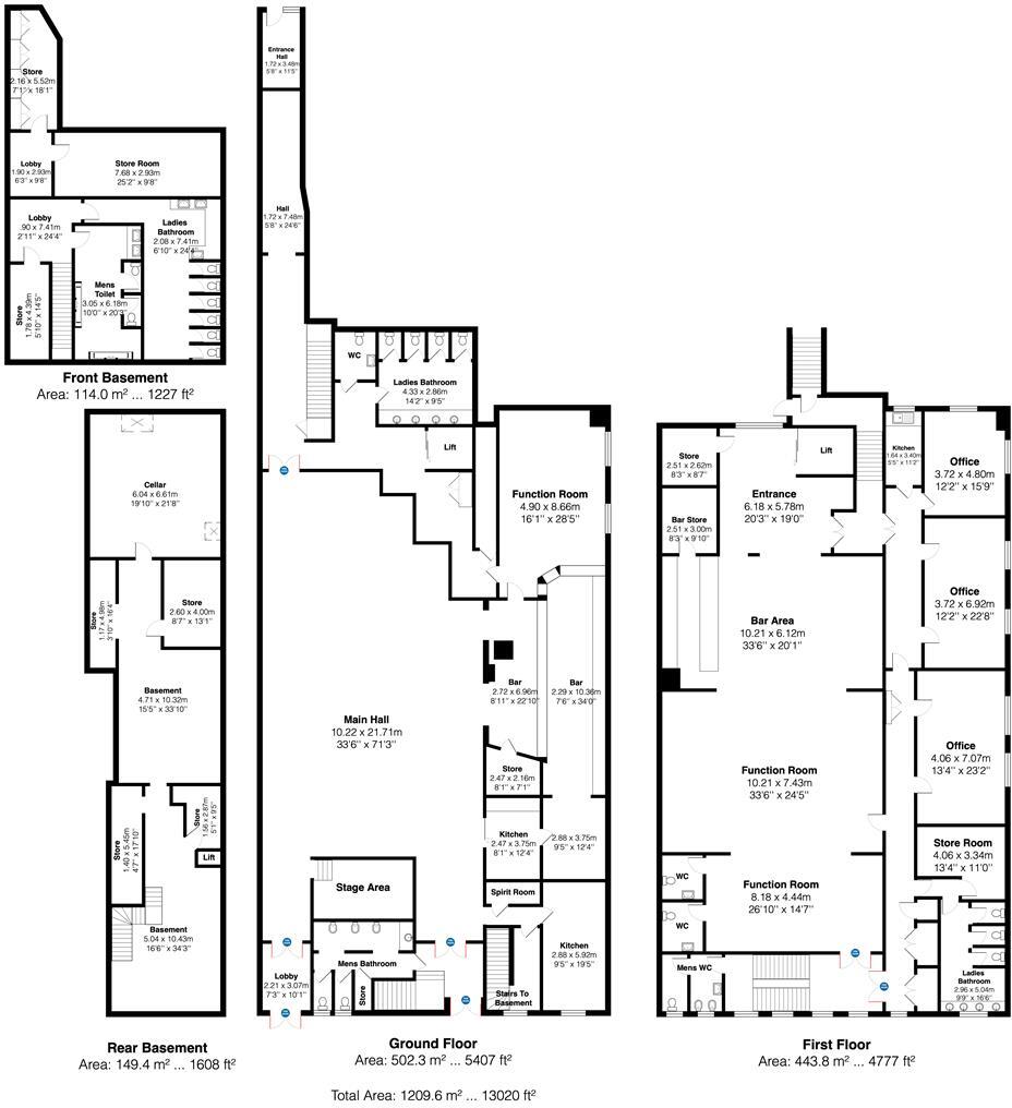
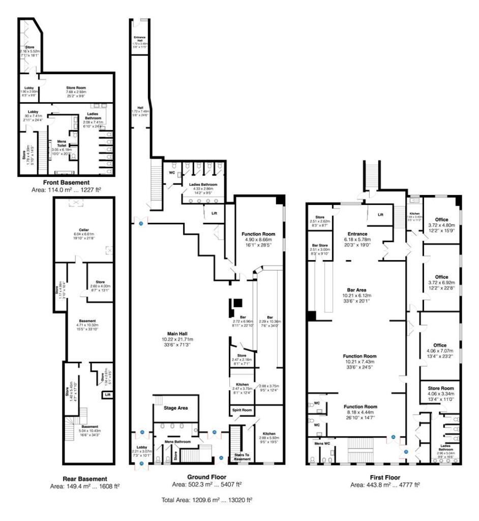
- Extensive total area of 13,020 square feet
- Versatile layout suitable for various commercial uses (event venue, members club, restaurant)
- Large open-plan dining and entertainment area with neon lighting
- Modern stage area for performances
- Excellent mobile signal and fast broadband access
- Freehold tenure
**Potential Concerns:**
- Current configuration may not suit all business types without renovation
- Areas may require maintenance or updates depending on the intended use
**Summary Description:**
Discover an extraordinary commercial opportunity in the heart of Brighton on Lewes Road. This expansive 13,020 square-foot terraced property currently operates as a members club but has the flexibility to be transformed into a trendy restaurant, stylish retail space, or vibrant event venue. With generous open-plan areas, including a spacious main hall and modern stage, you have the canvas to bring your entrepreneurial vision to life.
The property boasts a strategic location with high visibility, perfect for generating foot traffic. Surrounded by a diverse community and excellent local amenities, it promises a significant potential for business growth and success. With a freehold tenure, the possibilities for renovation and expansion are ample, inviting creatives and business-minded individuals to explore their options. Don't miss your chance to establish a remarkable presence in Brighton’s dynamic commercial scene—this opportunity won't last long!
Pub for sale in S-520071 - Tiki Hut, 2-3 High Street, Brighton BN2 1RP, BN2 — £525,000 • 1 bed • 1 bath • 10356 ft²
Office for sale in 5 Marlborough Place, Brighton, BN1 1UB, BN1 — £795,000 • 1 bed • 1 bath • 4059 ft²
High street retail property for sale in 10 High Street, Worthing, West Sussex, BN11 1NU, BN11 — £1,150,000 • 1 bed • 1 bath • 8011 ft²
Commercial property for sale in Queens Place, Brighton, BN1 — £325,000 • 1 bed • 1 bath • 650 ft²
Commercial property for sale in St. James's Street, Brighton, BN2 — £575,000 • 4 bed • 1 bath • 1476 ft²
Commercial property for sale in 15a Madeira Place, Brighton, East Sussex, BN2 1TN, BN2 — £125,000 • 1 bed • 1 bath • 13778 ft²


































