Affordable starter home with garden and driveway in a well-served location.
Chain free freehold two-bedroom semi-detached house
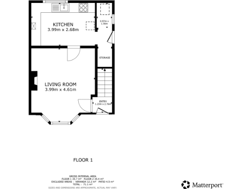
This semi‑detached two-bedroom home on Aintree Avenue is offered freehold and chain free, making it a straightforward purchase for a first-time buyer. The layout includes a spacious lounge, separate kitchen diner, utility/storage space and a family bathroom across two floors. A recently installed combi boiler and four new radiators (June 2024) reduce immediate heating costs.
Outside there is an off‑street driveway and gated front garden, plus an enclosed rear garden suitable for children or low-maintenance landscaping. The property sits in a popular Cantley neighbourhood close to primary and secondary schools, local shops, leisure space and good transport links. Broadband and mobile signal are strong here.
The house is a modest, mid‑20th century build of around 753 sq ft and will benefit from cosmetic updating throughout; flooring and kitchen show mid‑century fittings and some areas look dated. This presents clear scope to add value through refurbishment. Buyers should note the local crime level is high; take this into account when assessing security or insurance needs.
Overall this is a practical, affordable entry‑level home in a well‑served area, best suited to buyers willing to invest modestly in modernising finishes. The no‑chain position and recent boiler work make it move‑in ready in terms of services, while cosmetic improvements will unlock further market value.
2 bedroom semi-detached house for sale in Bowland Close, Bentley, Doncaster, South Yorkshire, DN5 — £150,000 • 2 bed • 1 bath • 731 ft²
3 bedroom semi-detached house for sale in Ascot Avenue, Doncaster, South Yorkshire, DN4 — £150,000 • 3 bed • 1 bath • 1074 ft²
3 bedroom semi-detached house for sale in Maple Avenue, Cantley, Doncaster, DN4 — £175,000 • 3 bed • 1 bath • 446 ft²
2 bedroom semi-detached house for sale in Aintree Avenue, Cantley, Doncaster, DN4 — £149,995 • 2 bed • 1 bath • 602 ft²
2 bedroom end of terrace house for sale in Staunton Road, Cantley, Doncaster, DN4 — £130,000 • 2 bed • 1 bath
2 bedroom semi-detached house for sale in Coterel Crescent, Cantley, Doncaster, DN4 — £145,000 • 2 bed • 1 bath • 1152 ft²










































































