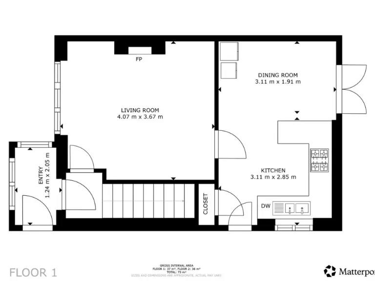
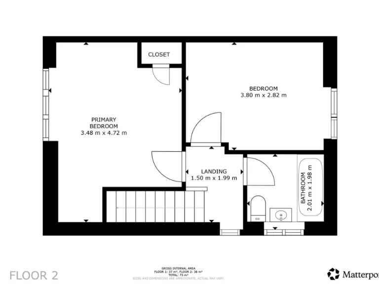
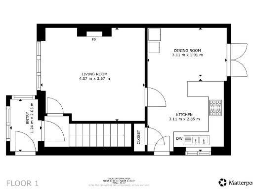
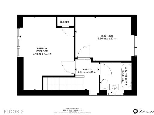
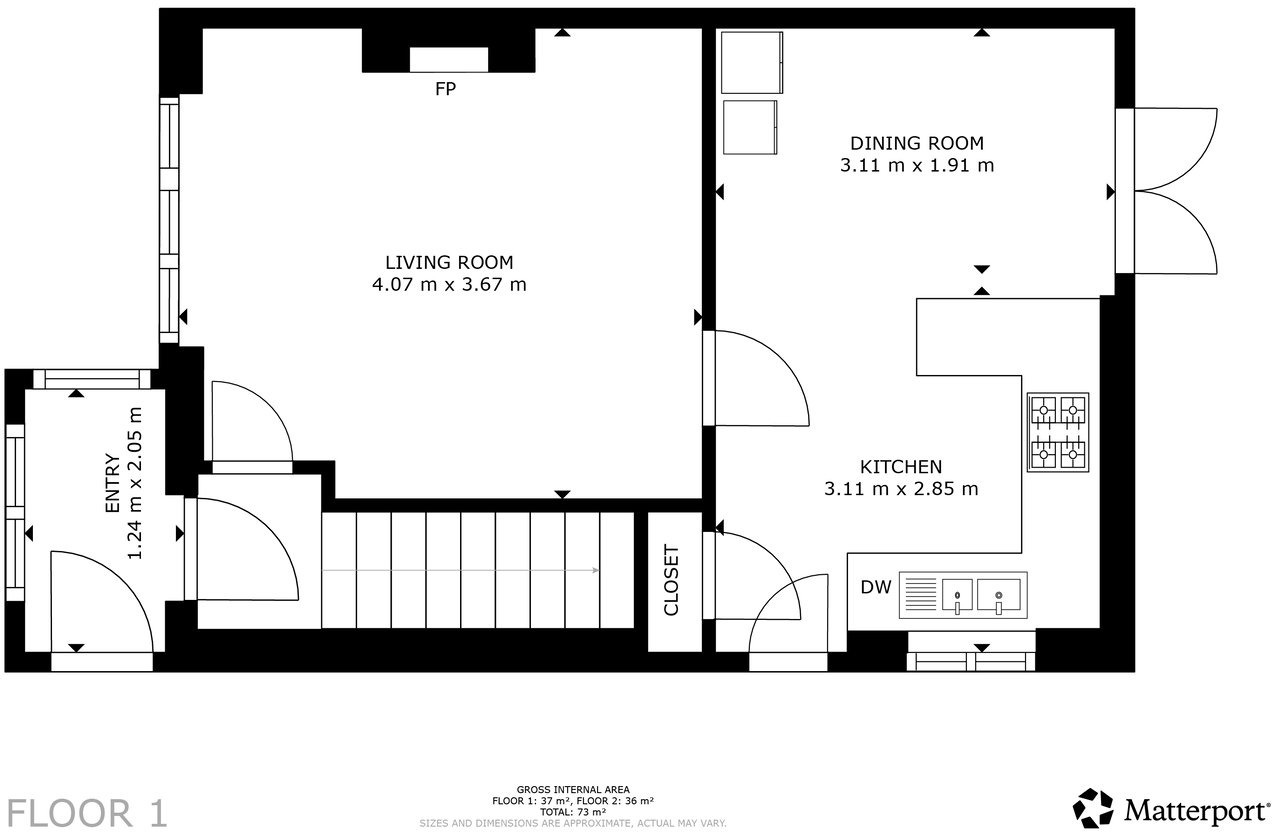
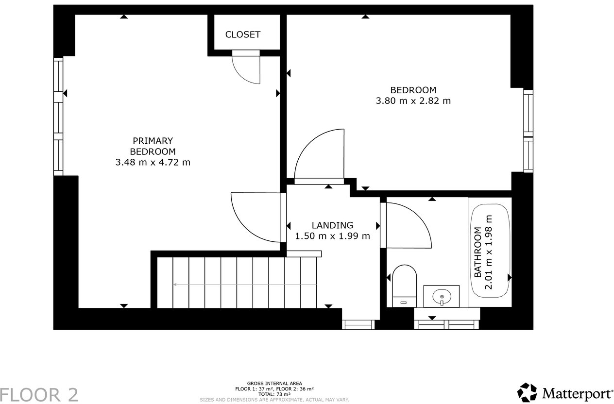
Two-bedroom freehold with driveway and large garden — ideal for first-time buyers or investors..
Freehold two-bedroom semi-detached house on decent plot
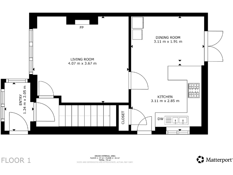
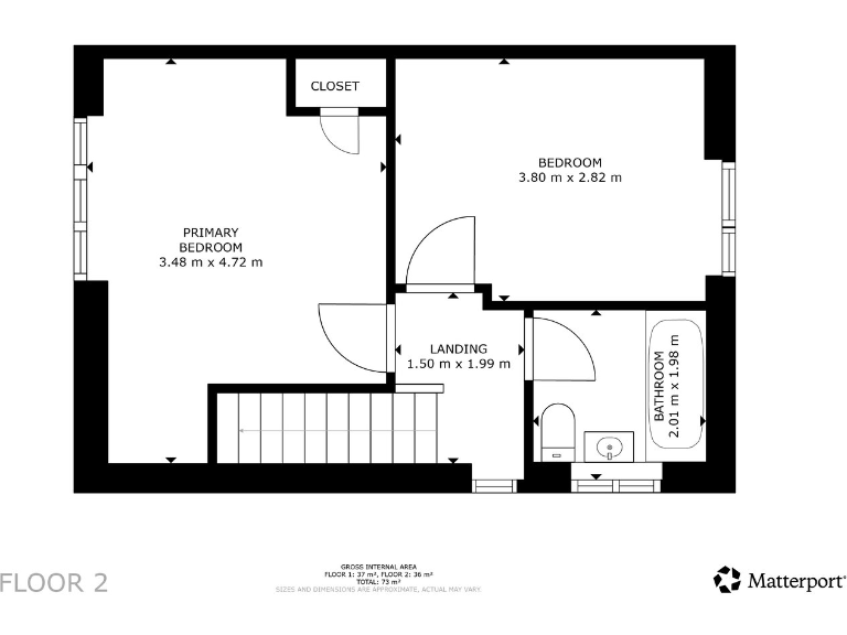
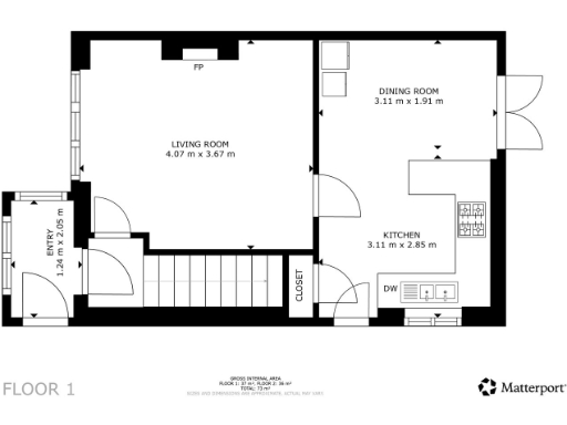
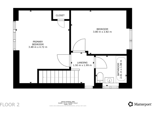
A two-bedroom semi-detached freehold in Cantley offering generous outdoor space and practical living for first-time buyers. The property sits on a decent plot with a wide frontage and off-street driveway, plus a private, enclosed rear garden ideal for children, pets or entertaining. Internal layout includes a lounge, kitchen-diner and family bathroom on a straightforward multi-storey plan.
The house was built c.1967–75 and benefits from mains gas central heating, filled cavity walls and double glazing (install date unknown). Broadband speeds are fast and mobile signal is average; there is no flooding risk and council tax is very cheap. Local schools are rated Good and day-to-day amenities and transport links are close by.
The kitchen-diner has rustic features and is dated, needing cosmetic updating or refurbishment to suit modern tastes. The area is classed as deprived with average crime levels—buyers should factor local neighbourhood conditions into their decision. Overall this is a practical, value-focused purchase with scope to add value through straightforward improvements.
3 bedroom semi-detached house for sale in Ewood Drive, Cantley , Doncaster, DN4 — £170,000 • 3 bed • 1 bath • 840 ft²
2 bedroom semi-detached house for sale in Bardolf Road, Doncaster, DN4 — £150,000 • 2 bed • 1 bath • 587 ft²
2 bedroom semi-detached house for sale in Willow Avenue, Cantley, DN4 — £170,000 • 2 bed • 1 bath • 819 ft²
2 bedroom semi-detached house for sale in Cornwall Road, Intake, Doncaster, DN2 — £150,000 • 2 bed • 1 bath • 702 ft²
2 bedroom semi-detached house for sale in Aintree Avenue, Cantley, Doncaster, DN4 — £160,000 • 2 bed • 1 bath • 602 ft²
2 bedroom semi-detached house for sale in Waverley Avenue, Doncaster, DN4 — £120,000 • 2 bed • 1 bath • 829 ft²






























































