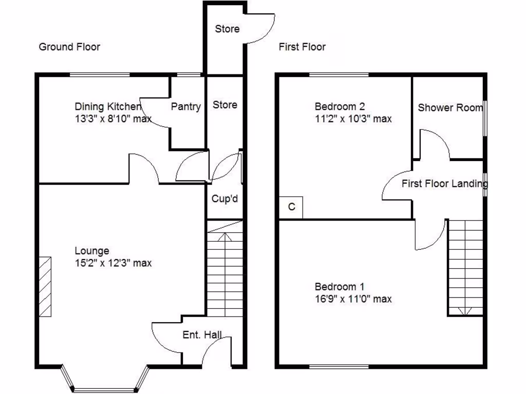
Compact, upgraded home ideal for first-time buyers or investors.
Two double bedrooms with modern shower room
A well-presented two-bedroom semi on Aintree Avenue offering compact, practical living for first-time buyers or downsizers. The house benefits from modern fittings including an integrated kitchen, contemporary shower room and double glazing. Solar panels and ultrafast broadband are useful running-cost and connectivity positives.
The rear garden is private with a paved patio and lawn, backing onto woodland for a sense of space beyond the small plot. A gated off-street parking space and driveway add convenience in a largely residential setting. The property is freehold and offered chain free, making a prompt move possible.
Buyers should note the limited overall size and small plot — this is a modest home rather than a family-size house. There is some mixed information on the heating supply and boiler age, so buyers should confirm heating type and service history. The local area records higher crime levels, which may concern some purchasers, but council tax is very low and broadband and mobile signals are excellent.
2 bedroom semi-detached house for sale in Willow Avenue, Cantley, DN4 — £170,000 • 2 bed • 1 bath • 819 ft²
2 bedroom end of terrace house for sale in Staunton Road, Cantley, Doncaster, DN4 — £130,000 • 2 bed • 1 bath
2 bedroom semi-detached house for sale in Coterel Crescent, Cantley, Doncaster, DN4 — £145,000 • 2 bed • 1 bath • 1152 ft²
2 bedroom end of terrace house for sale in Goodison Boulevard, Cantley, DN4 — £160,000 • 2 bed • 1 bath
2 bedroom end of terrace house for sale in Aidans Close, Doncaster, DN2 — £149,995 • 2 bed • 1 bath • 529 ft²
2 bedroom end of terrace house for sale in Goodison Boulevard, Cantley, Doncaster, DN4 — £130,000 • 2 bed • 1 bath • 342 ft²






























































