Bay-fronted two-bedroom terrace, chain-free and ready for renovation and value uplift..
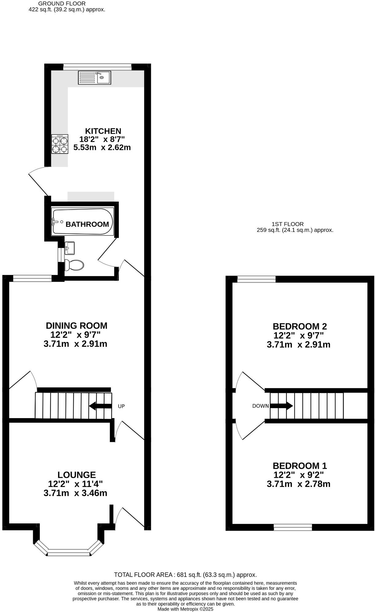
- Two double bedrooms with built-in storage cupboards
- Bay-fronted lounge and separate dining room
- Small, brick-walled enclosed rear garden with paved seating
- Sold with no onward chain for quicker completion
- Needs renovation throughout; budget for upgrades and modernisation
- Compact 681 sqft footprint; suited to buyers comfortable with smaller plots
- Double glazing and mains gas central heating present
- Average local crime and small plot size to consider
This traditional two-bedroom bay-and-forecourt terraced house in Southsea offers solid period character and scope to add value. The property is presented reasonably well but explicitly labelled as needing renovation, making it suitable for a buyer wanting to personalise and improve rather than move in with no works.
Downstairs layout includes a bay-fronted lounge, separate dining room and a fitted kitchen opening to a small enclosed rear garden. Two double bedrooms with built-in cupboards sit on the first floor alongside a fitted bathroom. The home benefits from double glazing, mains gas central heating and a compact footprint of about 681 sqft.
Key positives are the no onward chain sale, attractive Victorian bay window frontage and nearby amenities and schools rated Good. Notable drawbacks include the requirement for renovation works throughout, a small rear garden and average local crime—factors buyers should budget for when assessing cost and timeline.
This house will appeal to first-time buyers and investors who want a period home to update and personalise, or to create rental income in a private-renting neighbourhood. Early viewing is recommended to assess the renovation scope and potential uplift in value.
2 bedroom terraced house for sale in Talbot Road, Southsea, PO4 — £235,000 • 2 bed • 1 bath • 649 ft²
2 bedroom terraced house for sale in Lynn Road, Copnor, PO2 — £180,000 • 2 bed • 1 bath • 716 ft²
2 bedroom house for sale in Londesborough Road, Southsea, PO4 — £200,000 • 2 bed • 1 bath • 752 ft²
2 bedroom terraced house for sale in Harold Road, Southsea, PO4 — £200,000 • 2 bed • 1 bath • 836 ft²
2 bedroom terraced house for sale in Daulston Road, Portsmouth, PO1 — £189,950 • 2 bed • 1 bath • 721 ft²
2 bedroom terraced house for sale in Kassassin Street, Southsea, Hampshire, PO4 — £215,000 • 2 bed • 1 bath • 828 ft²






















































