**Standout Features:**
- Traditional Victorian end of terrace home
- 2 spacious double bedrooms
- Generous, westerly-facing garden
- No forward chain for quick purchase
- Excellent renovation potential
- Off-street parking available
- Located in a vibrant, student-friendly neighborhood
**Notable Concerns:**
- Requires extensive renovation
- Average-sized plot
- Cavity walls with no insulation
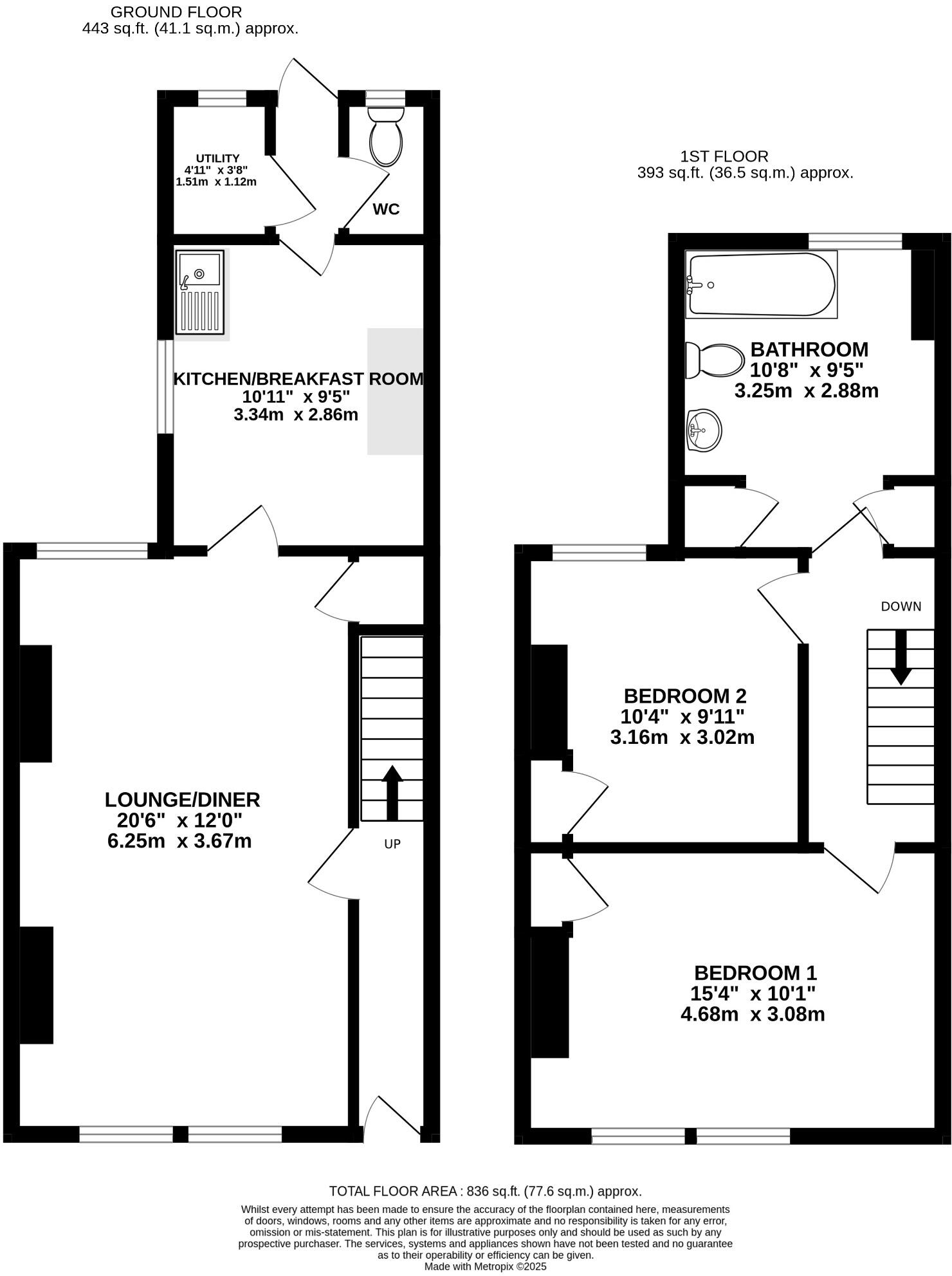
Unlock the potential of this charming Victorian end of terrace home, perfect for first-time buyers and investors alike, with 836 square feet of living space waiting for your personal touch. The property features a spacious lounge/diner, two generous double bedrooms, and a large bathroom nestled in what was once the third bedroom, offering a canvas for upgrades that will enhance value. Enjoy morning coffee or host evening gatherings in the expansive, westerly-facing garden, complemented by its low-maintenance brick shed.
Situated in a lively, cosmopolitan student neighborhood, this home is steps away from local amenities and reputable schools, making it a prime location for family living or rental investment. Although it requires significant renovation, the absence of a chain ensures a smooth transition to ownership, making this a rare opportunity that won't last long. With off-street parking and the potential for modern design, seize this unique opportunity to create your dream home in a thriving community.
2 bedroom house for sale in Londesborough Road, Southsea, PO4 — £200,000 • 2 bed • 1 bath • 752 ft²
2 bedroom terraced house for sale in Sutherland Road, Southsea, PO4 — £215,000 • 2 bed • 1 bath • 681 ft²
2 bedroom terraced house for sale in Suffolk Road, Southsea, Portsmouth, PO4 — £200,000 • 2 bed • 1 bath • 547 ft²
3 bedroom terraced house for sale in Northcote Road, Southsea, PO4 — £250,000 • 3 bed • 1 bath • 1063 ft²
3 bedroom terraced house for sale in Chichester Road, Portsmouth, PO2 — £220,000 • 3 bed • 1 bath • 1089 ft²
3 bedroom terraced house for sale in Mayles Road, Southsea, PO4 — £265,000 • 3 bed • 1 bath • 1030 ft²


















































