Spacious three-bedroom house with enclosed garden near good schools and transport links.
Victorian detached house with bay-fronted sitting room
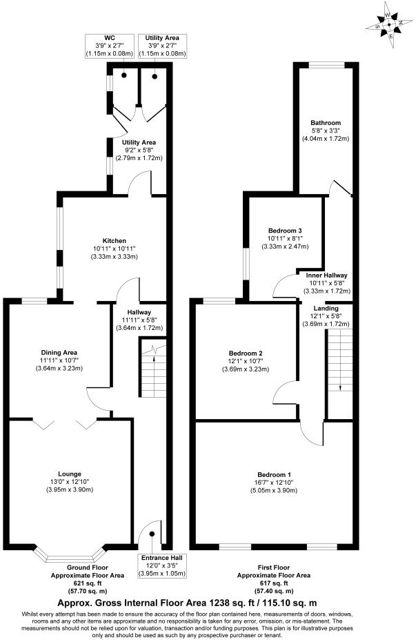
This well-proportioned three-bedroom detached home on York Road combines period character with practical family living. Two reception rooms — including a bay-fronted sitting room — provide flexible living and dining arrangements, while a modern kitchen and separate utility make daily routines straightforward.
Upstairs offers three generous double bedrooms and a family bathroom with separate shower; plenty of natural light and individual décor throughout give each room its own feel. The enclosed rear garden with patio and lawn is easy to maintain and suitable for children and pets, with direct access from the utility.
Practical details include mains gas boiler and radiators, double glazing (installation date unknown), freehold tenure and an affordable Council Tax band C. The property sits in a well-served market town with good schools, shops and direct road links via the A141 to Ely, Cambridge, Huntingdon and Peterborough.
Notable items for buyers: the house is of solid brick construction with no known cavity insulation (assumed) and may benefit from external or internal insulation upgrades. Parking is mixed in descriptions — on-street parking is available, and there is brick-paved off-road parking to the side; confirm vehicle space when viewing. Viewing recommended to assess condition and scope for any further improvements.
3 bedroom detached house for sale in Huntingdon Road, Chatteris, PE16 — £270,000 • 3 bed • 1 bath • 1040 ft²
3 bedroom semi-detached house for sale in York Road, Chatteris, PE16 — £260,000 • 3 bed • 1 bath • 1163 ft²
3 bedroom semi-detached house for sale in Westbourne Road, Chatteris, PE16 — £260,000 • 3 bed • 2 bath • 1054 ft²
3 bedroom detached house for sale in Chapel Lane, Chatteris, Cambs., PE16 6RJ, PE16 — £280,000 • 3 bed • 2 bath • 1109 ft²
3 bedroom link detached house for sale in London Road, Chatteris, Cambs, PE16 6AS , PE16 — £270,000 • 3 bed • 2 bath • 939 ft²
3 bedroom semi-detached house for sale in Westbourne Road, Chatteris, Cambs., PE16 6HG, PE16 — £230,000 • 3 bed • 1 bath • 713 ft²






































































