Practical family home with gardens and parking near Elizabeth Line links.
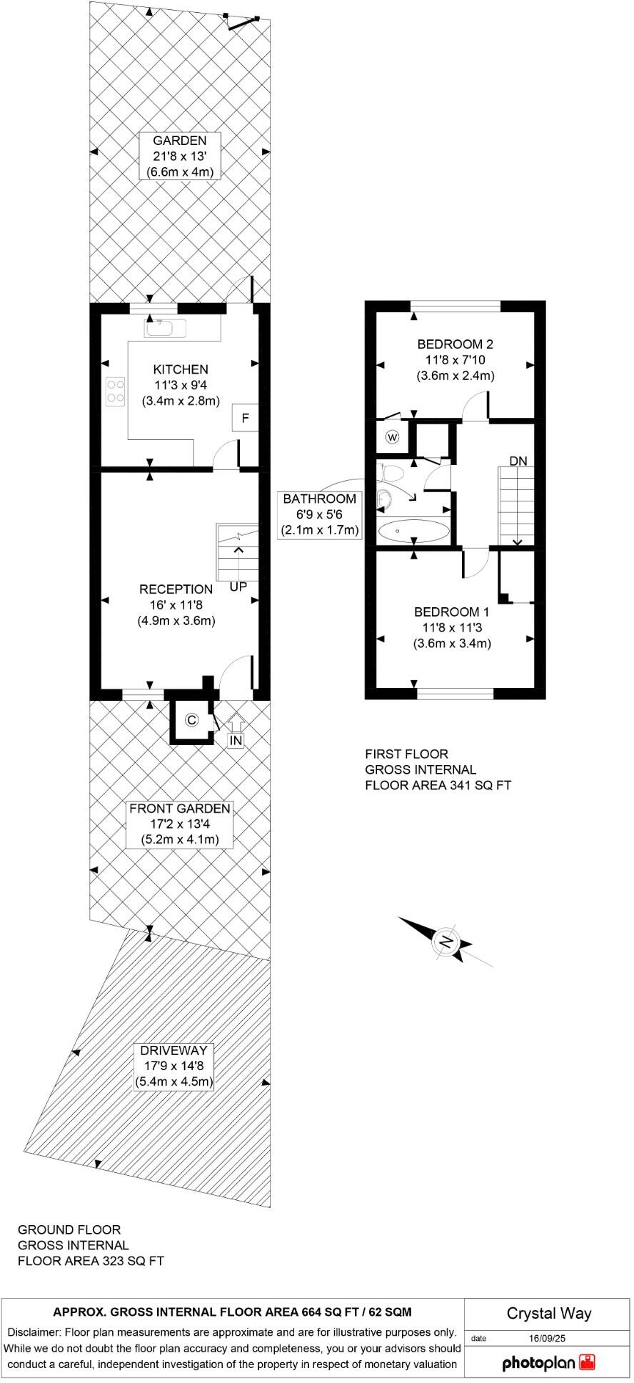
- Two double bedrooms, separate fitted kitchen
- Off-street driveway parking for multiple vehicles
- Private rear garden approx 21'8" x 13'
- Close to Chadwell Heath Elizabeth Line station
- EPC C; Council Tax Band C; freehold tenure
- Driveway, front garden need maintenance; roof inspection advised
- Above-average local crime and area deprivation
- Warm air gas heating; double glazed (install date unknown)
This two-bedroom mid-terrace offers practical family living a short walk from Chadwell Heath Elizabeth Line station, providing direct city links. The house benefits from off-street parking for multiple vehicles, a sizeable front and private rear garden, double glazing and gas heating — ready to move into with scope to update to your taste.
Rooms are well-proportioned: a 16' reception room, separate fitted kitchen and two double bedrooms upstairs, with a first-floor bathroom. The property is freehold, has an EPC rating of C and sits in a residential area with several good local schools nearby, making it suitable for young families.
Buyers should note some maintenance needs: the driveway and front garden require attention and the roof would benefit from an inspection. The area records above-average crime and higher local deprivation, which may affect long-term resale in parts of the RM8 district. Overall this is a practical, affordably taxed (Council Tax Band C) home with good transport links and potential to increase value with modest improvements.
3 bedroom terraced house for sale in Lindisfarne Road, Dagenham, RM8 — £390,000 • 3 bed • 1 bath • 741 ft²
3 bedroom end of terrace house for sale in Ager Avenue, Dagenham, RM8 — £475,000 • 3 bed • 1 bath • 778 ft²
2 bedroom maisonette for sale in Laneside Avenue, Dagenham, RM8 — £280,000 • 2 bed • 1 bath • 693 ft²
2 bedroom terraced house for sale in Fiennes Close, Dagenham, RM8 — £365,000 • 2 bed • 1 bath • 639 ft²
2 bedroom terraced house for sale in Cornshaw Road, Dagenham, London, RM8 — £375,000 • 2 bed • 1 bath • 700 ft²
2 bedroom terraced house for sale in Cornshaw Road, Dagenham, RM8 — £425,000 • 2 bed • 2 bath • 630 ft²










































