**Standout Features:**
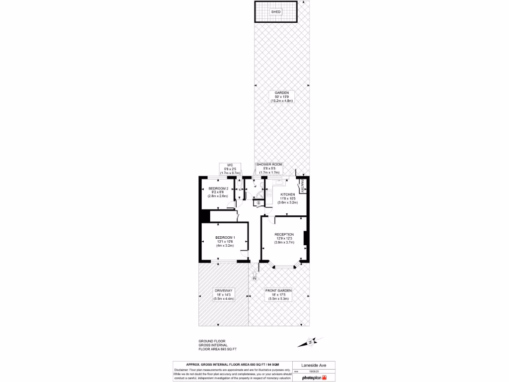
- 2-bedroom ground floor maisonette with 693 sq ft of living space
- Approx. 50' x 15'9 private rear garden, perfect for outdoor activities
- Driveway parking for convenience, approx. 18' x 14'3
- Chain-free sale with 97 years remaining on the lease
- Prime location near amenities and Chadwell Heath Elizabeth Line station for quick city access
- Cozy reception room, fitted kitchen, and separate shower room and W/C
Nestled in a vibrant, urban community, this charming 2-bedroom ground floor maisonette offers ample potential for first-time buyers and young families. With a spacious reception room measuring 12'9 x 12'3 and an efficiently designed fitted kitchen, the home combines comfort with functionality. Its generous outdoor space—including both a private rear garden and an inviting front garden—provides a rare opportunity for outdoor living in the city.
The property is in reasonable condition but presents a perfect canvas for your personal touch and future renovations. Gas central heating and double glazing ensure a cozy atmosphere throughout the year. While the area has an above-average crime rate, it is enriched by a cultural mix and is conveniently located close to schools with good Ofsted ratings, enhancing its appeal for families. With a guide price of £280,000 - £290,000 and chain-free status, this property won't last long—seize your chance to make it your own!
2 bedroom maisonette for sale in Rosslyn Avenue, Dagenham, RM8 — £300,000 • 2 bed • 1 bath • 752 ft²
2 bedroom terraced house for sale in Chadway, Dagenham, RM8 — £375,000 • 2 bed • 1 bath • 756 ft²
1 bedroom ground floor flat for sale in Neville Gardens, Dagenham, RM8 — £260,000 • 1 bed • 1 bath • 582 ft²
2 bedroom terraced house for sale in Bushway, Dagenham, RM8 — £375,000 • 2 bed • 1 bath • 910 ft²
1 bedroom maisonette for sale in Finnymore Road, Dagenham, RM9 — £220,000 • 1 bed • 1 bath • 334 ft²
1 bedroom maisonette for sale in Clementhorpe Road, Dagenham, RM9 — £220,000 • 1 bed • 1 bath • 641 ft²






















































