DN39 6YS - 4 bedroom property for sale in Manor Farmyard, East End, Ki…

View on Property Piper

4 bedroom property for sale in Manor Farmyard, East End, Kirmington, Ulceby, DN39

Summary - 20 EAST END KIRMINGTON ULCEBY DN39 6YS

4 bed 3 bath Not Specified

**Standout Features:**
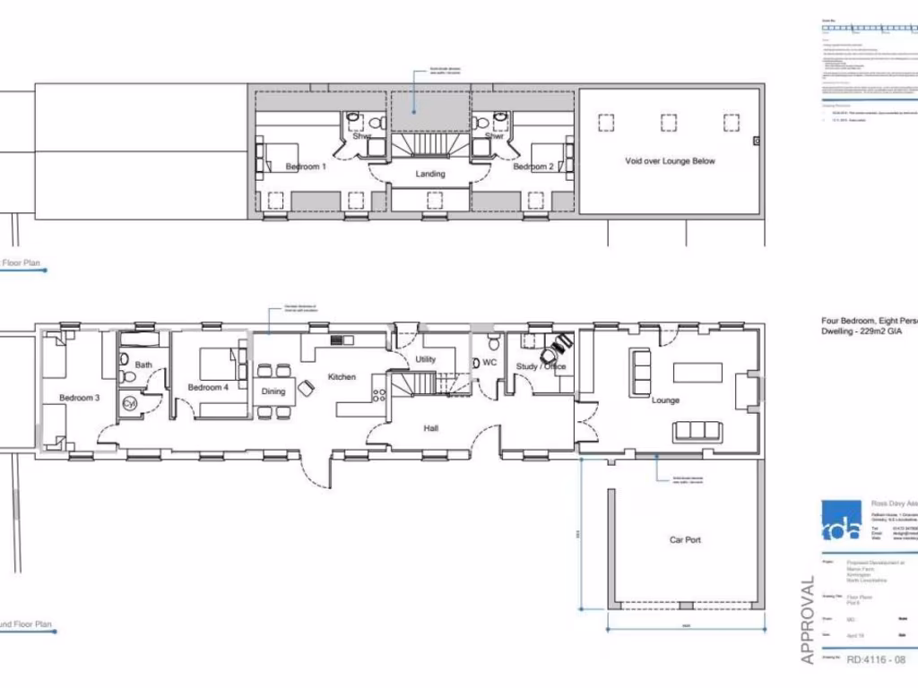
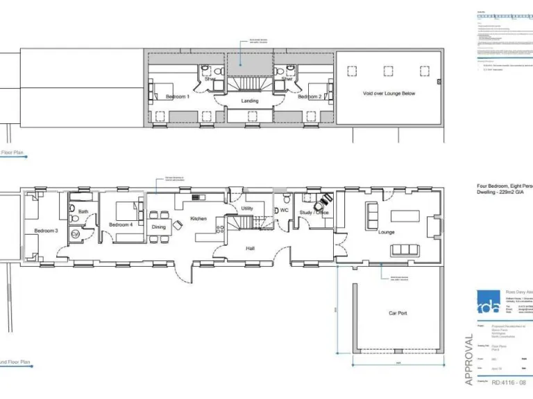
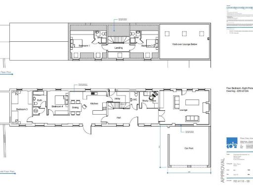
- **Exciting Conversion Opportunity:** Potential for a stunning transformation of a characterful barn into a unique four-bedroom home.
- **Spacious Design:** Plans include a reception hall, study/office, expansive lounge with a vaulted ceiling, and a dining kitchen.
- **En-Suite Bedrooms:** Two first-floor bedrooms will feature their own en-suite bathrooms, enhancing privacy for family or guests.
- **Scenic Views:** Rear aspect overlooks serene paddocks, offering a peaceful rural lifestyle.
- **Accessible Location:** Close to major routes and Humberside International Airport, ideal for commuters.

**Potential Concerns:**
- **Renovation Needs:** The barn requires a significant conversion effort, with all costs for utility connections falling to the purchaser.
- **Infrastructure Responsibilities:** The buyer will need to ensure the property meets Building Regulation standards and may encounter variability in the overall development scheme.

Embrace a rare opportunity to convert a historical barn into your dream home in the charming village of Kirmington. The generous layout promises ample space for family gatherings, and with planning permission granted, your vision can come to life. Enjoy modern amenities, yet relish the character and tranquil views over lush paddocks. This property offers a unique blend of countryside charm with the convenience of nearby urban hubs—perfect for first-time buyers or those seeking an investment project. Don't miss out on making this exclusive property your own; opportunities like this are quickly claimed!

Property Details

Brochure Descriptions

Image Descriptions

Textual Property Features

Detected Visual Features

EPC Details

Nearby Schools

Nearest Bars And Restaurants

,,,,}

Nearest General Shops

,,}

Nearest Grocery shops

,,}

Nearest Supermarkets

,,}

Nearest Religious buildings

,,}

Nearest Medical buildings

,,,}

Nearest Leisure Facilities

,,,,}

Nearest Tourist attractions

,,}

Nearest Train stations

,,,,}

Nearest Bus stations and stops

,,,,}

Nearest Hotels

,,}

Tags

Local Market Stats

Similar Properties

Meta

High Res Images

Compatible Images

Low res Images

Thumbnails

Raw Images