Spacious garden with pergola and summer house, close to good schools.
Chain-free freehold end-of-terrace, ideal for families
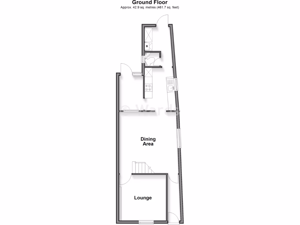
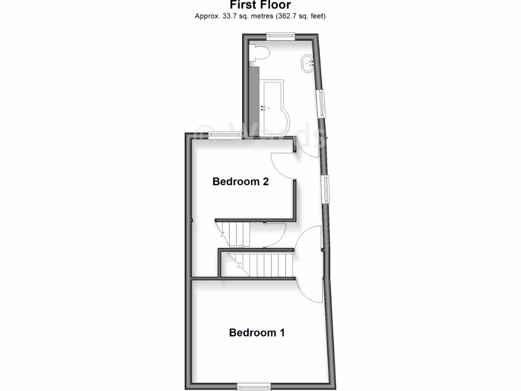
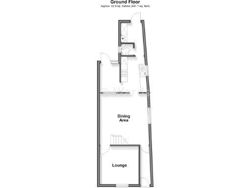
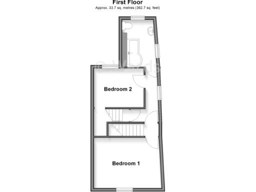
This chain-free three-bedroom end-of-terrace offers an unusually private rear garden and flexible three-floor family living in central Dover. The property feels well cared for and benefits from double glazing, mains gas heating and a compact but practical layout suited to everyday family life.
The rear garden is the standout feature: landscaped with artificial grass, a pergola and summer house/home office that create a low-maintenance outdoor retreat and extra usable space. Bedrooms are decent sizes for the footprint, and the living and dining areas connect well for family time or entertaining.
Buyers should be aware of the wider neighbourhood context: the area is classified as very deprived with higher local crime levels. The house is a pre-1900 solid brick build with no assumed wall insulation, so buyers wanting improved energy performance should plan upgrades. Accommodation is small overall (circa 726 sq ft) with a single family bathroom, so space-conscious families should check room needs carefully.
Practical positives include freehold tenure, fast broadband and excellent mobile signal, proximity to several well-rated schools, and no onward chain. The home suits first-time buyers or young families seeking a centrally located property with a ready-to-use garden and scope for energy and cosmetic improvements.
3 bedroom end of terrace house for sale in Oswald Place, Dover, Kent, CT17 — £145,500 • 3 bed • 1 bath • 726 ft²
3 bedroom terraced house for sale in Beaconsfield Avenue, Dover, Kent, CT16 — £250,000 • 3 bed • 1 bath • 1120 ft²
3 bedroom terraced house for sale in Astor Avenue, Dover CT17 — £220,000 • 3 bed • 1 bath • 894 ft²
3 bedroom end of terrace house for sale in Mayfield Avenue, Dover, Kent, CT16 — £220,000 • 3 bed • 1 bath • 624 ft²
3 bedroom terraced house for sale in Brookfield Avenue, Dover, Kent, CT16 — £225,000 • 3 bed • 1 bath • 851 ft²
3 bedroom terraced house for sale in Clarendon Place, Dover, Kent, CT17 — £180,000 • 3 bed • 1 bath • 743 ft²






































































