Turnkey three-bedroom home close to schools and town amenities.
Immaculately presented — ready to move in
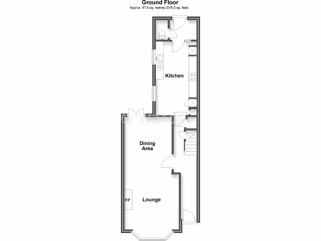
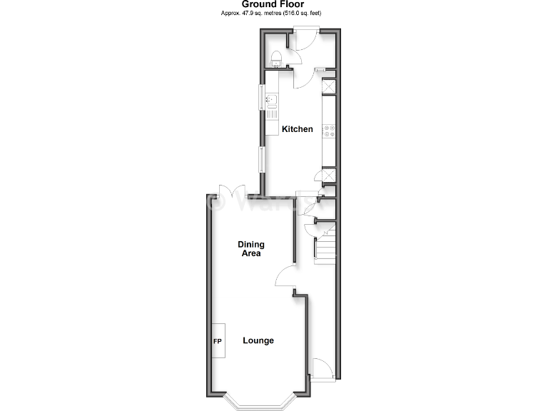
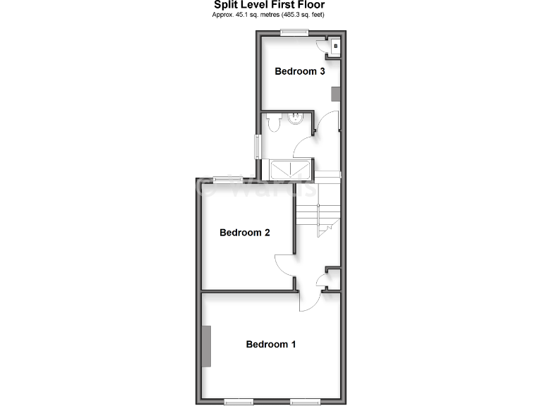
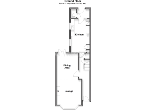
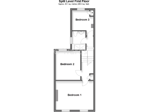
This well-presented three-bedroom Victorian terrace offers a ready-to-move-in family home in central Dover. The layout includes a bay-fronted living room, separate dining space, a long kitchen, downstairs cloakroom and a single shower room upstairs. Internally the property is described as immaculate throughout and will suit buyers seeking a turnkey home with minimal immediate work.
Practical benefits include a larger-than-average rear garage — useful for parking, secure storage or a potential home office — and a low-maintenance rear garden. The house is freehold, on mains gas with gas central heating, double glazed windows, and an affordable council tax band, all helping to keep running costs reasonable. Local connectivity is strong with fast broadband and excellent mobile signal.
The location is convenient for families: multiple primary and secondary schools (including two grammar schools) are within walking distance, and shops and amenities are close by. The property’s modest footprint and compact garden suit buyers wanting low garden upkeep or those looking to prioritise location over outdoor space.
Important considerations are factual and should influence viewing decisions. The wider area is classified as very deprived with higher crime levels, and the street sits in a neighbourhood of constrained renters — factors that may affect resale or rental prospects. The house is a traditional solid-brick build (likely without cavity wall insulation) and dates from c.1900–1929, so buyers should expect older construction details and the potential need for future insulation or upgrade works. The plot is small and there is a single shower room for three bedrooms.
3 bedroom terraced house for sale in Beaconsfield Avenue, Dover, Kent, CT16 — £250,000 • 3 bed • 1 bath • 1120 ft²
3 bedroom terraced house for sale in Buckland Avenue, Dover, Kent, CT16 — £300,000 • 3 bed • 1 bath • 1035 ft²
3 bedroom terraced house for sale in Brookfield Avenue, Dover, Kent, CT16 — £225,000 • 3 bed • 1 bath • 851 ft²
3 bedroom end of terrace house for sale in Woods Place, Dover, Kent, CT17 — £300,000 • 3 bed • 2 bath • 1411 ft²
3 bedroom terraced house for sale in Wood Street, Dover, Kent, CT16 — £210,000 • 3 bed • 1 bath • 948 ft²
4 bedroom terraced house for sale in Buckland Avenue, Dover, Kent, CT16 — £275,000 • 4 bed • 2 bath • 1309 ft²






































































