Spacious family home within walking distance of Dover Priory station.
Three double bedrooms with large principal room
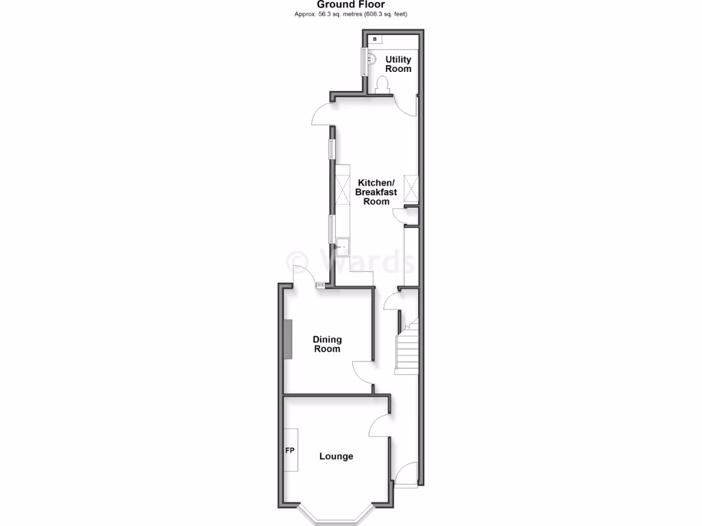
A roomy Victorian mid-terrace in central Dover, this three-bedroom home suits growing families who need space and quick rail links. The house retains period character — bay windows and arched entry — and offers generously proportioned rooms including a long kitchen/breakfast room and a large principal bedroom.
Practical benefits include double glazing installed after 2002, mains gas central heating with boiler and radiators, a small front garden and a manageable rear garden with a shed. It’s an easy walk to Dover Priory station for fast London commutes and close to several well-regarded primary and secondary schools, including two grammar schools.
Buyers should note material issues plainly: the property is built with solid brick and is assumed to have no cavity insulation, so energy performance and future insulation work may be required. The plot is small and there is only one family bathroom, which could feel limiting for larger households. The wider area is classified as very deprived and local crime levels are above average — factors to consider for resale or long-term investment.
Offered freehold at £300,000, the house presents clear scope to update and improve — ideal for families seeking character with potential, or buyers looking to refurbish for added value. Viewing is recommended to assess room sizes, layout and the work needed to make the property your own.
3 bedroom terraced house for sale in Clarendon Street, Dover, Kent, CT17 — £175,000 • 3 bed • 1 bath • 762 ft²
3 bedroom end of terrace house for sale in Woods Place, Dover, Kent, CT17 — £300,000 • 3 bed • 2 bath • 1411 ft²
3 bedroom terraced house for sale in Buckland Avenue, Dover, Kent, CT16 — £250,000 • 3 bed • 1 bath • 937 ft²
3 bedroom terraced house for sale in Beaconsfield Avenue, Dover, Kent, CT16 — £250,000 • 3 bed • 1 bath • 1120 ft²
3 bedroom terraced house for sale in Brookfield Avenue, Dover, Kent, CT16 — £225,000 • 3 bed • 1 bath • 851 ft²
4 bedroom terraced house for sale in Whitfield Avenue, Dover, Kent, CT16 — £260,000 • 4 bed • 1 bath • 1260 ft²


























































