Compact village cottage with garden and strong renovation potential for hands-on buyers.
- Guide Price £120,000 to £140,000, sale by online auction 19 Nov 2025
- Detached period cottage with south-facing conservatory and patio garden
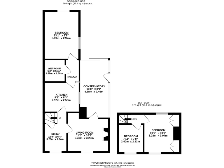
- Small footprint ~741 sq ft; compact rooms and low ceilings
- Requires full modernisation; likely insulation and cosmetic work needed
- Solid brick walls (assumed no insulation) and EPC rating E
- Vendors retain a parcel of garden — check legal pack
- Freehold; mains gas heating and partial double glazing
- Administration £1,200 and buyer's premium £600 payable on exchange
A compact detached period cottage in Great Ryburgh offered at Guide Price £120,000–£140,000 and due for sale by online auction on 19 November 2025. The house sits on a small plot close to village amenities (around 50 yards from the village stores) and includes a south-facing conservatory, patio garden and separate store/workshop. Heating is mains gas with a boiler and radiators; double glazing was fitted after 2002.
The property requires a full programme of modernisation: cosmetic refurbishment, likely upgrading of insulation (solid brick walls assumed uninsulated), and general updating to improve EPC and living standards. Internally the layout provides a ground-floor bedroom and shower room plus two first-floor bedrooms — useful for flexible use but limited in overall space (approx. 741 sq ft).
Important sale information: the sale will be by online auction (19 November 2025). The vendors are retaining a parcel of garden within the current title (see legal pack). Purchasers should budget for an administration fee (£1,200 inc. VAT) and buyer’s premium (£600 inc. VAT) payable on exchange, plus any disbursements listed in the legal pack.
This cottage is best suited to a buyer seeking a renovation project or a small-scale investor able to carry out improvements. Its village location, freehold tenure and very low council tax provide clear cost advantages, but allow for the renovation scope and auction timetable when planning a purchase.
2 bedroom cottage for sale in Great Ryburgh, NR21 — £220,000 • 2 bed • 2 bath • 662 ft²
3 bedroom end of terrace house for sale in 9 Colin Mclean Road, Dereham, Norfolk NR19 2RY, NR19 — £130,000 • 3 bed • 1 bath • 947 ft²
3 bedroom detached house for sale in Fakenham Road, NR21 — £185,000 • 3 bed • 1 bath • 700 ft²
4 bedroom detached house for sale in Great Ryburgh, NR21 — £550,000 • 4 bed • 1 bath • 2179 ft²
2 bedroom bungalow for sale in Fakenham Road, Fakenham, NR21 — £180,000 • 2 bed • 1 bath • 753 ft²
7 bedroom detached house for sale in Great Ryburgh, NR21 — £900,000 • 7 bed • 3 bath • 3008 ft²














































































