Central Shepherds Bush location with private outdoor space and strong transport links.
Share of freehold with an exceptionally long lease (991 years).
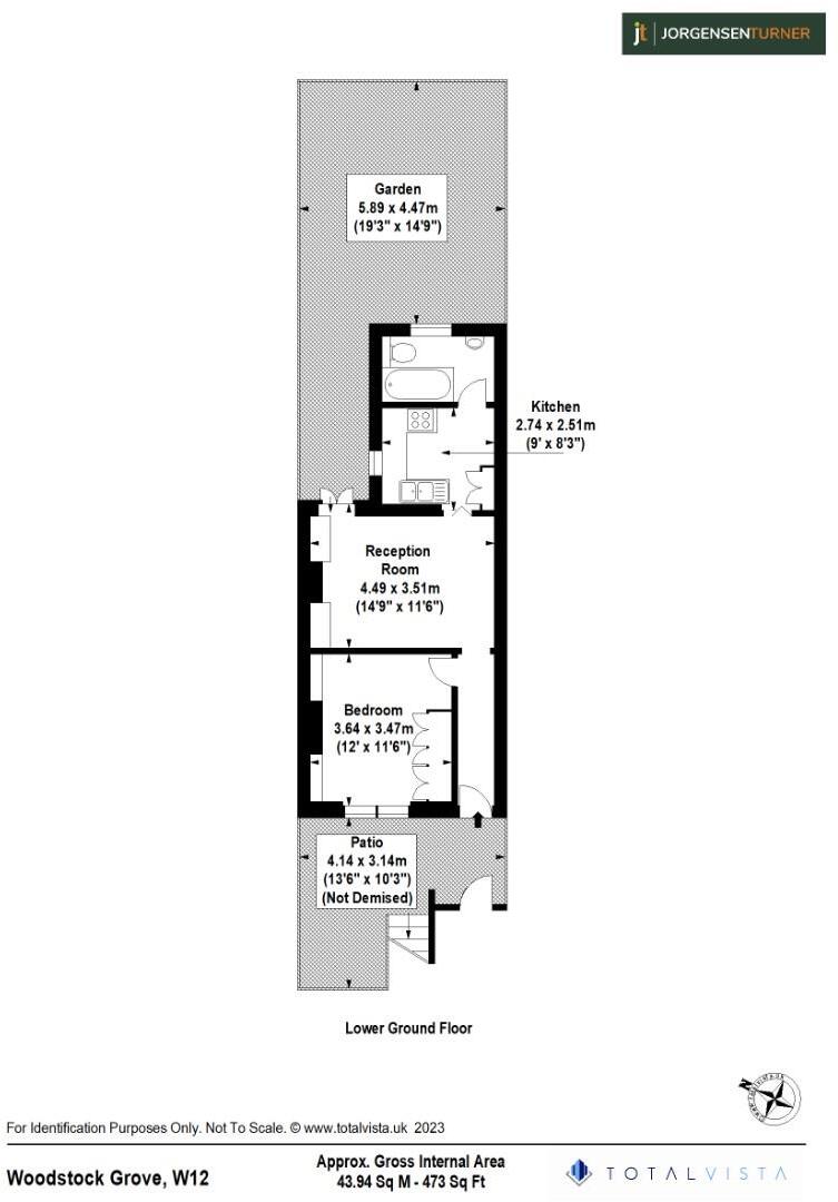
Set within an attractive Victorian terrace in Shepherds Bush, this one-bedroom lower-ground flat offers a practical, centrally located home with a private patio garden. The apartment benefits from double glazing, mains gas heating and a very long lease with share of freehold ownership, making it straightforward for a first-time buyer to plan long-term costs.
The reception room is bright for a basement-level property and opens onto a paved, low-maintenance garden. The bedroom includes fitted wardrobes and the layout is efficient for single occupancy or a couple. Transport links are excellent, with Central Line, Overground and District Line connections nearby, plus fast broadband and strong mobile signal for home working.
Buyers should note this is a traditional lower-ground flat with solid brick walls likely lacking cavity insulation, and the garden is currently overgrown and would benefit from attention. Service charges are to be confirmed. Overall, the property suits someone seeking an affordable foothold in a lively, well-connected area with good local schools and green spaces close by.
2 bedroom apartment for sale in Stanlake Road, London, W12 — £750,000 • 2 bed • 2 bath • 822 ft²
1 bedroom apartment for sale in Ellerslie Road, London, W12 — £425,000 • 1 bed • 1 bath • 538 ft²
2 bedroom flat for sale in Stanlake Road, Shepherd's Bush, London, W12 — £685,000 • 2 bed • 2 bath • 742 ft²
2 bedroom flat for sale in Bassein Park Road, Askew Village, London, W12 — £625,000 • 2 bed • 1 bath • 679 ft²
3 bedroom apartment for sale in Richmond Way, London, W12 — £575,000 • 3 bed • 2 bath • 1034 ft²
1 bedroom flat for sale in Lime Grove, Shepherd's Bush W12 — £629,950 • 1 bed • 1 bath • 853 ft²


































