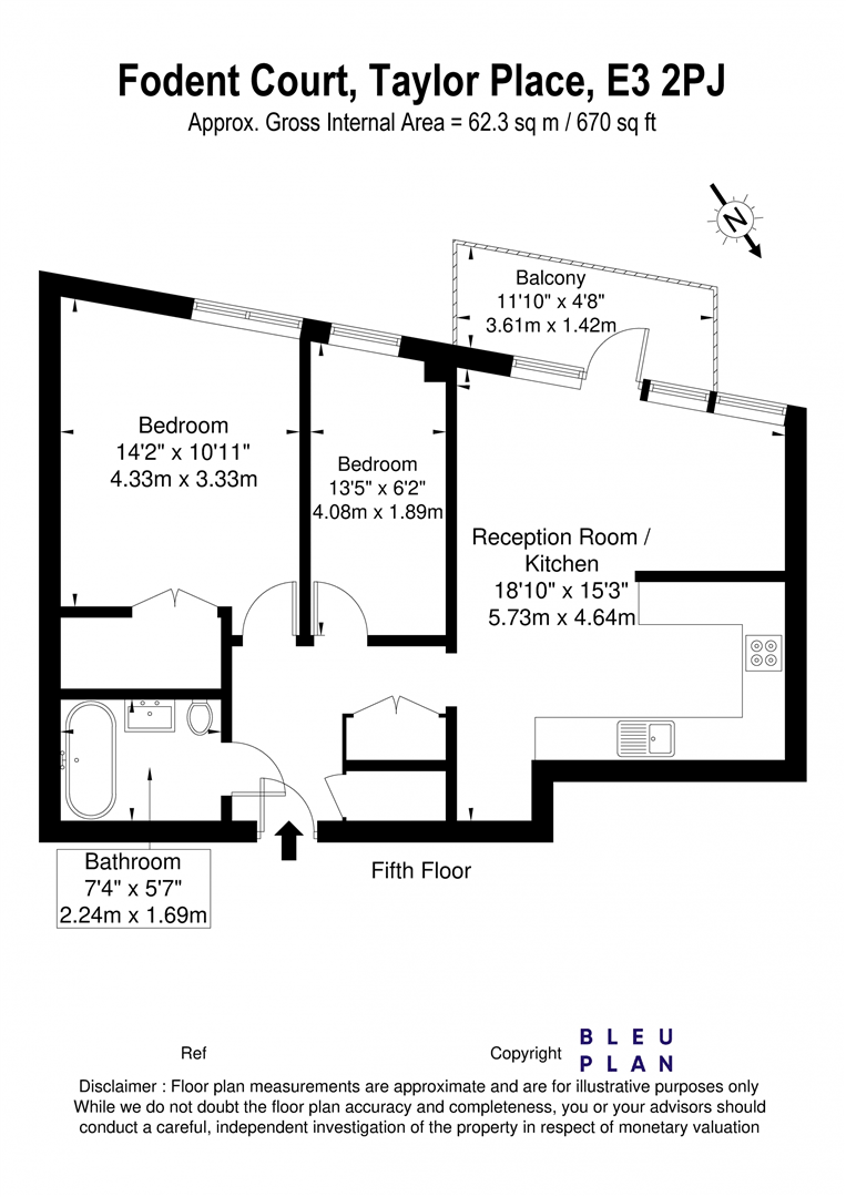
**Standout Features:**
- Modern 2-double bedroom apartment on the 5th floor
- Bright open-plan reception with a private balcony
- Located in a secure, gated development
- Conveniently near Bow Road and Bow Church Stations
- Fast broadband and excellent mobile signal
- Chain free sale with leasehold of 90 years
- Moderate service charge of £3,720 per year
- Close proximity to schools with good to outstanding ratings
**Summary:**
Welcome to your urban retreat in the heart of Bow! This modern 2-bedroom apartment, encompassing 670 square feet, offers a bright and spacious open-plan living area that seamlessly connects to a private balcony, perfect for enjoying city views. The contemporary kitchen features sleek cabinetry and integrated appliances, ideal for both cooking and entertaining. Situated on the 5th floor of a gated development, this home provides a secure, tranquil setting with convenient lift access.
Ideal for first-time buyers, small families, or investors, it's just a stone's throw from Bow Road and Bow Church Stations, ensuring easy access to Central London. The appealing location is complemented by a range of nearby amenities, schools with excellent ratings, and vibrant communal spaces. While the apartment is chain free and ready for immediate occupancy, do note the average crime rates in the area. Don’t miss this opportunity to own a piece of urban living – it’s the perfect blend of comfort, security, and future potential. Act quickly, as properties like this are not on the market for long!
1 bedroom apartment for sale in Fondant Court, Bow, E3 — £300,000 • 1 bed • 1 bath • 507 ft²
2 bedroom apartment for sale in Ducaine Apartments, Merchant Street, Bow, E3 — £400,000 • 2 bed • 2 bath • 760 ft²
2 bedroom flat for sale in Rainhill Way, London, E3 — £450,000 • 2 bed • 2 bath • 712 ft²
2 bedroom flat for sale in Caramel Court, Bow, E3 — £350,000 • 2 bed • 1 bath • 665 ft²
2 bedroom apartment for sale in Fondant Court, Taylor Place, Bow, E3 — £85,000 • 2 bed • 1 bath • 670 ft²
2 bedroom flat for sale in Menai Place, Blondin Street, Bow, London, E3 — £375,000 • 2 bed • 1 bath • 674 ft²














































