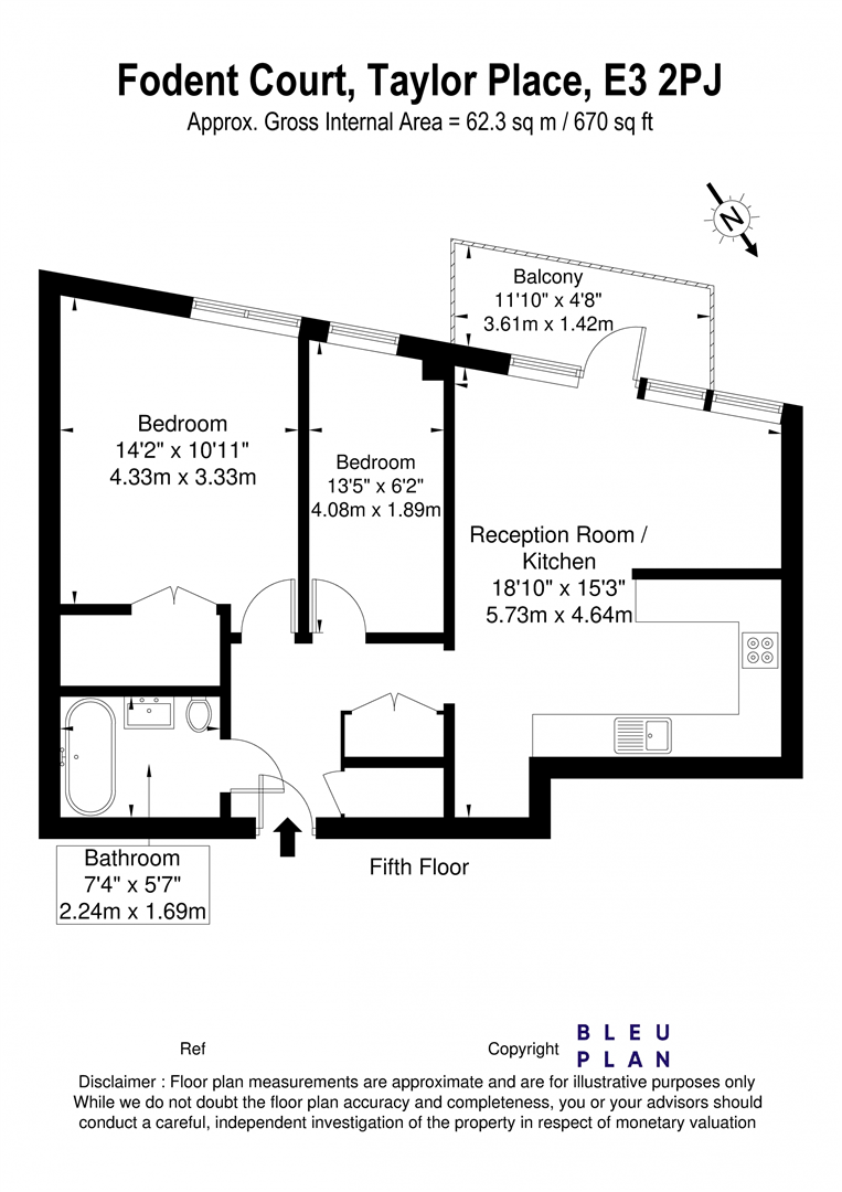
**Standout Features:**
- Bright 5th-floor apartment in a modern gated development
- 2 double bedrooms and 1 family bathroom
- Private balcony with urban views
- Open-plan reception with contemporary kitchen
- Chain-free with a shared ownership option (25% available)
**Summary:**
Discover this bright and welcoming 2-bedroom apartment located on the 5th floor of a modern gated development in Bow. Spanning 670 square feet, the space features a spacious open-plan reception area that seamlessly connects to a private balcony, ideal for enjoying city views. The property showcases a well-appointed kitchen and comfortable living arrangements, including a generously sized master bedroom and a second bedroom perfect for guests or a home office.
This chic living space is situated just moments away from Bow Road and Bow Church Stations, offering convenient access to transport links and nearby amenities, including cafes, shops, and parks. Perfect for urban professionals or small families seeking a vibrant community, this property comes chain-free and is available as a 25% shared ownership opportunity, with potentially attractive rental yields. However, please note that the property has a 90-year lease remaining, and the surrounding area's crime rate is notably high, which may warrant consideration for security measures. Embrace modern inner-city living in this stylish apartment—opportunities like this don’t last long!
1 bedroom apartment for sale in Flat 103, Werner Court, 2 Aqua Vista Square, London, E3 — £96,000 • 1 bed • 1 bath • 526 ft²
2 bedroom flat for sale in Waterway Building, 12 Hart Yard, Bow, London, E3 2FW, E3 — £156,250 • 2 bed • 2 bath • 807 ft²
2 bedroom apartment for sale in Diagoras House, Bow, E3 — £153,000 • 2 bed • 2 bath • 797 ft²
1 bedroom flat for sale in Greenway Building, 349 Wick Lane, Fish Island, Bow, London, E3 2BX, E3 — £152,250 • 1 bed • 1 bath • 547 ft²
1 bedroom flat for sale in Trajan Court, 56 Usher Road, London, E3 — £126,000 • 1 bed • 1 bath • 538 ft²
2 bedroom apartment for sale in Fondant Court, Taylor Place, Bow, E3 — £325,000 • 2 bed • 1 bath • 670 ft²






















































