Large freehold plot with approved four-bed design in Area of Outstanding Natural Beauty..
Detailed planning approval for detached four-bedroom house
Large self-build plot with stunning countryside views
Road access to adoptable standard and mains to boundary
Developer delivers to 'Golden Brick' stage; buyer completes remaining work
Purchaser must obtain their own detailed planning permission if altering plans
Freehold, no flood risk, low crime, excellent mobile signal
Slow broadband and rural hamlet location; internet limitations possible
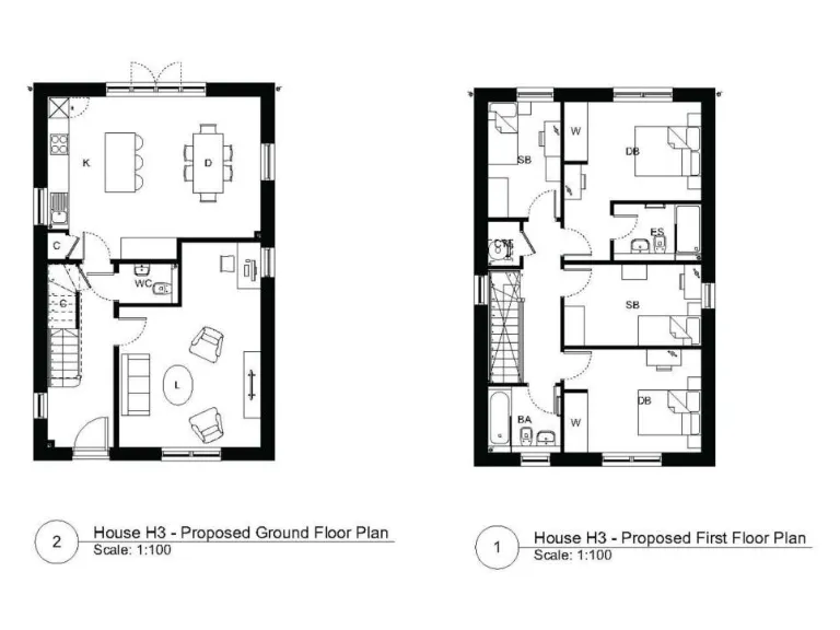
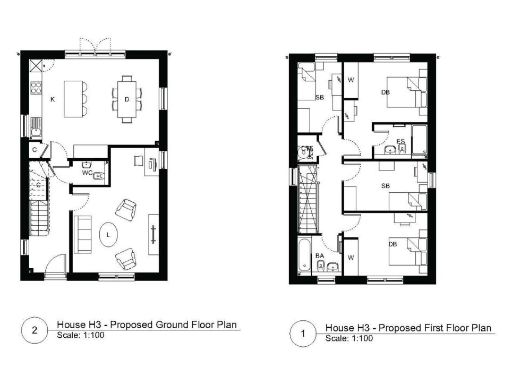
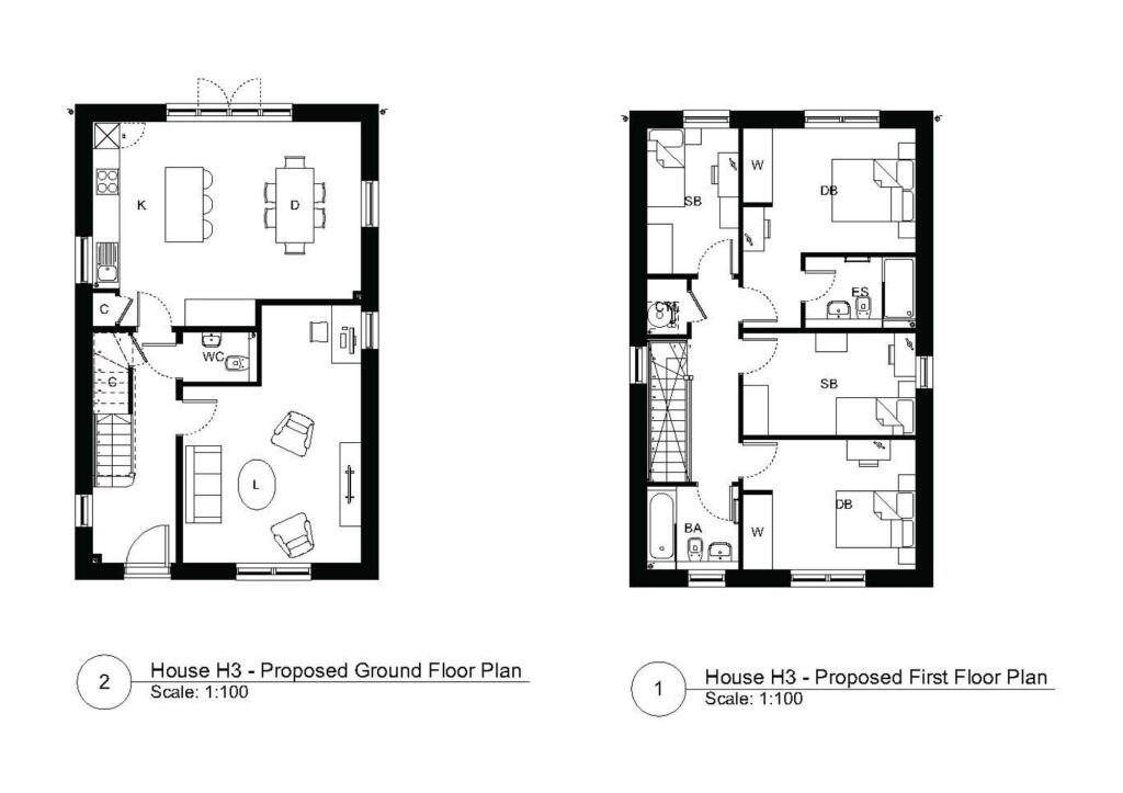
A rare self-build plot in an Area of Outstanding Natural Beauty with detailed planning approval for a detached four-bedroom home. The site benefits from large plot size, road access to adoptable standard, and mains services brought to the boundary, making it a strong base for a contemporary family house with countryside views.
The developer will deliver the build to a ‘Golden Brick’ stage; the purchaser is responsible for all works and costs beyond that point and must obtain their own detailed planning approval if they alter the approved design. Buyers should expect to follow local guidance so any revised proposals relate to the surrounding vernacular.
Practical positives include freehold tenure, no flood risk, low local crime and excellent mobile signal, while Uckfield and Heathfield provide nearby shops and rail links to London. Note broadband speeds are slow and the plot sits in a rural hamlet, so buyers dependent on high-speed internet should consider alternative solutions.
This opportunity suits buyers who want design control and value location — families seeking space and views, or experienced self-builders who can manage the remaining construction stages and local planning requirements.
5 bedroom detached house for sale in Palehouse Common, Framfield, East Sussex, TN22 — £875,000 • 5 bed • 4 bath • 4628 ft²
4 bedroom detached house for sale in The Meadows, Framfield Road, TN22 — £827,500 • 4 bed • 2 bath
Plot for sale in Single Plot at Swife Lane, TN21 — £850,000 • 4 bed • 1 bath • 3628 ft²
Plot for sale in Whatlington Road, Battle, TN33 — £400,000 • 1 bed • 1 bath • 2680 ft²
Plot for sale in Single Plot at Swife Lane, TN21 — £500,000 • 3 bed • 1 bath • 2272 ft²
Land for sale in Tylers Lane, TN22 — £499,950 • 3 bed • 1 bath










