Custom-build four-bedroom detached home with south garden, large plot and countryside views—choose finishes to suit your family..
South-facing garden with wide countryside views
Very large private plot ideal for outdoor living
Four bedrooms; two bathrooms (one en-suite)
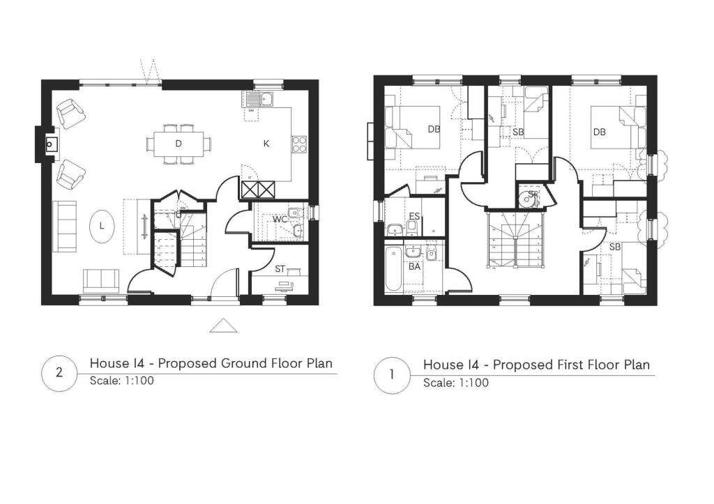
Choice of two layouts; many finish options available
Detached garage and freestanding new-build property
10-year new homes warranty included
Hamlet location — limited immediate amenities nearby
Customization choices may increase cost or extend completion time
Set on a very large plot at the edge of Blackboys, Meadow View is a new-build, four-bedroom detached home designed for family living in the Sussex countryside. Buyers can choose between two practical layouts: a traditional layout with separate living and kitchen-dining spaces, or an open-plan variant that offers a ground-floor study and flexible bedroom arrangements upstairs. Both options include a garage, south-facing garden and countryside views.
The scheme offers substantial scope to personalise finishes, external treatments and optional extras such as porch canopies and chimneys. Each home is sold freehold and comes with a 10-year new homes warranty for peace of mind. Local services in nearby Uckfield and Heathfield provide shops, schools and rail links to London, while the hamlet setting delivers low crime, excellent mobile signal and fast broadband.
Be clear that this is a custom-build plot: buyers must select finishes and may face additional costs or lead times for bespoke choices. The property sits in a quiet, rural community with limited immediate amenities on the doorstep, which suits families prioritising countryside life and schooling rather than town-centre convenience. The completed home will have two bathrooms for four bedrooms, which is adequate but worth noting for larger households.
4 bedroom detached house for sale in The Meadows, Framfield Road, TN22 — £495,000 • 4 bed • 2 bath
4 bedroom semi-detached house for sale in Framfield Road, Blackboys, TN22 — £625,000 • 4 bed • 2 bath • 1398 ft²
3 bedroom semi-detached house for sale in High Street, Blackboys, Uckfield, East Sussex, TN22 — £500,000 • 3 bed • 2 bath • 1066 ft²
5 bedroom detached house for sale in Framfield Road, Blackboys, TN22 — £1,100,000 • 5 bed • 3 bath • 2594 ft²
Plot for sale in Single Plot at Swife Lane, TN21 — £850,000 • 4 bed • 1 bath • 3628 ft²
5 bedroom semi-detached house for sale in Framfield Road, Blackboys, TN22 — £850,000 • 5 bed • 3 bath • 2097 ft²














