Raised ground flat with private terrace and generous garden, walkable to Northern Line.
Three bedrooms plus utility room and generous storage
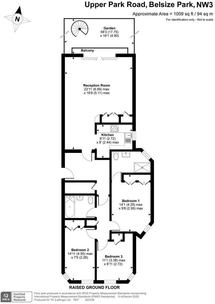
A generous raised ground-floor apartment in the heart of Belsize Park, this three-bedroom home combines light-filled living spaces with rare private outside space for central London. The 22'11" x 16'9" reception opens via full-width sliding doors onto a terrace and onward to a private garden, offering leafy privacy and a practical extension to the living area.
Accommodation includes a principal bedroom with fitted wardrobes and an ensuite shower room, a further double bedroom with fitted storage, a single bedroom, family bathroom and a handy utility room. The flat benefits from sound insulation, plentiful built-in storage and a fully fitted kitchen — a straightforward layout suited to family life or a buy-to-let purchaser seeking long-term tenant appeal.
Positioned within walking distance of Belsize Park (Northern Line) and the shops, cafés and restaurants of Haverstock Hill, England's Lane and Primrose Hill, the location supports strong local schools and excellent transport links. The apartment is offered chain free and held on a share of freehold tenure, simplifying purchase for owner-occupiers.
Practical notes: the building dates from the 1930s–40s and has solid brick walls with no known cavity insulation (assumed). Double glazing is installed but predates 2002, so upgrading windows or insulation could improve energy efficiency. Overall the property presents well and offers considerable lifestyle and rental appeal, with clear scope to personalise and improve energy performance if desired.
3 bedroom apartment for sale in Straffan Lodge, Belsize Grove, London, NW3 — £1,195,000 • 3 bed • 2 bath • 1140 ft²
3 bedroom flat for sale in Belsize Grove, Belsize Park, NW3 — £2,000,000 • 3 bed • 2 bath • 1610 ft²
3 bedroom flat for sale in Antrim Road, Belsize Park, NW3 — £1,250,000 • 3 bed • 1 bath • 1142 ft²
3 bedroom flat for sale in Buckland Crescent Belsize Park NW3 — £1,500,000 • 3 bed • 2 bath • 1007 ft²
3 bedroom apartment for sale in Belsize Avenue, Belsize Park, London, NW3 — £1,395,000 • 3 bed • 2 bath • 1321 ft²
3 bedroom apartment for sale in Fellows Road, Belsize Park NW3 — £860,000 • 3 bed • 2 bath • 900 ft²














































