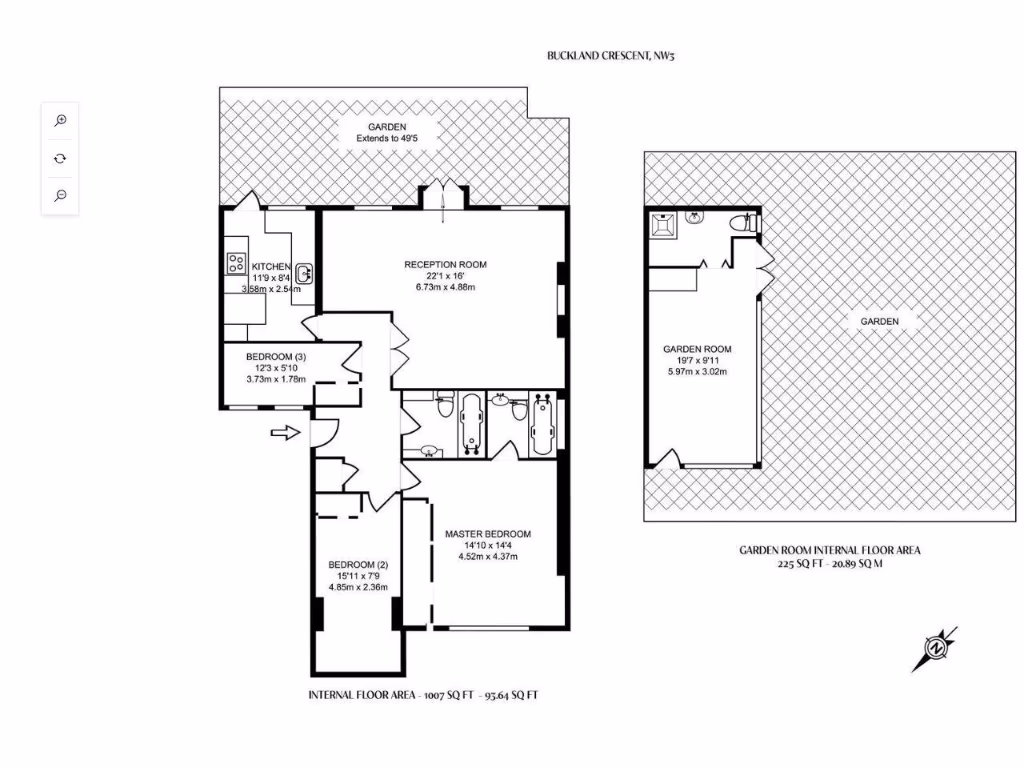
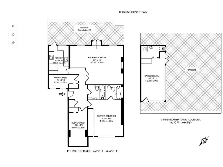
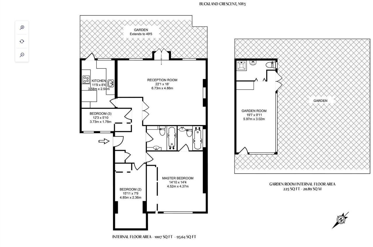
Versatile family home near Hampstead and Primrose Hill, with private garden and studio.
Private entrance with own section of rear garden
Set on the garden level of a handsome period building in Belsize Park, this well-presented 3/4 bedroom apartment offers a rare private entrance and its own section of rear garden. The spacious reception room opens through French doors to the garden, creating an easy indoor–outdoor flow ideal for family living and weekend entertaining. A separate studio/garden room with a shower provides flexible use as a home office, nursery or guest suite.
The principal bedroom includes built-in storage and an ensuite bathroom, with two further bedrooms and a family bathroom completing the accommodation. The apartment measures about 1,007 sq ft and benefits from double glazing and gas central heating with boiler and radiators — efficient everyday features for a London home. Its location is outstanding: under a mile from Hampstead and 0.6 miles from Belsize Park and Primrose Hill, with Swiss Cottage approximately 0.3 miles away.
Buyers should note a few practical points. The building dates from the late 1970s/early 1980s and is system-built with partial insulation assumed; some buyers may want to review insulation and maintenance needs. The tenure is not specified and will need confirmation. Overall the property offers good scope for modernising or reconfiguring to suit contemporary family life, while delivering immediate comfort in a very affluent NW3 neighbourhood.
3 bedroom flat for sale in Buckland Crescent, Belsize Park, NW3 — £1,500,000 • 3 bed • 2 bath • 1230 ft²
2 bedroom apartment for sale in Belsize Park Gardens, London, NW3 — £1,850,000 • 2 bed • 2 bath • 1617 ft²
3 bedroom flat for sale in Belsize Grove, Belsize Park, NW3 — £2,350,000 • 3 bed • 2 bath • 1610 ft²
2 bedroom flat for sale in Buckland Crescent Belsize Park NW3 — £1,350,000 • 2 bed • 2 bath • 945 ft²
2 bedroom flat for sale in Garden Apartment, Belsize Park Gardens, Belsize Park, NW3 — £1,850,000 • 2 bed • 2 bath • 1618 ft²
3 bedroom apartment for sale in Lancaster Drive, London, NW3 — £1,100,000 • 3 bed • 2 bath • 954 ft²














































