Renovation project with permitted extension and generous parking near the North Norfolk coast.
- Planning permission granted to extend to 3 bedrooms and 2 bathrooms
- Chain free sale; freehold tenure
- West-facing private courtyard garden with outbuilding
- Off-road parking for multiple vehicles on private driveway
- Requires full modernisation; dated fixtures and finishes throughout
- Solid brick walls likely uninsulated; consider insulation costs
- Oil-fired boiler and radiators; EPC rating E
- Slow broadband despite excellent mobile signal
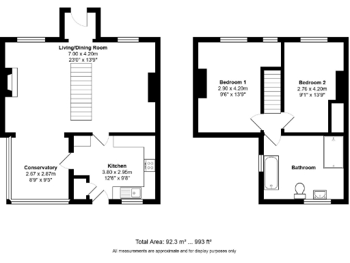
A rare renovation opportunity in a popular north Norfolk village, this two-bedroom end-of-terrace offers scope to create a comfortable coastal home. The property is chain free and comes with planning permission to extend into a three-bedroom, two-bathroom house with a relocated staircase and a new downstairs WC — a valuable head-start for buyers wanting extra space.
The cottage retains period character such as exposed beams and a beamed 23ft sitting/dining room, plus a conservatory that opens onto a private, west-facing courtyard garden with a brick-built storage outbuilding. Off-road parking for multiple vehicles and a decent plot provide practical benefits seldom found in village centre locations. There is no flood risk and local crime levels are low.
Standards are dated and most rooms need modernising: the property requires refurbishment throughout, has solid brick walls likely without insulation, oil-fired central heating, slow broadband and an EPC rating of E. Buyers should budget for upgrades to heating, insulation and finishes; the home is sold freehold and with no onward chain, which helps simplify a refurbishment programme.
This will suit buyers seeking a project close to the coast — downsizers wanting a single-level living option after alterations, first-time buyers prepared to renovate, or investors looking to add value. Practical details such as mains drainage and good mobile signal are in place, but professional surveys are recommended to confirm services and structural condition before purchase.
2 bedroom semi-detached house for sale in Docking, PE31 — £250,000 • 2 bed • 1 bath • 555 ft²
4 bedroom detached house for sale in Docking, PE31 — £375,000 • 4 bed • 1 bath • 1480 ft²
3 bedroom cottage for sale in Docking, PE31 — £335,000 • 3 bed • 1 bath • 825 ft²
3 bedroom end of terrace house for sale in Stanhoe Road, Docking, PE31 — £325,000 • 3 bed • 1 bath • 1104 ft²
2 bedroom terraced house for sale in Docking, Norfolk, PE31 — £299,950 • 2 bed • 1 bath • 619 ft²
3 bedroom detached house for sale in Brancaster Road, Docking, KING'S LYNN, PE31 — £425,000 • 3 bed • 2 bath • 1152 ft²






















































































