Energy-efficient new-build with generous top-floor bedroom and garden access.
Three-storey layout with flexible room uses
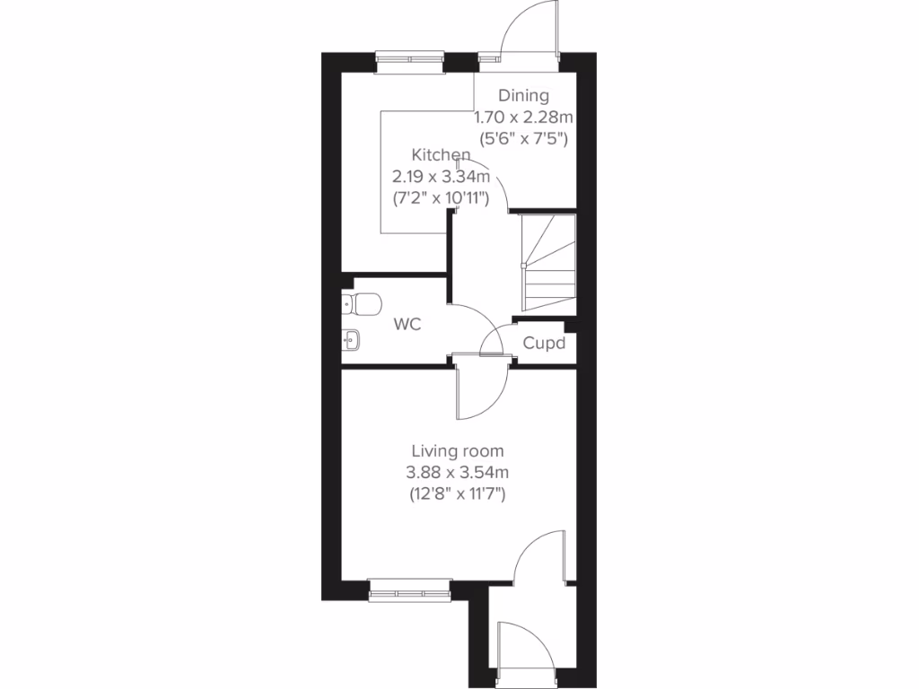
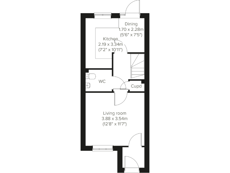
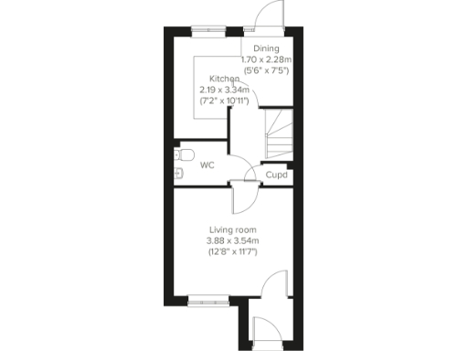
A compact, three-storey new-build arranged over an efficient footprint, this three-bedroom terraced house suits families seeking flexible space. The top-floor principal bedroom includes a dedicated dress area and generous floorplate ideal as a bedroom-playroom, teen retreat or snug. The ground floor offers a front-aspect living room and a kitchen/diner with direct garden access for easy indoor–outdoor living.
The home is energy efficient with predicted EPC band B and mains gas central heating, helping running costs. Practical features include a downstairs WC, three handy storage cupboards and off-street parking. Local primary schools rated Good are nearby, and the wider development benefits from open meadowland and countryside outlooks in places.
Buyers should note limitations: the house has one bathroom serving three bedrooms and sits on a small plot. The property is in a very deprived area with a high local crime profile, which may affect resale or rental demand. Council tax banding is not yet available and the build dates reflect a 1967–1975 era form but presented as new-build phase material.
Overall, the house offers a sensible, low-maintenance family layout and energy-saving specification — best for buyers prioritising flexible internal space and affordability over large gardens or quiet, low-crime neighbourhoods.
3 bedroom terraced house for sale in Woodhorn Meadows,
Northumberland,
NE63 9TG, NE63 — £184,950 • 3 bed • 1 bath • 1307 ft²
3 bedroom terraced house for sale in Woodhorn Meadows,
Northumberland,
NE63 9TG, NE63 — £174,950 • 3 bed • 1 bath • 1307 ft²
3 bedroom terraced house for sale in Woodhorn Meadows,
Northumberland,
NE63 9TG, NE63 — £184,950 • 3 bed • 1 bath • 1307 ft²
3 bedroom terraced house for sale in Woodhorn Meadows,
Northumberland,
NE63 9TG, NE63 — £184,950 • 3 bed • 1 bath • 1307 ft²
3 bedroom end of terrace house for sale in Woodhorn Meadows,
Northumberland,
NE63 9TG, NE63 — £186,950 • 3 bed • 1 bath • 1307 ft²
3 bedroom terraced house for sale in Woodhorn Meadows,
Northumberland,
NE63 9TG, NE63 — £184,950 • 3 bed • 1 bath • 1307 ft²














































