Energy-efficient family layout with large top-floor bedroom and off-street parking.
Three-storey new-build terrace with 1,307 sq ft
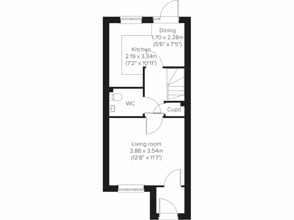
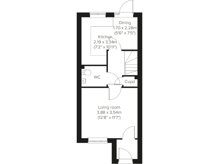
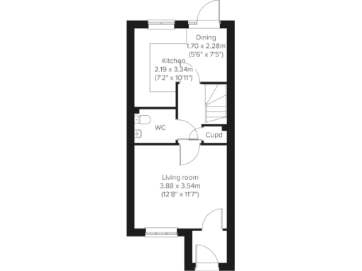
This three-storey new-build terrace offers flexible family living across 1,307 sq ft. The top-floor principal bedroom includes a dedicated dressing area, creating a generous retreat ideal for a parents’ suite, teenage hideaway or home office. Ground-floor living is split between a front-aspect lounge and a kitchen/diner with direct outside access, useful for family mealtimes and easy outdoor flow.
The home is built to modern energy-efficient standards and includes off-street parking and three useful storage cupboards plus a downstairs WC. At roughly 1307 sq ft, the layout suits growing families who need separate living space and a large upper bedroom.
Buyers should note there is a single family bathroom serving three bedrooms, and the plot is described as small despite neighbouring communal green areas. The development sits in a very deprived area with higher local crime rates; this may affect resale and suitability for some buyers. Council tax banding has not yet been set post-occupation.
Local amenities include good primary schools within easy reach and recreational spaces nearby. Practical factors such as a modest annual service charge (£96) and new-build specification reduce short-term maintenance, but prospective purchasers should consider the neighbourhood context and limited outdoor private space when deciding if this is the right family home.
3 bedroom terraced house for sale in Woodhorn Meadows,
Northumberland,
NE63 9TG, NE63 — £184,950 • 3 bed • 1 bath • 1307 ft²
3 bedroom terraced house for sale in Woodhorn Meadows,
Northumberland,
NE63 9TG, NE63 — £169,950 • 3 bed • 1 bath • 894 ft²
3 bedroom terraced house for sale in Woodhorn Meadows,
Northumberland,
NE63 9TG, NE63 — £184,950 • 3 bed • 1 bath • 1307 ft²
3 bedroom end of terrace house for sale in Woodhorn Meadows,
Northumberland,
NE63 9TG, NE63 — £186,950 • 3 bed • 1 bath • 1307 ft²
3 bedroom end of terrace house for sale in Woodhorn Meadows,
Northumberland,
NE63 9TG, NE63 — £186,950 • 3 bed • 1 bath • 1307 ft²
3 bedroom terraced house for sale in Woodhorn Meadows,
Northumberland,
NE63 9TG, NE63 — £184,950 • 3 bed • 1 bath • 1307 ft²














































