Modern, low-maintenance home with a standout top-floor bedroom and parking.
- Three-storey new-build home with 1307 sq ft total area
- Large top-floor bedroom with dedicated dress area
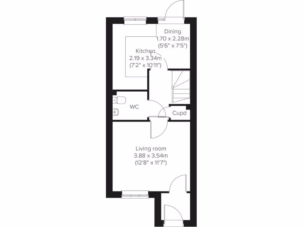
- Kitchen/diner with outside access for easy flow
- Front-aspect living room plus downstairs WC
- Energy-efficient construction and three storage cupboards
- Off-street parking provided
- Single family bathroom only
- Located in a very deprived area with high local crime rates
This three-storey new-build offers family-focused living across 1307 sq ft, with flexible space on every level. The kitchen/diner opens to the outside for easy indoor–outdoor flow, while a front-aspect living room provides a separate social space. The top-floor principal bedroom is unusually large for the footprint and includes a dedicated dress area ideal for a teenage retreat or home office.
Practical positives include off-street parking, energy-efficient construction and three useful storage cupboards plus a downstairs WC. The home is freehold and sits within a planned residential phase close to green space and local primary schools rated Good, making it well suited to families seeking modern, low-maintenance accommodation.
Buyers should note the property has a single family bathroom and a relatively small private plot. The immediate neighbourhood scores high for crime and is in a very deprived area classification, which may concern some purchasers and could affect resale values. Council tax banding is not yet available until occupation.
Overall, this is a compact, energy-efficient family home with strong internal space planning and a large top-floor bedroom, best for buyers prioritising modern living and affordability rather than a large garden or a low-crime location.
3 bedroom terraced house for sale in Woodhorn Meadows,
Northumberland,
NE63 9TG, NE63 — £174,950 • 3 bed • 1 bath • 1307 ft²
3 bedroom terraced house for sale in Woodhorn Meadows,
Northumberland,
NE63 9TG, NE63 — £211,950 • 3 bed • 1 bath • 579 ft²
3 bedroom end of terrace house for sale in Woodhorn Meadows,
Northumberland,
NE63 9TG, NE63 — £214,950 • 3 bed • 1 bath • 579 ft²
3 bedroom end of terrace house for sale in Woodhorn Meadows,
Northumberland,
NE63 9TG, NE63 — £214,950 • 3 bed • 1 bath • 319 ft²
4 bedroom detached house for sale in Woodhorn Meadows,
Northumberland,
NE63 9TG, NE63 — £274,950 • 4 bed • 1 bath • 874 ft²
3 bedroom detached house for sale in Woodhorn Meadows,
Northumberland,
NE63 9TG, NE63 — £244,950 • 3 bed • 1 bath • 320 ft²














































