**Standout Features:**
- Prime town centre location on a tree-lined road
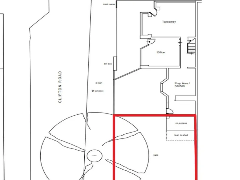
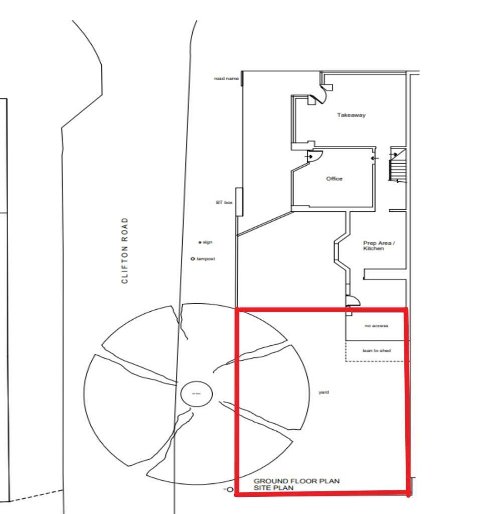
- Small parcel of land, approximate size: 42 x 32 feet
- Has drawings for the potential development of 2 new properties
- Chain-free sale, providing a seamless purchase experience
- Close proximity to various shops, restaurants, and public transport within 200 yards
- Excellent broadband speeds and mobile signal
**Concerns:**
- No planning permission currently approved for development
- Local area noted for high crime rates
- Surrounding garden and backyard require significant maintenance
Discover a valuable investment opportunity in this small parcel of land located on Clifton Road, a coveted tree-lined street just off the bustling high street of Dunstable. With a size of approximately 42 x 32 feet, this prime piece of land offers the potential for developing two new residential properties, supported by existing plans; however, please note that planning permission has not yet been obtained.
The property is ideally situated close to a plethora of amenities, including shops, restaurants, and public transport, making it a conveniently accessible option. While the local area does have some concerns regarding crime rates and the current state of the backyard and Victorian garden requires attention, the absence of chain complications adds to the appeal for investors looking for a long-term project. With two-bedroom homes in the vicinity selling for around £250,000, this is a remarkable chance to create something special in a desirable location. Don’t miss out on this unique opportunity to capitalize on the growth potential in Dunstable!
Land for sale in Land Adjacent To The Ewe & Lamb, 140 Luton Road, Dunstable, Bedfordshire, LU5 4LE, LU5 — POA • 1 bed • 1 bath
Land for sale in Wellington Street, Luton, Bedfordshire, LU1 5AH, LU1 — £290,000 • 1 bed • 1 bath • 549 ft²
Residential development for sale in R/O 13 High Street North, Dunstable, Bedfordshire, LU6 — £120,000 • 1 bed • 1 bath • 420 ft²
Property for sale in Land for Sale, Kingston Road, Luton, LU2 — £180,000 • 1 bed • 1 bath
Property for sale in Constable Close, Houghton Regis, Dunstable, Bedfordshire, LU5 — £25,000 • 1 bed • 1 bath • 475 ft²
Land for sale in Harlestone Close, Luton, LU3 — £140,000 • 1 bed • 1 bath • 538 ft²














