**Standout Features:**
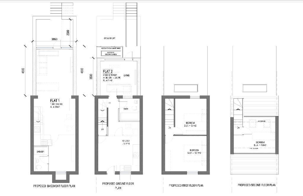
- Approved planning permission for 2 separate apartments (1-bedroom studio and 3-bedroom maisonette)
- Chain-free and located in a sought-after town center area
- Off-street parking for two cars and a private rear garden
- Strong rental return potential in a high-demand area
- Needs renovation and modernization
This promising parcel of land on Wellington Street in Luton offers an incredible investment opportunity with approved planning permission for two residential apartments—a one-bedroom studio in the basement and a spacious three-bedroom split-level maisonette. Perfectly positioned near the lively town center, this property is surrounded by essential local amenities, schools with high Ofsted ratings, and exceptional transport links, including access to Luton mainline station and the airport, ideal for commuters and families alike.
While the property does require renovation to unlock its full potential, it boasts unique features such as double glazing, a rear garden, and designated off-street parking for two vehicles. Mortgaging will be favorable in this high-demand rental market, making it a wise choice for investors seeking long-term returns amid increasing rental demand. Given its high potential and chain-free status, early viewing is encouraged to seize this excellent opportunity before it’s gone!
3 bedroom terraced house for sale in Wellington Street, Luton, Bedfordshire, LU1 5AH, LU1 — £250,000 • 3 bed • 1 bath • 24951 ft²
Land for sale in High Town Road, Luton, LU2 — £95,000 • 1 bed • 1 bath
Land for sale in CLIFTON ROAD, Dunstable, Bedfordshire, LU6 1JN, LU6 — £85,000 • 1 bed • 1 bath • 1344 ft²
1 bedroom maisonette for sale in Wellington Street, Luton, LU1 — £90,000 • 1 bed • 1 bath • 409 ft²
2 bedroom end of terrace house for sale in Russell Street, Luton, Bedfordshire, LU1 5EB, LU1 — £235,000 • 2 bed • 1 bath • 739 ft²
6 bedroom detached house for sale in Block of apartments, Windsor Walk, Luton, LU1 — £625,000 • 6 bed • 3 bath • 564 ft²






















