**Standout Features:**
- Planning approval for two self-contained studio flats
- Total size of 420 sq ft (39 sq m)
- Located in Dunstable's town center with excellent transport links
- Suitable for redevelopment or alternative use
- Includes a garage onsite
**Potential Concerns:**
- Formerly used for storage, may require significant renovations
- High crime rate in the area
- Immediate surroundings are urban, lacking greenery
**Summary:**
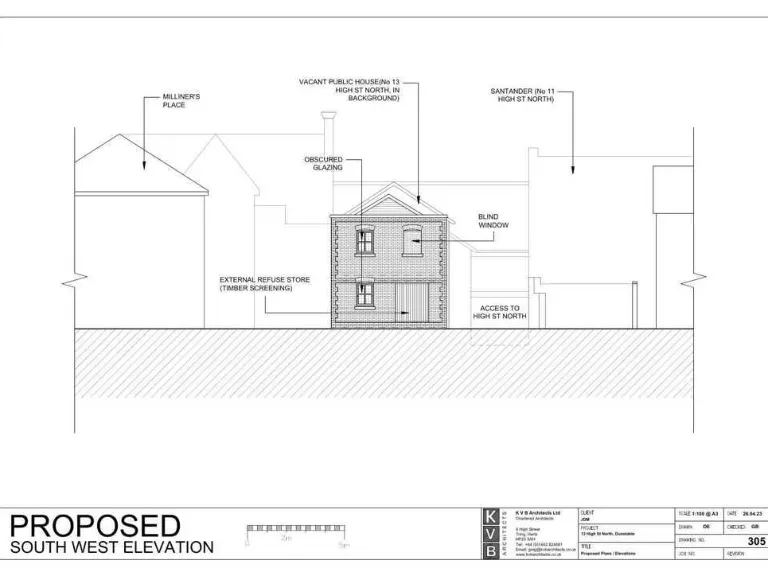
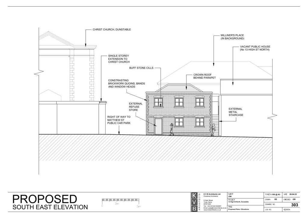
Seize a unique investment opportunity with this single-storey brick structure positioned at the rear of 13 High Street North in Dunstable. With planning permission already granted for the conversion into two self-contained studio flats, this property represents a promising redevelopment project for savvy investors or developers seeking to capitalize on the growing demand for residential units in urban locations.
Spanning approximately 420 sq ft, the building is set in a private lane with a garage included, offering potential for secure parking. Although it requires renovation due to its previous use as storage, the property’s central location ensures convenient access to a variety of amenities, including supermarkets, schools, and public transport. While the area does have a higher crime rate, its urban nature and planning approval make it an exciting project that can be tailored to meet future housing needs. Don't miss this chance to turn this space into desirable city living; opportunities like this won’t last long!
2 bedroom town house for sale in Union Street, Dunstable, LU6 — £375,000 • 2 bed • 1 bath • 2743 ft²
Residential development for sale in West Street, Dunstable, Bedfordshire, LU6 — £350,000 • 1 bed • 1 bath
Commercial property for sale in West Street, Dunstable, LU6 — £180,000 • 1 bed • 1 bath • 1011 ft²
High street retail property for sale in 139 & 139A High Street North, Dunstable, LU6 — £500,000 • 1 bed • 1 bath • 1686 ft²
High street retail property for sale in High Street South, Dunstable, Bedfordshire, LU6 — £300,000 • 1 bed • 1 bath • 1308 ft²
Studio flat for sale in Viceroy Court, High Street South, Dunstable, LU6 — £120,000 • 1 bed • 1 bath






























