Large renovated family home on a prime tree-lined road with garden and parking.
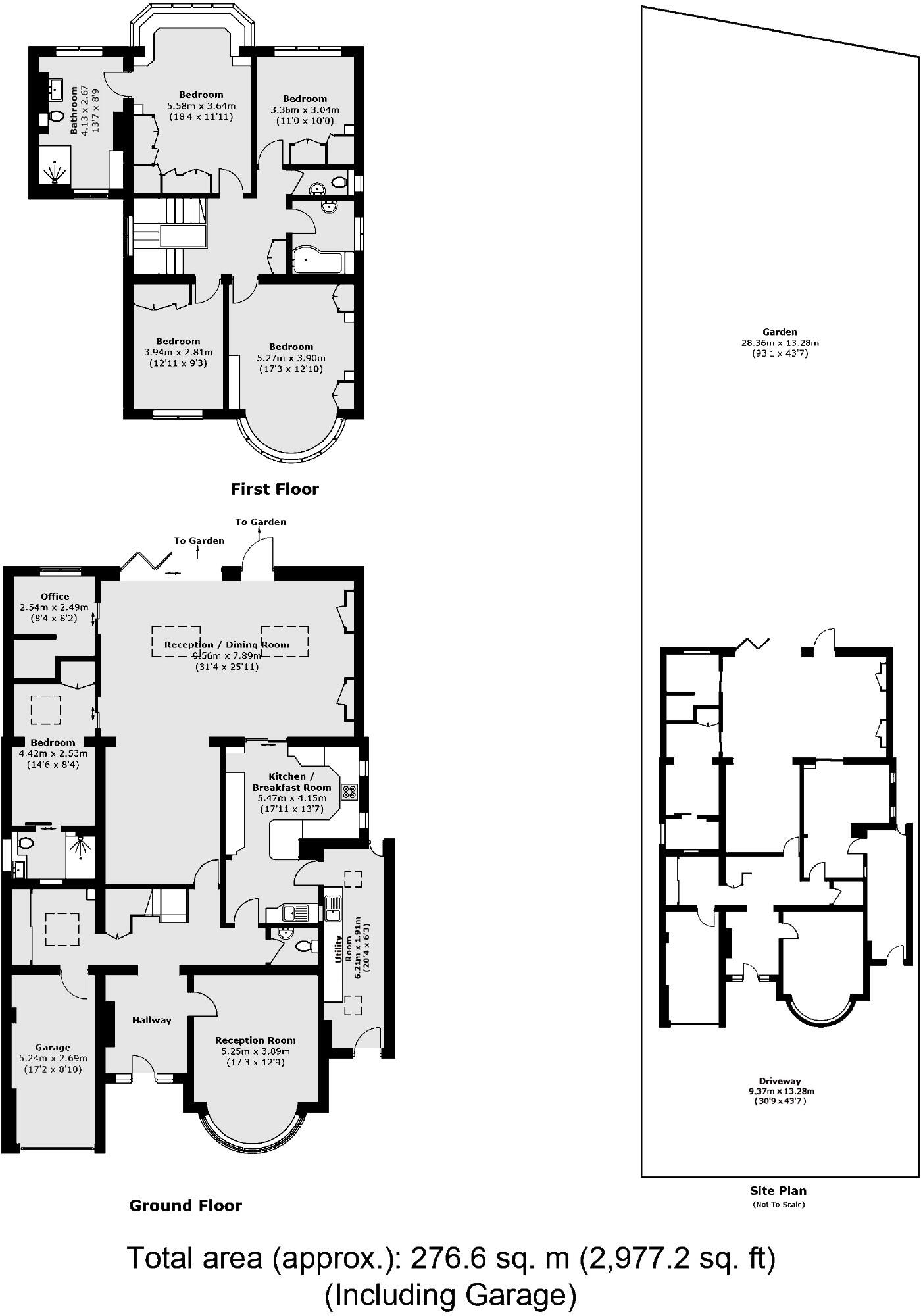
Five bedrooms and three bathrooms across approximately 3,000 sq ft
Set on a premium tree-lined road in Hampton, this newly renovated five-bedroom detached home offers approximately 3,000 sq ft of well-presented family living across a large plot. The house combines period character — bay windows, exposed Tudor-style beams and original chimneys — with contemporary finishes throughout a modern kitchen, bathrooms and smart living spaces. A south-facing rear garden and off-street parking for four cars add practical day-to-day appeal.
The layout suits growing families: multiple reception rooms, a sizeable kitchen/breakfast area and flexible upstairs bedrooms with three bathrooms reduce morning bottlenecks. There is clear scope to increase living space further (subject to planning) for buyers seeking longer-term value uplift. Local benefits include fast broadband, excellent mobile signal, very low local crime and easy access to highly rated state and independent schools, Hampton Village amenities, Bushy Park and the River Thames.
Practical points to note: the property is Freehold and newly renovated so immediate occupation is straightforward, but Council Tax Band G means annual tax costs are comparatively high. The wider area records a communal retirement classification, which may affect local demographic mix and activity levels on this road. Prospective buyers should verify planning and statutory details (including extension potential) before proceeding.
Overall this is a substantial, characterful family house on a large plot in one of Hampton’s most prestigious streets. It suits families prioritising space, school access and a blend of period charm with contemporary comforts, and buyers interested in future extension potential (STPP).
 5 bedroom detached house for sale in Ormond Crescent, Hampton, TW12 — £1,950,000 • 5 bed • 2 bath • 2328 ft²
 5 bedroom detached house for sale in Ormond Crescent, Hampton, TW12 — £1,950,000 • 5 bed • 2 bath • 2328 ft² 5 bedroom house for sale in Tudor Road, Hampton, TW12 — £1,300,000 • 5 bed • 3 bath • 2327 ft²
 5 bedroom house for sale in Tudor Road, Hampton, TW12 — £1,300,000 • 5 bed • 3 bath • 2327 ft² 3 bedroom house for sale in Ormond Drive, Hampton, TW12 — £1,100,000 • 3 bed • 1 bath • 1358 ft²
 3 bedroom house for sale in Ormond Drive, Hampton, TW12 — £1,100,000 • 3 bed • 1 bath • 1358 ft² 4 bedroom detached house for sale in Old Farm Road, Hampton, TW12 — £1,100,000 • 4 bed • 1 bath • 1342 ft²
 4 bedroom detached house for sale in Old Farm Road, Hampton, TW12 — £1,100,000 • 4 bed • 1 bath • 1342 ft² 4 bedroom detached house for sale in Hanworth Road, Hampton, TW12 — £1,295,000 • 4 bed • 2 bath • 2164 ft²
 4 bedroom detached house for sale in Hanworth Road, Hampton, TW12 — £1,295,000 • 4 bed • 2 bath • 2164 ft² 4 bedroom detached house for sale in Ormond Crescent, TW12 — £1,500,000 • 4 bed • 1 bath • 1797 ft²
 4 bedroom detached house for sale in Ormond Crescent, TW12 — £1,500,000 • 4 bed • 1 bath • 1797 ft²


















































