Bright, characterful home with garden near transport and park.
3 double bedrooms with high ceilings and period features
Large reception with exposed brick and bay window
Private rear garden accessed from the flat
Single shower room only for three bedrooms
Long lease: 168 years remaining (leasehold)
Solid 1930s brick walls likely lacking insulation
Located near Willesden Junction, buses and Roundwood Park
Local area: high crime and higher deprivation levels
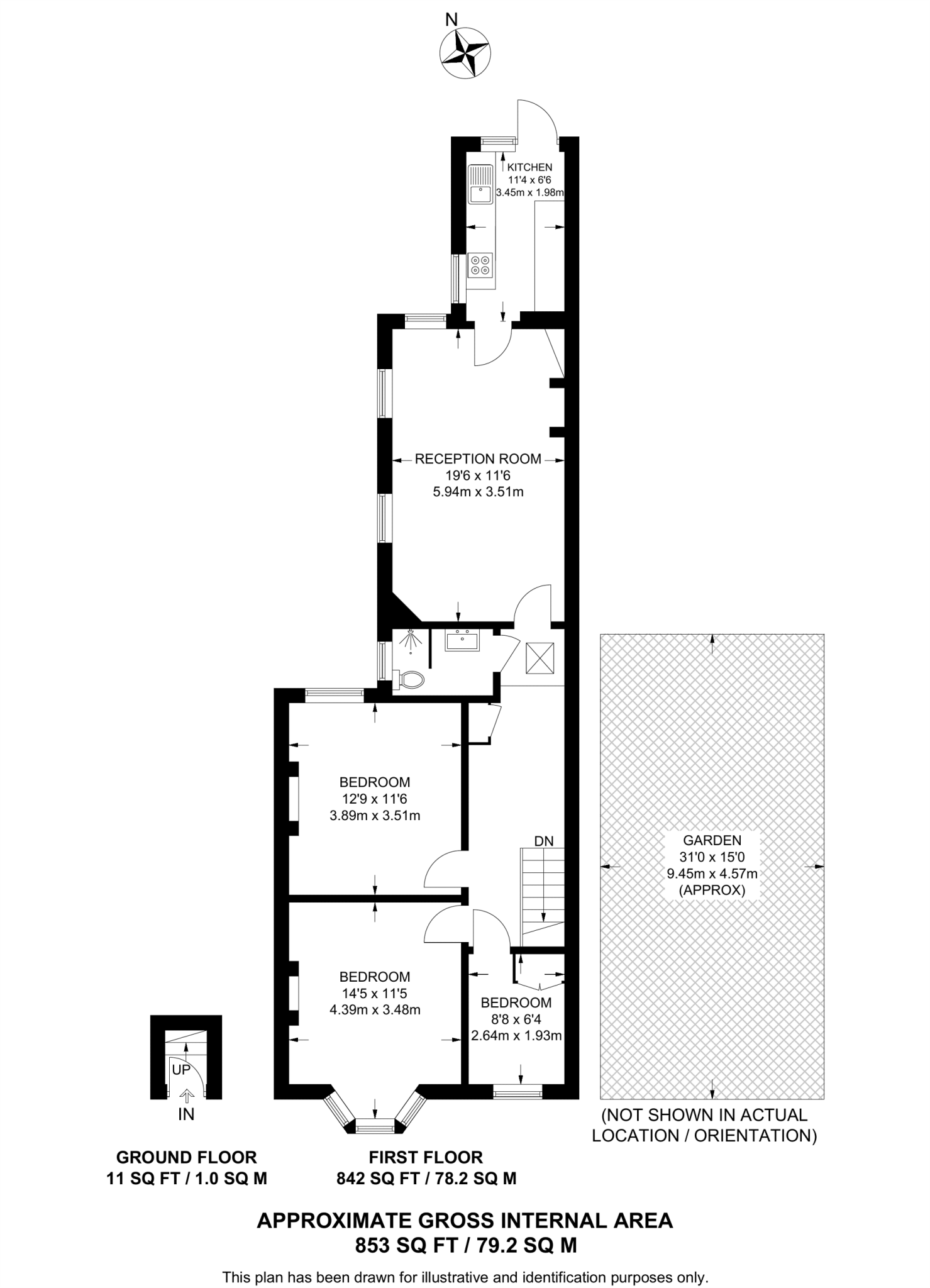
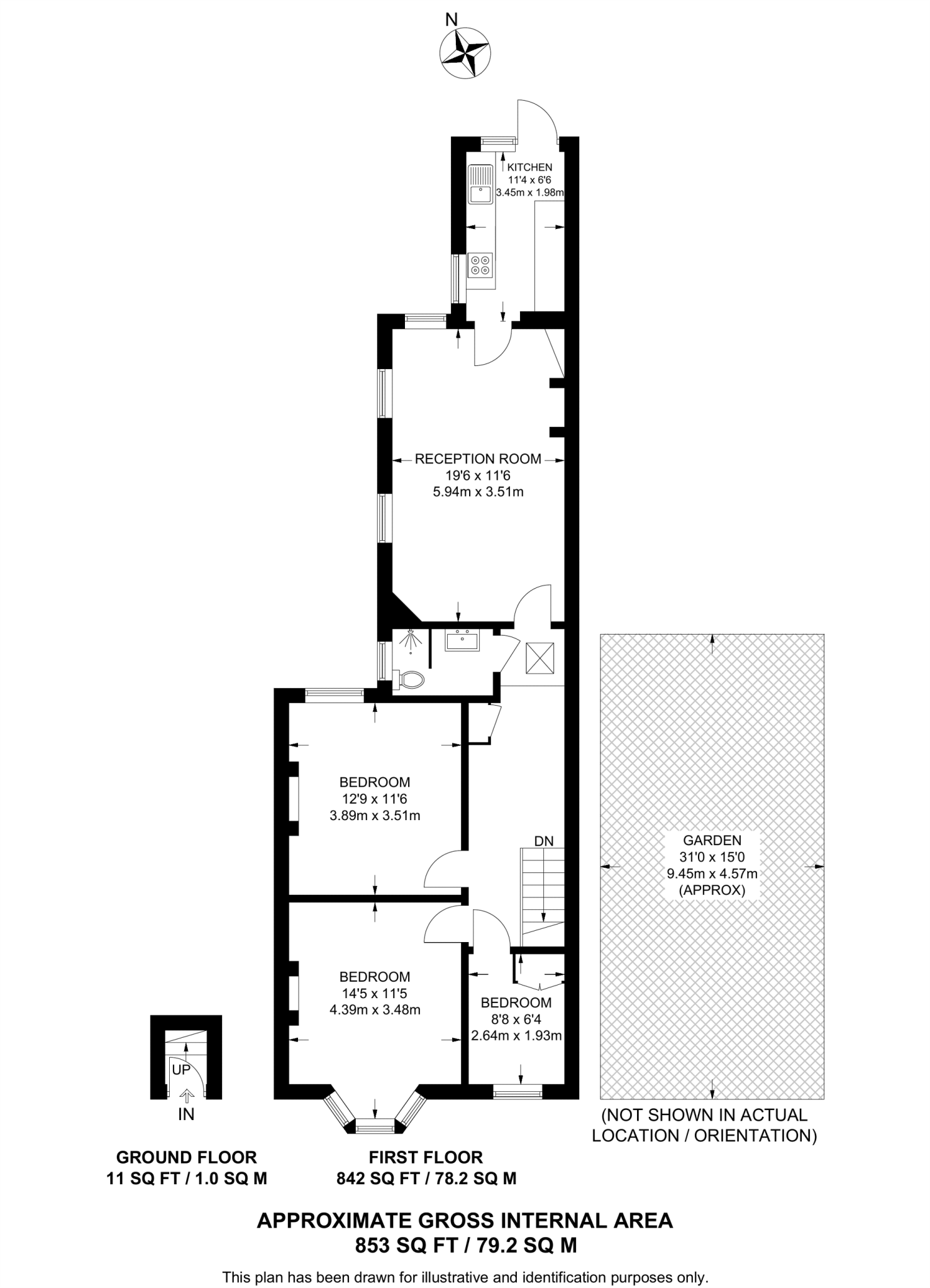
Set over the first floor of an end‑terrace building, this three‑bedroom maisonette combines period character with a private rear garden. The large reception room features exposed brickwork, bay windows and wood flooring that emphasise the Victorian proportions and natural light. With 853 sq ft, rooms feel well‑proportioned for a family or sharers.
The property has practical strengths: a separate kitchen, a smart shower room, double glazing and a long lease (168 years). Willesden Junction and local buses are within easy reach, with Roundwood Park and several well‑rated primary schools nearby — useful for families seeking space without losing transport links.
Buyers should note material facts plainly: there is only one bathroom for three bedrooms, the local area records high crime and relative deprivation, and the building’s solid brick walls likely lack cavity insulation. The flat is average in size and dates from the 1930s, so cosmetic updating and energy‑efficiency improvements may be required to modernise heating and insulation.
Overall this maisonette suits buyers who value period detail, outdoor space and long lease security, and who are willing to invest modestly in improving energy performance and interior finishes.
3 bedroom maisonette for sale in Tubbs Road, London, NW10 — £450,000 • 3 bed • 1 bath • 790 ft²
3 bedroom flat for sale in Ambleside Road, Harlesden, London, NW10 — £450,000 • 3 bed • 1 bath • 842 ft²
3 bedroom maisonette for sale in Bryan Avenue, Willesden Green, NW10 — £525,000 • 3 bed • 2 bath • 846 ft²
3 bedroom maisonette for sale in Deacon Road, Dollis Hill, London, NW2 — £635,000 • 3 bed • 2 bath • 1051 ft²
2 bedroom flat for sale in Wrottesley Road, Kensal Green, London, NW10 — £500,000 • 2 bed • 1 bath • 611 ft²
2 bedroom flat for sale in Chambers Lane, Willesden, London, NW10 — £450,000 • 2 bed • 1 bath • 756 ft²






































































































































































































































































































































































































































