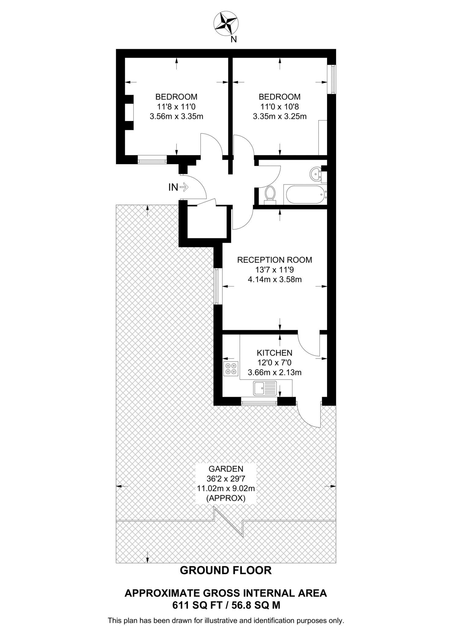
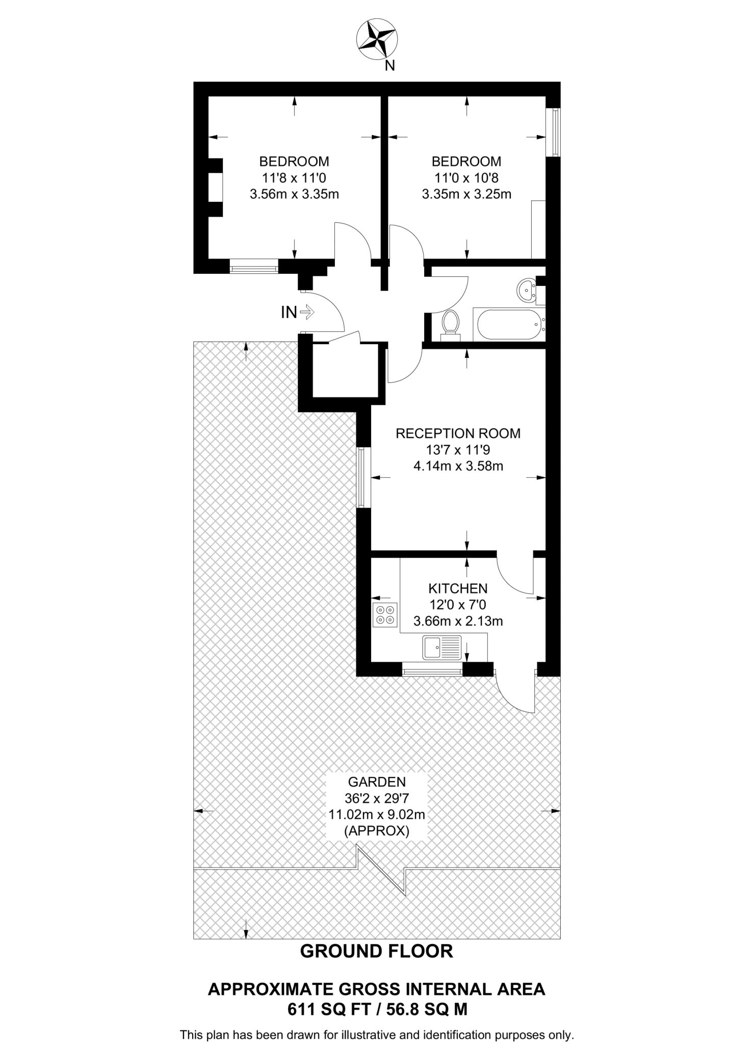
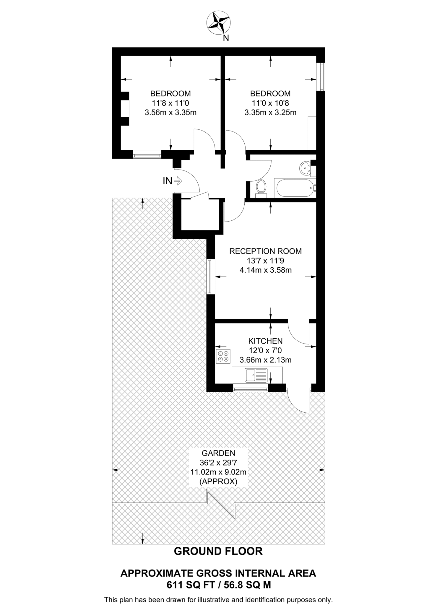
Sunny two-bedroom ground-floor home with generous garden and modern kitchen.
Private front entrance for maisonette living
Bright and well-proportioned, this ground-floor two-bedroom maisonette combines period character with modern fittings. The reception room receives good natural light and the contemporary kitchen opens directly onto a private wraparound garden — a rare outdoor space for this location.
Both bedrooms are generous doubles and the sleek bathroom keeps the layout practical for couples or first-time buyers. A private entrance adds the feel of a small house while remaining economical to run, with mains gas boiler and radiators providing reliable heating.
Practical details to note: the property is leasehold and the overall internal size is modest at 611 sq ft. The building dates from the early 20th century with solid brick construction and no known cavity insulation, and the double glazing install date is not recorded. These factors present potential improvement and energy-efficiency upgrade opportunities for a new owner.
Positioned in Kensal Green, the flat sits close to College Road and Chamberlayne Road amenities, with Willesden Green and Kensal Green stations within easy reach. The neighbourhood suits young families and first-time buyers seeking space, garden access, and good local schools.
2 bedroom flat for sale in Westview Close, Neasden, London, NW10 — £385,000 • 2 bed • 2 bath • 683 ft²
3 bedroom maisonette for sale in Bryan Avenue, Willesden Green, NW10 — £525,000 • 3 bed • 2 bath • 846 ft²
2 bedroom flat for sale in Bryan Avenue, Willesden, London, NW10 — £525,000 • 2 bed • 1 bath • 778 ft²
2 bedroom flat for sale in Barnhill Road, Wembley, HA9 — £350,000 • 2 bed • 1 bath • 712 ft²
2 bedroom maisonette for sale in Fortune Gate Road, Harlesden, London, NW10 — £300,000 • 2 bed • 1 bath • 655 ft²
2 bedroom flat for sale in Chambers Lane, Willesden, London, NW10 — £450,000 • 2 bed • 1 bath • 756 ft²






















































































































































